Casa individuala mobilata, pe parter, 4 camere si 2 bai, Sag

204.990 €

Şag, Judeţul Timiş

Nr. camere:
4
Suprafață utilă:
95 mp
Suprafață teren:
570 mp

Descriere casă

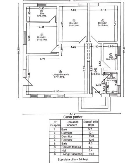
Apostu Estate are placerea de a va oferi spre vanzare o casa individuala situata in localitatea Sag, la doar 10 minute fata de Shopping City Timisoara. In localitate exista scoala cu clasele I - VIII, gradinita, parcuri, spatii comerciale si mijloace de transport in comun. Zona Manastirii, la doar cateva minute fata de magazinul La Doi Pasi. Casa beneficiaza de un teren generos de peste 560 mp, o suprafata utila de 95 mp si o terasa acoperita si inchisa de aproximativ 16 mp. Proiect modern cu dormitoare mari, luminoase si living open space. Confortul termic se realizeaza prin intermediul centralei proprii pe gaz, incalzire prin calorifere. Detalii tehnice: - tamplarie PVC - geamuri tripan - usi interioare Porta Doors, cu toc dublu - zidarie realizata integral cu caramida de 25cm - izolatie exterioara 10cm EPS 80 - pod izolat cu vata - tigla de beton Compartimentare: - hol de acces - dormitor matrimonial cu baie proprie - 2 dormitoare secundare - baie cu dus si geam - living open-space cu bucataria - terasa inchisa - camera technica Casa se va preda mobilata si utilata. Mobila de bucatarie realizata la comanda, electrocasnice incorporate. Utilitati: curent, gaz, fosa septica, foraj (apa curenta si canalizare in curs de bransare) Oferim solutii si consultanta financiara prin intermediul colaboratorilor nostri. Va asteptam cu drag la vizionare !
Citește mai mult Citește mai puțin
Nemobilat Curte Centrală proprie Zonă rurală

Detalii casă

ID anunț: 131842 Actualizat în: 29 Ianuarie 2026
Nr. camere: 4
Suprafață utilă: 95 mp
Suprafață utilă totală: 95 mp
Nr. băi: 2
Suprafață teren: 570 mp
Front stradal: 20 m
An construcție: 2022

Istoric preț

Facilități

Pereți
Faianță Vopsea lavabilă
Podele
Gresie Parchet
Ușă intrare
Parchet PVC
Izolații termice
Exterior
Ferestre cu geam termopan
PVC
Contorizare
Apometre Contor gaz
Mobilat
Nemobilat
Facilități imobil
Acoperiș Curte
Utilități
Curent Apă Canalizare Gaze Cablu
Sistem încălzire
Centrală proprie
Internet
Cablu
Amenajare străzi
Asfaltate

Puncte de interes

Mijloace transport
transport
Sag-Timiseni
Mijloace transport aprox. 1398 m
Recreere
parks
Park (en)
Recreere aprox. 1876 m
parks
Teren sportiv
Recreere aprox. 1889 m

Proprietăți similare

Casă individuală cu 4 camere cu Canalizare în Șag
185.000 €
Județul Timiș, Șag
4 camere
150 mp
1.876 mp teren
Casă individuală cu 4 camere cu Teren 600 Mp în Șag
204.990 €
Județul Timiș, Șag
4 camere
100 mp
600 mp teren
Casă individuală cu 4 camere cu Teren 650 Mp în Șag
195.000 €
Județul Timiș, Șag
4 camere
125 mp
650 mp teren
Casă individuală cu 3 camere cu Teren 1154 Mp în Șag
197.000 €
Județul Timiș, Șag
3 camere
95 mp
1.154 mp teren
Casă individuală cu 4 camere cu Canalizare în Șag
210.000 €
Județul Timiș, Șag
4 camere
100 mp
582 mp teren
Casă individuală cu 4 camere cu Canalizare în Șag
185.000 €
Județul Timiș, Șag
4 camere
115 mp
500 mp teren
Casă individuală cu 5 camere cu Canalizare în Gării
220.000 €
Timișoara, Gării
5 camere
120 mp
944 mp teren
Casă individuală cu 3 camere cu Canalizare în Ronaț
220.000 €
Timișoara, Ronaț
3 camere
85 mp
1.416 mp teren
Casă individuală cu 3 camere cu Teren 640 Mp în Moșnița Nouă
200.000 €
Județul Timiș, Moșnița Nouă
3 camere
115 mp
640 mp teren

Abonează-te la newsletter să fii primul care primește cele mai noi recomandări de proprietăți și sfaturi de la experți.