Black Friday Casă 4 camere I 140 mpu I Teren 548mp I Mediaș

199.000 €

Mediaş, Judeţul Sibiu

Nr. camere:
4
Suprafață utilă:
140 mp
Suprafață teren:
548 mp

Descriere casă

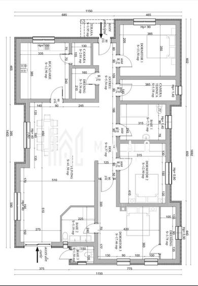
Dacă îți dorești o locuință bine construită, situată într-o zonă liniștită, înconjurată de natură, atunci această casă din Mediaș, zona Moșnei-Oraca, este alegerea perfectă! 🔹 Caracteristici principale: ✔ Suprafață teren: 548 mp ✔ Amprentă la sol: 175 mp ✔ Suprafață utilă: 145 mp ✔ Construită pe un singur nivel pentru confort maxim ✔ Acces facil pe o stradă de 8m lățime ✔ Înconjurată de verdeață și de pârâul Moșnei 🛏 Compartimentare inteligentă: ✔ 3 dormitoare spațioase ✔ 3 băi (una cu acces din exterior) ✔ 2 dressinguri generoase ✔ Living luminos, cu zonă de dining integrată ✔ Bucătărie închisă, separată ✔ Cămară pentru depozitare ✔ Cameră tehnică 💎 Dotări și finisaje: 🏠 Se vinde la stadiul de alb, cu finisaje complet finalizate 💡 Lămpi și aparataj electric modern 📹 Camere video pentru siguranță 🔥 Încălzire în pardoseală pentru un ambient plăcut 🪟 Tâmplărie Rehau cu 3 foi de sticlă, pentru izolare optimă 🧊 Tavan termoizolat cu spumă poliuretanică de 15cm cu celulă inchisă 🏗 Izolație exterioară cu polistiren de 10cm 📞 Nu rata această oportunitate! Contactează-ne pentru mai multe detalii și o vizionare, specificând ID CP2506196.
Citește mai mult Citește mai puțin
Nemobilat Curte Centrală proprie

Detalii casă

ID anunț: 2032037 Actualizat în: 24 Martie 2026
Nr. camere: 4
Suprafață utilă: 140 mp
Suprafață utilă totală: 140 mp
Nr. băi: 3
Suprafață teren: 548 mp
An construcție: 2023

Istoric preț

Facilități

Pereți
Vopsea lavabilă
Ușă intrare
PVC
Izolații termice
Exterior
Ferestre cu geam termopan
PVC
Contorizare
Apometre
Mobilat
Nemobilat
Facilități imobil
Acoperiș Curte
Utilități
Curent Apă Canalizare
Sistem încălzire
Centrală proprie
Amenajare străzi
Iluminat stradal Mijloace de transport în comun Asfaltate Betonate

Proprietăți similare

Casă individuală cu 5 camere cu Canalizare în Central
185.000 €
Județul Sibiu, Cisnădie
5 camere
107 mp
238 mp teren
Casă individuală cu 4 camere cu Teren 300 Mp în Veștem
189.000 €
Județul Sibiu, Veștem
4 camere
120 mp
300 mp teren
Casă individuală cu 3 camere cu Canalizare în Cristian
195.000 € + TVA
Județul Sibiu, Cristian
3 camere
103 mp
479 mp teren
Casă individuală cu 2 camere cu Canalizare în Hipodrom 1
195.000 €
Sibiu, Hipodrom 1
2 camere
88 mp
692 mp teren
Casă individuală cu 4 camere cu Canalizare în Șura Mică
209.000 €
Județul Sibiu, Șura Mică
4 camere
116 mp
440 mp teren
Casă individuală cu 4 camere cu Canalizare în Șura Mică
214.000 €
Județul Sibiu, Șura Mică
4 camere
125 mp
390 mp teren
Casă individuală cu 4 camere cu Canalizare în Șura Mare
215.000 €
Județul Sibiu, Șura Mare
4 camere
118 mp
352 mp teren
Casă individuală cu 4 camere cu Teren 486 Mp în Șura Mică
190.000 €
Județul Sibiu, Șura Mică
4 camere
120 mp
486 mp teren
Casă individuală cu 4 camere cu Canalizare în Șura Mare
200.000 €
Județul Sibiu, Șura Mare
4 camere
160 mp
1.000 mp teren

Abonează-te la newsletter să fii primul care primește cele mai noi recomandări de proprietăți și sfaturi de la experți.