• Agenție

Casa moderna, plan parter!

159.000 €

Vișani, Iași

Nr. camere:
4
Suprafață utilă:
114 mp
Suprafață teren:
500 mp
An construcție:
2025

Descriere

Raportează anunț

Casa moderna, plan parter!

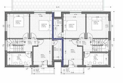
Casă modernă parter, 114 mp utili, 4 camere, finisaje premium – Visani, 3 km de fostul Dedeman Vă prezentăm o proprietate deosebită, construită pentru uz propriu, nu pentru vânzare de către dezvoltatori imobiliari, situată în zona Visani, la doar 3 km de fostul Dedeman – o locație liniștită și în plină dezvoltare. 🏡 Detalii casă: • Suprafață utilă: 114 mp • Compartimentare: 4 camere (living generos + 3 dormitoare) • 2 dormitoare dispun de baie proprie pentru un plus de confort • Sistem modern de încălzire prin pardoseală cu posibilitate de răcire • Spații mari vitrate, ce oferă lumină naturală din plin • Predare la stadiul alb, ideală pentru a-ți pune amprenta personală • Finisaje premium, materiale de calitate superioară • Mai sunt necesari aproximativ 10.000 € pentru finalizare (gresie, parchet, uși, finisaje băi) 🏗️ Construcție solidă și eficiență energetică: • Izolație cu spumă poliuretanică la tavane • Exterior termoizolat cu polistiren ignifugat de 10 cm • Proiect gândit pentru confort și eficiență, nu pentru profit 📐 Teren generos de 500 mp – perfect pentru amenajare grădină, foișor sau loc de joacă 📍 Locație: Visani, județul Iasi – acces facil, zonă aerisită, la doar 3 km de fostul Dedeman Acceptam orice fel de credit! Rate la proprietar cu un avans generos cu rest de plata pe 1 an .
Citește mai mult Citește mai puțin

ID anunț: 6178637 Actualizat în: 18 Noiembrie 2025
Nr. camere: 4
Suprafață utilă: 114 mp
Suprafață utilă totală: 114 mp
Nr. băi: 2
Suprafață teren: 500 mp
An construcție: 2025

Utilități

Utilități
Apă Gaze Fosa septică

Abonează-te la newsletter să fii primul care primește cele mai noi recomandări de proprietăți și sfaturi de la experți.

Căutări similare