*Vilă Bucium-Vișan* - 650mp teren - *toate utilitățile*

230.000 €

Vişani, Iaşi

Nr. camere:
4
Suprafață utilă:
127 mp
Suprafață teren:
650 mp
Nr. niveluri:
1

Descriere casă

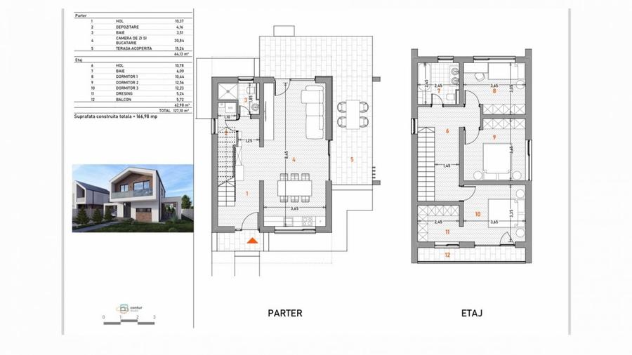
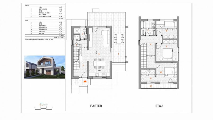
Invest Imobiliare vă prezintă unul dintre cele mai recente proiecte rezidențiale dezvoltate în zona Bucium-Vișan, un concept rezidențial gândit pentru rafinament și confort. Realizat special pentru clienții atenți la detalii, acest ansamblu rezidențial modernă oferă: *Design inovator: Combinație perfectă între estetică și funcționalitate; *Spații generoase: -parter: living, bucătarie, debara/cameră tehnică, grup sanitar și terasă acoperită; -etaj: trei dormitoare, dressing, baie și balcon; *Suprafață utilă de 127 mp și construită de 167 mp. *Dotări si facilități: •Cărămidă portantă BKS 25; •Izolatie termică cu vată bazaltică 10cm; •Tâmplărie PVC tripan premium; •Încălzire în pardoseală; •Tavane cu scafe si lumină led; •Finisaje de calitate superioară: var lavabil, faianță, gresie, parchet, klinker; •Uși interioare din lemn de calitate superioară; •Obiecte sanitare încastrate de calitate superioară; •Acoperiș din țiglă metalică; •Cartea construcției; -Racordare la toate utilitățile: energie electrică, gaz, apă curentă și canalizare. Disponibilitate pentru mai multe tipuri de compartimentări, design și modele de case: - tip 1 - 190.000€ - ⁠tip 2 - 180.000€ - ⁠tip 3 - 170.000€ - ⁠tip 4 (stil mediteranean) - 205mp construiți/ 155mp uitli - 230.000€ Pentru mai multe detalii, nu ezitați să ne contactați la numărul: – Lorian Gherasim
Citește mai mult Citește mai puțin
Centrală proprie Bine întreținut (Bună)

Detalii casă

ID anunț: 337136 Actualizat în: 31 Martie 2026
Nr. camere: 4
Suprafață utilă: 127 mp
Suprafață utilă totală: 127 mp
Nr. băi: 2
Suprafață teren: 650 mp
An construcție: 2025
Regim înălțime: P+1E

Istoric preț

Facilități

Utilități
Curent Apă Canalizare Gaze
Sistem încălzire
Centrală proprie
Internet
Fibră optică
Stare interior
Stare bună
Izolații termice
Exterior

Puncte de interes

Mijloace transport
transport
Statia "Scoala generala nr.2", linia 30,30b,46
Mijloace transport aprox. 672 m
transport
Statia "Plopii fara sot", linia 30,30b,46
Mijloace transport aprox. 737 m
transport
Statia "Rond Bucium", linia 30,30b,46
Mijloace transport aprox. 817 m
transport
Statia "han Trei Sarmale", linia 30,30b,46
Mijloace transport aprox. 853 m
Școală
education
Gradinita PP Surorile Providentei
Învățământ aprox. 328 m
education
Scoala Generala nr. 2 Veronica Micle
Învățământ aprox. 628 m
education
Scoala Veronica Micle
Învățământ aprox. 747 m
education
Scoala Primara Visan
Învățământ aprox. 1790 m
Recreere
parks
Teren sportiv
Recreere aprox. 249 m
parks
Teren sportiv
Recreere aprox. 384 m
restaurants
Hanul Dacilor
Restaurante aprox. 751 m
restaurants
Plopii fara sot
Restaurante aprox. 791 m

Proprietăți similare

Casă individuală cu 4 camere cu Canalizare în Vișani
249.000 €
Iași, Vișani
4 camere
118 mp
500 mp teren
Casă individuală cu 4 camere cu Canalizare în Vișani
208.000 €
Iași, Vișani
4 camere
12 mp
327 mp teren
Casă individuală cu 4 camere cu Canalizare în Vișani
208.000 €
Iași, Vișani
4 camere
120 mp
327 mp teren
Casă individuală cu 4 camere cu Canalizare în Vișani
210.000 € + TVA
Iași, Vișani
4 camere
106 mp
500 mp teren
Casă individuală cu 4 camere cu Canalizare în Vișani
249.000 €
Iași, Vișani
4 camere
125 mp
500 mp teren
Casă individuală cu 6 camere cu Canalizare în Sărărie
239.500 €
Iași, Sărărie
6 camere
148 mp
197 mp teren
Casă individuală cu 4 camere cu Canalizare în Miroslava
250.000 €
Iași, Miroslava
4 camere
120 mp
400 mp teren
Casă individuală cu 4 camere cu Canalizare în Miroslava
235.000 €
Iași, Miroslava
4 camere
120 mp
420 mp teren
Casă individuală cu 4 camere cu Canalizare în Miroslava
210.000 € + TVA
Iași, Miroslava
4 camere
120 mp
430 mp teren

Abonează-te la newsletter să fii primul care primește cele mai noi recomandări de proprietăți și sfaturi de la experți.