Casa 3 camere de vanzare in Zorilor, Cluj Napoca

2.000.000 €

Zorilor, Cluj-Napoca

Nr. camere:
3
Suprafață utilă:
100 mp
Suprafață teren:
856 mp

Descriere casă

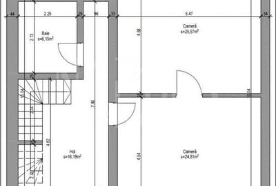
Proprietate cu teren 856 mp! Va prezentam spre vanzare o proprietate unica pozitionata intr-o zona exclusivista de case a cartierului Hasdeu. Proprietatea detine un teren generos in suprafata 856 mp, cu front stradal de 12 m. Casa este construita cu peretii din caramida, acoperis cu tigla, iar confortul termic al proprietatii este asigurat de centrala termica pe gaz si calorifere, fiind sustinut de izolatia termica. Casa are suprafata utila de circa 130 mp, desfasurata pe un singur nivel cu 3 camere, 1 bucatarie, 2 bai, 1 camara si 2 holuri. Proprietatea, pretabila ca locuinta a unei familii care doreste confortul oferit de terenul generos, detine si o pivnita cu acces direct din curte. In spatele casei este o terasa si gradina cu pomi fructiferi, iar curtea ofera locul suficient pentru parcarea a 5 masini. Proprietatea este situata in apropiere de toate punctele de interes cotidian necesare pentru facilitarea vietii de zi cu zi. Pentru mai multe detalii sau pentru programarea unei vizionari va stam cu drag la dispozitie, Echipa Napoca Imobiliare! ID oferta: 143238
Citește mai mult Citește mai puțin
Nemobilat Centrală proprie Beci

Detalii casă

ID anunț: 690286 Actualizat în: 02 Aprilie 2026
Nr. camere: 3
Suprafață utilă: 100 mp
Suprafață utilă totală: 100 mp
Nr. băi: 1
Suprafață teren: 856 mp
Front stradal: 12 m

Istoric preț

Facilități

Pereți
Vopsea lavabilă
Podele
Parchet
Utilități
Curent Apă Canalizare Gaze Cablu
Internet
Cablu
Mobilat
Nemobilat
Alte spații utile
Pivniță
Amenajare străzi
Iluminat stradal Mijloace de transport în comun Asfaltate

Puncte de interes

Mijloace transport
transport
Spital Recuperare Nord
Mijloace transport aprox. 11 m
transport
Spital Recuperare Sud
Mijloace transport aprox. 36 m
transport
Statia Spital Recuperare, Linia 50
Mijloace transport aprox. 67 m
transport
Zorilor
Mijloace transport aprox. 445 m
Școală
education
Helen
Învățământ aprox. 245 m
education
UT Facultatea de Constructii si Facultatea de Arhitectura si Urbanism
Învățământ aprox. 274 m
education
CFDP si Facultatea de Arhitectura si Urbanism
Învățământ aprox. 315 m
education
Grăd.Universul copiilor str.1
Învățământ aprox. 382 m
Recreere
parks
Parc
Recreere aprox. 58 m
shopping
Carrefour Express
Supermarket/Mall aprox. 89 m
restaurants
Mates Pub
Restaurante aprox. 97 m
shopping
Profi
Supermarket/Mall aprox. 176 m

Proprietăți similare

Casă individuală cu 10 camere cu Canalizare în Zorilor
2.000.000 €
Cluj-Napoca, Zorilor
10 camere
480 mp
550 mp teren
Casă individuală cu 5 camere cu Canalizare în Central
2.000.000 €
Cluj-Napoca, Central
5 camere
418 mp
637 mp teren
Casă individuală cu 7 camere cu Canalizare în Andrei Mureșanu
1.800.000 €
Cluj-Napoca, Andrei Mureșanu
7 camere
490 mp
975 mp teren
Casă individuală cu 5 camere cu Canalizare în Bună Ziua
1.890.000 €
Cluj-Napoca, Bună Ziua
5 camere
550 mp
2.000 mp teren
Casă individuală cu 5 camere cu Canalizare în Borhanci
1.800.000 €
Cluj-Napoca, Borhanci
5 camere
390 mp
600 mp teren
Casă individuală cu 8 camere cu Piscina în Grigorescu
2.150.000 €
Cluj-Napoca, Grigorescu
8 camere
532 mp
1.102 mp teren
Casă individuală cu 14 camere cu Canalizare în Gruia
1.925.000 €
Cluj-Napoca, Gruia
14 camere
550 mp
200 mp teren
Casă individuală cu 4 camere cu Canalizare în Central
1.800.000 €
Cluj-Napoca, Central
4 camere
146 mp
876 mp teren
Casă individuală cu 4 camere cu Canalizare în Central
1.800.000 €
Cluj-Napoca, Central
4 camere
230 mp
876 mp teren

Abonează-te la newsletter să fii primul care primește cele mai noi recomandări de proprietăți și sfaturi de la experți.