Casa/ Apartament 150m utili -an1990 Corneliu Coposu-Calarasilor Unirii

272.990 €

Unirii, Bucureşti

Nr. camere:
7
Suprafață utilă:
150 mp
Suprafață teren:
160 mp

Descriere casă

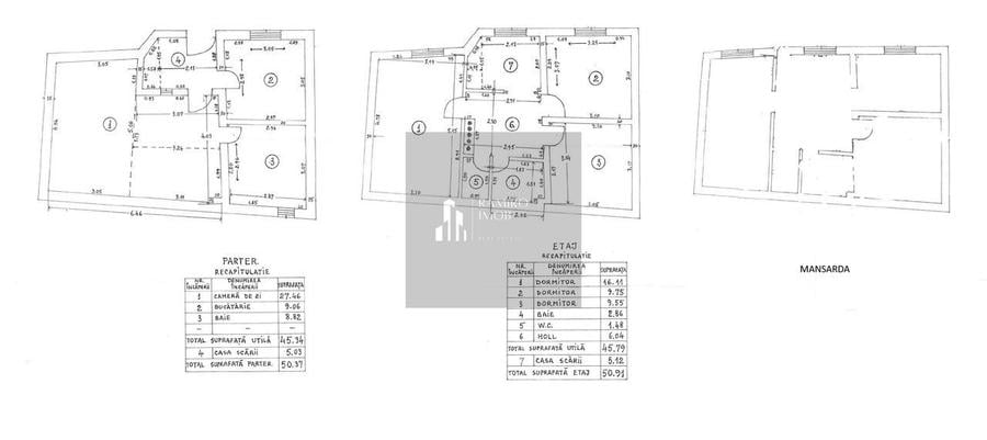
Va propunem spre vanzare o casa situata ultracentral pe Bulevardul Corneliu Coposu - Calea Calarasilor zona Mantuleasa (cartierul evreiesc). In fata casei o curte mica, de cativa metri patrati, pe unde se face si accesul in casa. Detalii proprietate : Suprafata utila: 150 mp Suprafata teren: 160 mp Regim de inaltime: Parter + Etaj 1 + Mansarda An constructie: 1990 Renovare completa: 2023 Compartimentare: Parter: bucatarie (20mp), living (18mp), baie cu cabina de dus Etaj 1: 1 dormitor de 25mp, 2 dormitoare mai mici, baie cu cada mare si cabina dubla de dus Mansarda: 3 camere + baie cu cabina de dus O oferta excelenta, o casa intr-o zona deosebita la un pret bun, potrivita si pentru utilizare comerciala - sediu birou, servicii, inchiriere in regim hotelier. Pentru mai multe detalii - Cornel - - Se accepta si achizitia prin credit bancar. Agentia Imobiliara Ramiro Imob Comision Standard Oferim suport in relatia cu banca, cu acces la cele mai bune oferte de finantare, precum si asistenta in relatia cu notariatul. Zona ofera un mix ideal intre linistea unui cartier istoric si accesul rapid catre punctele de interes ale orasului.
Citește mai mult Citește mai puțin
Parțial mobilat Aer condiționat Centrală proprie

Detalii casă

ID anunț: 4112877 Actualizat în: 08 Aprilie 2026
Nr. camere: 7
Suprafață utilă: 150 mp
Suprafață utilă totală: 150 mp
Suprafață teren: 160 mp
An construcție: 1990

Istoric preț

Facilități

Pereți
Faianță Vopsea lavabilă
Podele
Gresie Parchet
Ușă intrare
Parchet Metal Lemn
Uși interior
Lemn
Izolații termice
Exterior
Ferestre cu geam termopan
Aluminiu Lemn
Contorizare
Contor gaz
Bucătărie
Parțial mobilată
Mobilat
Parțial mobilat
Facilități imobil
Acoperiș Interfon
Sistem încălzire
Centrală proprie
Internet
Cablu
Climatizare
Aer condiționat
Amenajare străzi
Iluminat stradal Mijloace de transport în comun Asfaltate

Puncte de interes

Mijloace transport
transport
Alexandru Sihleanu
Mijloace transport aprox. 140 m
transport
Statia Piata Corneliu Coposu; Liniile: 14, 40, 55, 56
Mijloace transport aprox. 143 m
transport
Piata Corneliu Coposu
Mijloace transport aprox. 162 m
transport
Piata Sfantul Stefan
Mijloace transport aprox. 348 m
Școală
education
Grupul Scolar Industrial Unirea (en)
Învățământ aprox. 87 m
education
Grupul Scolar Industrial Unirea
Învățământ aprox. 93 m
education
Scoala Superioara Comerciala Nicolae Kretzulescu
Învățământ aprox. 220 m
education
Scoala cu clasele I-VIII, Nr. 73 Barbu Stefanescu Delavrancea
Învățământ aprox. 300 m
Recreere
restaurants
La Scena
Restaurante aprox. 25 m
parks
Parc
Recreere aprox. 56 m
shopping
Mega Image Paleologu
Supermarket/Mall aprox. 400 m
shopping
Km 0
Supermarket/Mall aprox. 625 m

Proprietăți similare

Casă cu 7 camere cu Teren 405 Mp în Unirii
280.000 €
București, Unirii
7 camere
212 mp
405 mp teren
Casă cu 4 camere cu Teren 143 Mp în Unirii
290.000 €
București, Unirii
4 camere
207 mp
143 mp teren
Casă cu 5 camere cu Canalizare în Titan
300.000 €
București, Titan
5 camere
140 mp
200 mp teren
Casă cu 4 camere cu Teren 100 Mp în Theodor Pallady
300.000 €
București, Theodor Pallady
4 camere
110 mp
100 mp teren
Casă cu 5 camere cu Canalizare în Nicolae Grigorescu
300.000 € + TVA
București, Nicolae Grigorescu
5 camere
138 mp
180 mp teren
Casă cu 4 camere cu Teren 195 Mp în Vitan
289.999 €
București, Vitan
4 camere
105,64 mp
195 mp teren
Casă cu 7 camere cu Canalizare în Vitan Mall
299.000 €
București, Vitan Mall
7 camere
179 mp
129 mp teren
Casă cu 3 camere cu Teren 160 Mp în Calea Călărașilor
272.990 €
București, Calea Călărașilor
3 camere
150 mp
160 mp teren
Casă cu 4 camere cu Canalizare în Splaiul Unirii
280.000 €
București, Splaiul Unirii
4 camere
130 mp

Abonează-te la newsletter să fii primul care primește cele mai noi recomandări de proprietăți și sfaturi de la experți.