COMPLEX PREMIUM DE CASE LANGA PARCUL TEILOR

295.000 € + TVA

1 Decembrie 1918, Bucureşti

Nr. camere:
4
Suprafață utilă:
102 mp
Suprafață teren:
132 mp
Nr. niveluri:
1

Descriere casă

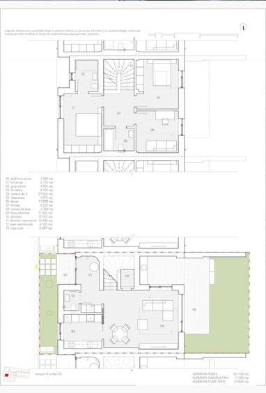
Vile înșiruite premium – un proiect de excepție, cu tehnologii moderne și finisaje de top. Comision 0% Pret fara tva. Vă prezentăm un complex exclusivist format din 11 vile înșiruite, construite conform celor mai înalte standarde de calitate și echipate cu tehnologii inovatoare destinate unui stil de viață modern și sustenabil. Fiecare vilă beneficiază de panouri fotovoltaice, încălzire în pardoseală, geamuri tripan Salamander și finisaje premium, garantând confort, eficiență energetică și eleganță. Caracteristici principale: Suprafață utilă: 102 mp, proiectată ergonomic pentru funcționalitate și rafinament Spații exterioare: Terasă de 20 mp și o curte privată de 27 mp în spatele casei, plus aproximativ 11 mp în față, pentru momente de relaxare și intimitate Fațadă: Placată cu cărămidă decorativă klinker, pentru un aspect modern, elegant și durabil Compartimentare: Parter: Grup sanitar Bucătărie modernă Living spațios de aproximativ 27 mp, ideal pentru petrecerea timpului în familie sau cu prietenii Etaj: Dormitor matrimonial cu baie proprie, pentru confortul și intimitatea maximă Două dormitoare de aproximativ 13 mp și 11 mp, perfect dimensionate pentru familie sau oaspeți Baie comună, echipată cu finisaje și obiecte sanitare de lux Facilități și securitate: Complex închis cu sistem de supraveghere și barieră, pentru siguranța și liniștea locatarilor Locație de excepție: La doar câteva minute de Parcul Teilor, Școala Gimnazială nr. 116 și alte facilități urbane Aproximativ 15-17 minute de stația de metrou „1 Decembrie 1918”, garantând conexiuni rapide către cele mai importante zone ale capitalei Această oportunitate unică reprezintă combinația perfectă între eleganță, confort și tehnologii de ultimă generație. Contactați-ne pentru mai multe informații sau pentru programări de vizionare!
Citește mai mult Citește mai puțin
Nemobilat Centrală proprie

Detalii casă

ID anunț: 3633996 Actualizat în: 18 Martie 2026
Nr. camere: 4
Suprafață utilă: 102 mp
Suprafață utilă totală: 102 mp
Nr. băi: 3
Suprafață teren: 132 mp
An construcție: 2026
Regim înălțime: P+1E

Istoric preț

Facilități

Pereți
Faianță Vopsea lavabilă
Podele
Gresie Parchet
Ușă intrare
PVC Parchet Metal
Izolații termice
Exterior
Ferestre cu geam termopan
PVC
Contorizare
Apometre Contor gaz
Mobilat
Nemobilat
Utilități
Curent Apă Canalizare Gaze Cablu
Sistem încălzire
Centrală proprie
Internet
Cablu Wireless
Amenajare străzi
Iluminat stradal Mijloace de transport în comun Asfaltate

Puncte de interes

Mijloace transport
transport
Statia Bulevardul 1 Decembrie / Postavarului, linia 311, N103, 101,40
Mijloace transport aprox. 1050 m
transport
Postavarului
Mijloace transport aprox. 1075 m
transport
Faur (capat de linie)
Mijloace transport aprox. 1087 m
transport
Statia Liviu Rebreanu, linia 311, 330, N103, N104, 101,40
Mijloace transport aprox. 1090 m
Școală
education
Gradinita nr. 68
Învățământ aprox. 507 m
education
Şcoala Nr. 82
Învățământ aprox. 1026 m
education
Scoala Generala nr. 82
Învățământ aprox. 1026 m
education
Gradinita Nr. 160 - "soarelui"
Învățământ aprox. 1102 m
Recreere
parks
Parculetul Constiincios (en)
Recreere aprox. 776 m
shopping
Auchan Titan
Supermarket/Mall aprox. 786 m
restaurants
Iris Mall
Restaurante aprox. 891 m
shopping
Iris Titan Shopping Center
Supermarket/Mall aprox. 948 m

Proprietăți similare

Casă cu 4 camere cu Canalizare în 1 Decembrie 1918
270.000 € + TVA
București, 1 Decembrie 1918
4 camere
120 mp
60 mp teren
Casă cu 5 camere cu Canalizare în 1 Decembrie 1918
300.000 € + TVA
București, 1 Decembrie 1918
5 camere
138 mp
180 mp teren
Casă cu 3 camere cu Canalizare în Calea Călărașilor
274.900 €
București, Calea Călărașilor
3 camere
111 mp
60 mp teren
Casă cu 4 camere cu Canalizare în Sălăjan
310.000 €
București, Sălăjan
4 camere
150 mp
Casă cu 4 camere cu Canalizare în Theodor Pallady
310.000 €
București, Theodor Pallady
4 camere
142 mp
180 mp teren
Casă cu 5 camere cu Canalizare în Nicolae Grigorescu
300.000 € + TVA
București, Nicolae Grigorescu
5 camere
138 mp
180 mp teren
Casă cu 5 camere cu Teren 557 Mp în Splaiul Unirii
290.000 €
București, Splaiul Unirii
5 camere
130 mp
557 mp teren
Casă cu 5 camere în Splaiul Unirii
315.000 €
București, Splaiul Unirii
5 camere
130 mp
Casă cu 6 camere cu Teren 155 Mp în Titan
300.000 €
București, Titan
6 camere
120 mp
155 mp teren

Abonează-te la newsletter să fii primul care primește cele mai noi recomandări de proprietăți și sfaturi de la experți.