
3 luni în urmă
10
- Proprietar
- Comision 0%
Casa P+1 in Dascalu, Ilfov construc?ie 2022, la gri, cu panouri solare, ideala pentru finisare
145.000 €
Preț vechi
155.000 €
Dascălu, Județul Ilfov
Descriere
Raportează anunț
Sesizează o problemă
Casa P+1 in Dascalu, Ilfov construc?ie 2022, la gri, cu panouri solare, ideala pentru finisare
Casa P+1 in Dascalu, Ilfov construc?ie 2022, la gri, cu panouri solare, ideala pentru finisare
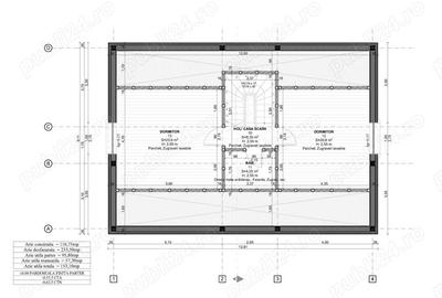
Vand Casa P+1 in Dascalu, Ilfov construc?ie 2022, la gri, cu panouri solare ?i foraj de apa ideala pentru finisare dupa gustul propriu! Proprietate situata intr-o zona lini?tita din Dascalu, Ilfov, ideala pentru o familie care i?i dore?te o casa spa?ioasa, eficienta energetic aproape de natura, dar ?i de ora? cu posibilitate de personalizare. Informa?ii generale: An construc?ie: 2022 Teren: 500 mp Suprafa?a construita la sol: 155 mp Suprafa?a desfa?urata: 261 mp Suprafa?a utila: 209 mp Recep?ie facuta, cadastru ?i intabulare, impozite platite Dotari ?i beneficii: Acoperi? in 4 ape cu tabla gri antracit Panouri solare montate eficien?a energetica sporita Foraj de apa propriu 30 m adancime Instala?ie electrica completa Geamuri ?i u?i tripan Pod izolat cu spuma poliuretanica Gaze trase pana la poarta (contract semnat) Gard din beton + poarta de acces auto culisanta Obiecte sanitare (toalete) deja cumparate pentru toate cele 3 bai Garaj: Suprafa?a: 39 mp, cu u?a montata Rampa auto cu acces direct din strada Acces interior din garaj direct in casa Compartimentare: Parter: Hol intrare 4 mp Living generos 37 mp (cu casa scarii) Bucatarie 20 mp Baie 9 mp Debara 8 mp (cu acces din bucatarie) Terasa exterioara 9 mp Doua intrari (principala ?i secundara catre terasa) Etaj: Dormitor matrimonial 18 mp Dressing 6 mp Baie proprie 4 mp Ie?ire pe balcon comun 8 mp Dormitor secundar 16 mp cu acces la balcon Dormitor stradal 14 mp Baie principala 6 mp Hol acces aprox. 6 mp Alte avantaje: Poze disponibile din toate etapele construc?iei Zona in dezvoltare, lini?tita, cu vecinata?i bune Toate actele sunt in regula vanzare directa, fara intermediar Pentru mai multe informa?ii ?i vizionari, ma pute?i contacta telefonic ID anun?
Citește mai mult
Citește mai puțin
ID anunț: 1718420
Actualizat în: 28 Septembrie 2025
Nr. camere:
4
Suprafață utilă:
209 mp
Suprafață utilă totală:
209 mp
Suprafață construită:
155 mp
Nr. băi:
3
Suprafață teren:
500 mp
Regim înălțime:
P+1E
Nr. locuri parcare:
1
Istoric preț
Utilități
Utilități
Apă
Gaze
Proprietăți similare
Abonează-te la newsletter să fii primul care primește cele mai noi recomandări de proprietăți și sfaturi de la experți.
Căutări similare
- Case de vânzare în Dascălu
- Case de vânzare în Berceni
- Case de vânzare în Corbeanca
- Case de vânzare în Bragadiru
- Case de vânzare în Voluntari
- Case de vânzare în Otopeni
- Case de vânzare în Tunari
- Case de vânzare în Popești-Leordeni
- Case de vânzare în Pantelimon
- Case de vânzare în Domnești
- Case de vânzare în Balotești
- Case de vânzare în Snagov