Casa 5 camere in rate la dezvoltator

155.000 €

Dascălu, Judeţul Ilfov

Nr. camere:
5
Suprafață utilă:
155 mp

Descriere casă

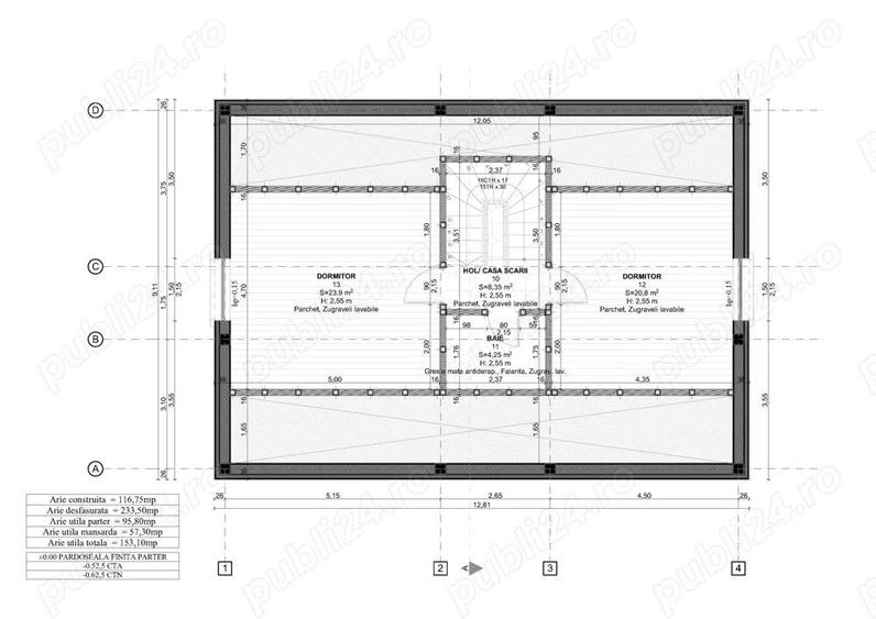
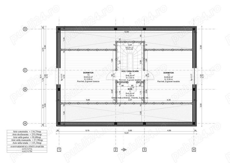
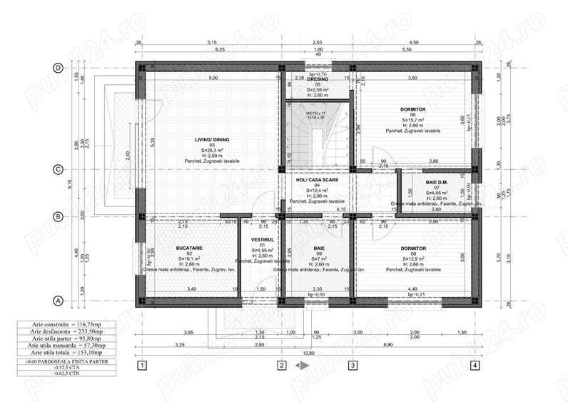
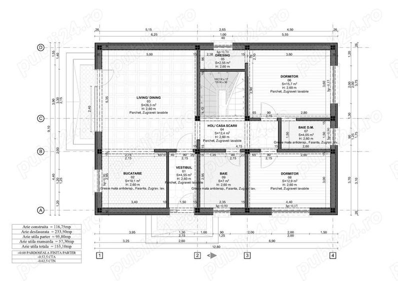
Casa individuala cu 5 camere de vanzare in Dascalu, Ilfov. Specificatii: Suprafata construita 232 mp, suprafata utila 155mp Nr. locuri de parcare: 2 Nr. camere: 5 Suprafata construita (amprenta la sol): 116 mp Nr. bucatarii: 1, Nr. bai: 3 Suprafata teren: 392 mp Nr. fronturi: 1 , Front stradal: 20 m invelitoare acoperis: tabla An constructie: 2026 Structura rezistenta: beton, pereti BCA Incalzire in pardoseala, centrala termica cu gaze. Ferestre Salamander , cu tripan Izolatie : polistiren 10 cm REGIM INALTIME: Parter plus mansarda Drum privat lat 7m. Utilitati : curent trifazic, gaze, apa din put forat, canalizare fosa ecologica Locatia este perfecta pentru cei ce doresc sa traiasca intr-o zona linistita, departe de aglomeratie si totusi cu posibilitatea de a ajunge rapid in zonele de interes din Bucuresti. Poti avea astfel o casa pe pamant , cu gradina ta, cu loc de joaca pentru copii, cu loc de gratar, cu loc de parcare asigurat. Este strada privata . Utilitatile in zona sunt : gaze si electricitate, iar de curand au inceput lucrarile conducta de apa si canalizare in Dascalu Distanta pana la A0 = 5 min, distanta pana la A3 = 15 min, distanta pana la Bucur Obor: 19km = 35-40 min. Distanta pana la Universitate : 23km. Se ajunge foarte usor pe A3 sau pe DJ 200. In zona exista Padure, balti de pescuit, scoala, gradinita,clinica medicala supermarket. transport in comun care merge pana la Bucur Obor. Pret 1000 euro mp plus tva ID anun? : 1770020718
Citește mai mult Citește mai puțin

Detalii casă

ID anunț: 3485026 Actualizat în: 07 Martie 2026
Nr. camere: 5
Suprafață utilă: 155 mp
Suprafață utilă totală: 155 mp
An construcție: 2026

Istoric preț

Proprietăți similare

Casă în Dascălu
165.000 €
Județul Ilfov, Dascălu
150 mp
Casă cu 4 camere cu Teren 500 Mp în Dascălu
145.000 €
Județul Ilfov, Dascălu
4 camere
209 mp
500 mp teren
Casă cu 5 camere cu Teren 400 Mp în Dascălu
165.000 €
Județul Ilfov, Dascălu
5 camere
145 mp
400 mp teren
Casă cu 3 camere cu Teren 110 Mp în 1 Decembrie
165.000 €
Județul Ilfov, 1 Decembrie
3 camere
120 mp
110 mp teren
Casă cu 4 camere cu Teren 268 Mp în Berceni
164.990 €
Județul Ilfov, Berceni
4 camere
110 mp
268 mp teren
Casă cu 4 camere cu Teren 250 Mp în Central
160.000 €
Județul Ilfov, Măgurele
4 camere
130 mp
250 mp teren
Casă cu 4 camere cu Canalizare în Afumați
160.000 €
Județul Ilfov, Afumați
4 camere
108 mp
450 mp teren
Casă cu 5 camere cu Teren 330 Mp în Nord
155.000 € + TVA
Județul Ilfov, Otopeni
5 camere
145 mp
330 mp teren
Casă cu 6 camere cu Teren 1750 Mp în Berceni
141.000 €
Județul Ilfov, Berceni
6 camere
250 mp
1.750 mp teren

Abonează-te la newsletter să fii primul care primește cele mai noi recomandări de proprietăți și sfaturi de la experți.