Case in constructie , P+E , zona Catargiu - Poligon

152.470 € + TVA

Lascăr Catargiu, Craiova

Nr. camere:
3
Suprafață utilă:
115,5 mp
Suprafață teren:
100 mp
Nr. niveluri:
1

Descriere casă

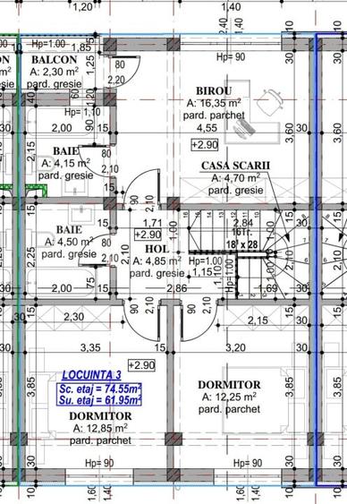
Blitz va ofera oportunitatea de achizitie direct din stadiu de proiect a unei case moderne ce va face parte dintr-un complex de case insiruite intr-o zona zona ce va forma o comunitate privata. Casele vor avea o suprafata utila de 115,5 mp organizate pe plan parter + etaj gandite intr-un stil mediteranean si compartimentate dupa cum urmeaza: Parter : hol, casa scarii, grup sanitar, living si bucatarie inchisa; Etaj : hol, 2 dormitoare, un birou si alte 2 grupuri sanitare si un balcon; Construite pe o structura de beton si BCA YTONG si o izolatie exterioara de polistiren expandat EPS 80 , o fac o alegere excelenta din punct de vedere termic si fonic. Acoperisul este din tabla LINDAB faltuita. De asemenea, peretii comuni vor fi izolati cu vata bazaltica pentru un plus de intimitate si confort. Imobilele vor dispune de incalzire in pardoseala, iar pentru o metoda alternativa , dar si pentru a crea un spatiu intim, acestea vor beneficia si de un semineu pe lemne. De asemenea, fiecare casa va dispune de 2 locuri de parcare. Avand in proximitate Spitalul Judetean, Facultatea de Medicina, dar si Parcul ,,Nicolae Romanescu'' , o face o alegere ideala pentru o familie, fiind situate departe de agitatia bulevardului, dar aproape de toate punctele de interes Casele vor fi predate la cheie, avand ca termen de finalizare IUNIE 2027. La pretul afisat se adauga TVA de 21%, iar avansul minim este de 30%. Pentru detalii suplimentare, nu ezitati sa ne contactati! Cod oferta / ID BLITZ: P157424
Citește mai mult Citește mai puțin
Nemobilat

Detalii casă

ID anunț: 3782615 Actualizat în: 10 Martie 2026
Nr. camere: 3
Suprafață utilă: 115,5 mp
Suprafață utilă totală: 115,5 mp
Nr. băi: 3
Suprafață teren: 100 mp
Front stradal: 7 m
An construcție: 2027 (Proiect)
Regim înălțime: P+1E

Istoric preț

Facilități

Utilități
Curent Apă Canalizare Gaze
Mobilat
Nemobilat
Diverse
Șemineu
Ușă intrare
Metal PVC
Izolații termice
Exterior Interior
Ferestre cu geam termopan
PVC

Puncte de interes

Mijloace transport
transport
Aprozar
Mijloace transport aprox. 679 m
transport
Helin
Mijloace transport aprox. 785 m
transport
Stadion
Mijloace transport aprox. 790 m
transport
Stadion
Mijloace transport aprox. 796 m
Școală
education
Gradinita Micul Print
Învățământ aprox. 431 m
education
Gradinita Micul Print
Învățământ aprox. 444 m
education
Liceul de Arte Marin Sorescu
Învățământ aprox. 902 m
education
UMF Craiova - Medicina Noua
Învățământ aprox. 911 m
Recreere
parks
Parc
Recreere aprox. 237 m
restaurants
Covrigi Speciali
Restaurante aprox. 785 m
shopping
Pelendava
Supermarket/Mall aprox. 1231 m
shopping
Mercur Center
Supermarket/Mall aprox. 1474 m

Proprietăți similare

Casă cu 3 camere în Lascăr Catargiu
140.000 €
Craiova, Lascăr Catargiu
3 camere
80 mp
Casă cu 5 camere cu Teren 504 Mp în Romanești
157.000 €
Craiova, Romanești
5 camere
170 mp
504 mp teren
Casă în Aeroport
148.000 €
Craiova, Aeroport
100 mp
Casă cu Teren 500 Mp în Plaiul Vulcanești
145.000 €
Craiova, Plaiul Vulcanești
140 mp
500 mp teren
Casă cu 4 camere cu Teren 356 Mp în Bariera Vâlcii
160.000 €
Craiova, Bariera Vâlcii
4 camere
110 mp
356 mp teren
Casă cu 5 camere cu Teren 450 Mp în Central
167.000 €
Craiova, Central
5 camere
190 mp
450 mp teren
Casă cu Teren 800 Mp în Central
145.000 €
Craiova, Central
120 mp
800 mp teren
Casă cu 4 camere în Central
165.000 €
Craiova, Central
4 camere
280 mp
Casă cu 3 camere cu Teren 113 Mp în Siloz
160.000 €
Craiova, Siloz
3 camere
88 mp
113 mp teren

Abonează-te la newsletter să fii primul care primește cele mai noi recomandări de proprietăți și sfaturi de la experți.