VILĂ P+1 DE VÂNZARE – TOMIS PLUS - ELVILA 700.000 €

€ 700.000

Tomis Plus, Constanţa

Nr. camere:
4
Suprafață utilă:
335 mp
Suprafață teren:
614 mp
Nr. niveluri:
1

Descriere

Raportează anunț

VILĂ P+1 DE VÂNZARE – TOMIS PLUS - ELVILA 700.000 €

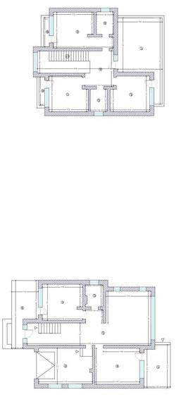
LOCAȚIE Proprietatea este situată în zona Tomis Plus – Elvila, un cartier premium al Constanței, apreciat pentru liniște, acces rapid, siguranță și dezvoltare exclusivistă. DESCRIERE Casa Forte Intermed vă propune spre vânzare o vilă cu arhitectură modernă, concepută pentru un stil de viață contemporan și rafinat. Vila impresionează prin spații generoase, living luminos, bucătărie mare, dormitoare confortabile și o atmosferă primitoare încă de la intrare. Terenul vast oferă libertatea de a crea zona perfectă de relaxare — fie că visați la o grădină spectaculoasă, un foișor, sau chiar o piscină privată. Este o construcție nouă (2024), finalizată, ideală pentru familiile care își doresc confort, intimitate și calitate într-o zonă selectă a orașului. SPECIFICAȚII • 335 mp utili • 614 mp teren • P+1 • 4 camere • 4 camere • 3 băi • 3 terase • Front stradal: 16,5 m • An construcție: 2024 – finalizată 📞 CONTACT Pentru mai multe detalii vă rugăm să ne contactați: 𝐀𝐠𝐞𝐧𝐭 𝐢𝐦𝐨𝐛𝐢𝐥𝐢𝐚𝐫: 𝐌𝐚𝐫𝐢𝐮𝐬 𝐂𝐨𝐧𝐬𝐭𝐚𝐧𝐭𝐢𝐧 📱 Telefon:
0720 **** Vezi tot numărul
📍 Sediu: Bld. Mamaia, nr. 497, Vila Safira
Citește mai mult Citește mai puțin
ID anunț: 2743303 Actualizat în: 16 Ianuarie 2026
Nr. camere: 4
Suprafață utilă: 335 mp
Suprafață utilă totală: 335 mp
Nr. băi: 3
Suprafață teren: 614 mp
An construcție: 2014
Regim înălțime: P+1E

Istoric preț

Utilități

Utilități
Apă Gaze
Facilități
Balcon

Proprietăți similare

Casă cu 9 camere cu Canalizare în Faleza Nord
€ 654.900
Constanța, Faleza Nord
9 camere
220 mp
560 mp teren
Casă cu 6 camere cu Teren 354 Mp în Central
€ 700.000
Constanța, Central
6 camere
340 mp
354 mp teren
Casă cu 4 camere în Elvila
€ 700.000
Constanța, Elvila
4 camere
340 mp
Casă cu 6 camere cu Canalizare în Faleza Nord
€ 740.000
Constanța, Faleza Nord
6 camere
207 mp
498 mp teren
Casă cu 8 camere cu Canalizare în Tomis II
€ 750.000
Constanța, Tomis II
8 camere
347,8 mp
325 mp teren
Casă cu 6 camere cu Teren 595 Mp în Nord
€ 721.000
Județul Constanța, Eforie
6 camere
575 mp
595 mp teren
Casă cu 10 camere în Eforie
€ 700.000
Județul Constanța, Eforie
10 camere
400 mp
Casă cu 6 camere în Central
€ 645.000
Județul Constanța, Vama Veche
6 camere
470 mp
Casă cu 8 camere în Eforie
€ 630.000
Județul Constanța, Eforie
8 camere
622 mp

Abonează-te la newsletter să fii primul care primește cele mai noi recomandări de proprietăți și sfaturi de la experți.