Casa 3 camere de vanzare in Zorilor, Cluj Napoca

385.000 €

Zorilor, Cluj-Napoca

Nr. camere:
3
Suprafață utilă:
85 mp
Suprafață teren:
125 mp

Descriere

Casa 3 camere de vanzare in Zorilor, Cluj Napoca

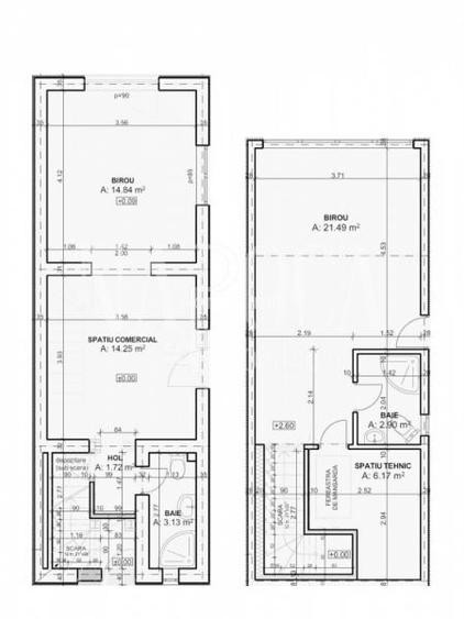
De vanzare - casa individuala in Zorilor, cu 135 mp de teren. Se vinde spatiu comercial individual cu posibilitate de utilizare mixta, situat in zona strazii Observatorului, intr-o zona foarte accesibila a orasului Cluj-Napoca. Cladirea este compusa din parter si un etaj retras, cu o suprafata utila de 85 mp si compartimentare versatila: Parter: Doua incaperi si o baie (cu acces direct catre curte). Etaj: O incapere, baie si camera tehnica. Spatiul poate fi usor recompartimentat intr-un singur spatiu deschis, potrivit pentru diverse activitati comerciale sau servicii (salon, birou, cabinet medical, alimentatie publica etc.). Detalii suplimentare: Suprafata curte: 135 mp, cu loc de parcare inclus. Incalzire eficienta: Centrala termica Ariston cu buffer, instalata in 2020. Izolatie termica si ultima renovare in 2020. Clasificare turistica: Functioneaza in regim hotelier, conform Ministerului Turismului. Situatie juridica clara: Toate actele sunt la zi, facilitand o tranzactie rapida. Pretul este final, fara TVA aditional. Pentru mai multe detalii si programarea unei vizionari, va rugam sa ne contactati. Echipa Napoca Imobiliare ID oferta: 148679
Citește mai mult Citește mai puțin
ID anunț: 309772 Actualizat în: 29 Noiembrie 2024
Nr. camere: 3
Suprafață utilă: 85 mp
Suprafață utilă totală: 85 mp
Nr. băi: 2
Suprafață teren: 125 mp
Front stradal: 12 m

Istoric preț

Utilități

Utilități
Apă Gaze Canalizare

Proprietăți similare

Casă cu 5 camere cu Canalizare în Zorilor
398.000 €
Cluj-Napoca, Zorilor
5 camere
143 mp
Casă cu 8 camere cu Canalizare în Iris
420.000 €
Cluj-Napoca, Iris
8 camere
170 mp
451 mp teren
Casă cu 3 camere cu Canalizare în Dâmbul Rotund
350.000 €
Cluj-Napoca, Dâmbul Rotund
3 camere
80 mp
477 mp teren
Casă cu 5 camere cu Canalizare în Dâmbul Rotund
415.000 €
Cluj-Napoca, Dâmbul Rotund
5 camere
130 mp
750 mp teren
Casă cu 4 camere decomandat cu Canalizare în Someșeni
390.000 €
Cluj-Napoca, Someșeni
4 camere
100 mp
360 mp teren
Casă cu 4 camere cu Canalizare în Borhanci
410.000 €
Cluj-Napoca, Borhanci
4 camere
130 mp
170 mp teren
Casă cu 5 camere cu Canalizare în Iris
357.000 €
Cluj-Napoca, Iris
5 camere
225 mp
210 mp teren
Casă cu 5 camere cu Canalizare în Mărăști
390.000 €
Cluj-Napoca, Mărăști
5 camere
190 mp
205 mp teren
Casă cu 5 camere cu Canalizare în Central
350.000 €
Cluj-Napoca, Central
5 camere
279 mp
138 mp teren

Abonează-te la newsletter să fii primul care primește cele mai noi recomandări de proprietăți și sfaturi de la experți.