Vila moderna Balotesti-Proiect Premium cu piscina la GRI

373.670 €

Baloteşti, Judeţul Ilfov

Nr. camere:
4
Suprafață utilă:
244 mp
Nr. niveluri:
1

Descriere casă

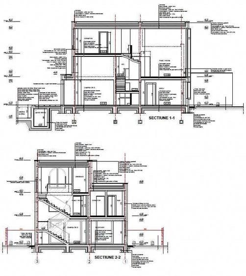
O proprietate exclusivista, la pretul de 373.670 Eur+TVA, cu arhitectura moderna si spatii generoase, ideala pentru familie sau investitie premium. Vila este construita pe structura din beton armat si compartimentata inteligent pe P+1+2 partial, oferind volum, lumina si functionalitate. Exteriorul este complet realizat, inclusiv: fatade moderne tamplarie aluminiu imprejmuire teren piscina tip infinity alei, acces auto si pietonal utilitati trase intabulare finalizata Interiorul este la gri, oferind libertate totala de personalizare. COMPARTIMENTARE Parter: Living spectaculos + dining (~74 mp open space) Casa ARK - FINAL, DTAC REV.1 Bucatarie + zona de luat masa Birou Grup sanitar Spatiu tehnic Garaj Terasa Etaj 1: 2 dormitoare Family room (cu gol peste living) 2 bai Terase Etaj 2: Dormitor matrimonial Dressing Baie proprie Spatiu open space Terase generoase EXTERIOR & TEREN Suprafata spatii verzi: 541 mp Zona terase + piscina: 163,5 mp Piscina tip infinity inclusa Curte generoasa, ideala pentru relaxare DETALII TEHNICE Regim inaltime: P+1+2 partial Inaltime maxima: 9,27 m Incalzire in pardoseala Pompa de caldura aer-apa Constructie eficienta energetic AVANTAJE Proiect arhitectural premium Compartimentare moderna si aerisita Suprafata mare utila Piscina inclusa Toate utilitatile trase Acte complete + intabulare Posibilitate personalizare interior 100%
Citește mai mult Citește mai puțin

Detalii casă

ID anunț: 3698477 Actualizat în: 26 Martie 2026
Nr. camere: 4
Suprafață utilă: 244 mp
Suprafață utilă totală: 244 mp
Regim înălțime: P+1E

Istoric preț

Puncte de interes

Școală
education
Gradinita cu program prelungit
Învățământ aprox. 670 m

Proprietăți similare

Casă cu 8 camere cu Teren 565 Mp în Balotești
349.000 €
Județul Ilfov, Balotești
8 camere
256 mp
565 mp teren
Casă cu 5 camere cu Teren 956 Mp în Balotești
349.500 €
Județul Ilfov, Balotești
5 camere
320 mp
956 mp teren
Casă cu 8 camere cu Teren 807 Mp în Balotești
400.000 €
Județul Ilfov, Balotești
8 camere
254 mp
807 mp teren
Casă cu 5 camere cu Teren 135 Mp în Balotești
369.000 €
Județul Ilfov, Balotești
5 camere
171 mp
135 mp teren
Casă cu 5 camere cu Teren 432 Mp în Balotești
350.000 €
Județul Ilfov, Balotești
5 camere
160 mp
Casă cu 4 camere cu Teren 704 Mp în Balotești
395.000 €
Județul Ilfov, Balotești
4 camere
205 mp
704 mp teren
Casă cu 7 camere cu Teren 370 Mp în Cățelu
340.000 €
Județul Ilfov, Cățelu
7 camere
170 mp
370 mp teren
Casă cu 3 camere cu Teren 565 Mp în Tâncăbești
349.000 €
Județul Ilfov, Tâncăbești
3 camere
256 mp
565 mp teren
Casă cu 6 camere cu Teren 1200 Mp în Central
410.000 €
Județul Ilfov, Chitila
6 camere
180 mp
1.200 mp teren

Abonează-te la newsletter să fii primul care primește cele mai noi recomandări de proprietăți și sfaturi de la experți.