Vand- Cladire de 1048 mp-la pre? de apartament

160.000 €

Băicoi, Judeţul Prahova

Nr. camere:
6
Suprafață utilă:
1.174 mp
Suprafață teren:
1.400 mp

Descriere casă

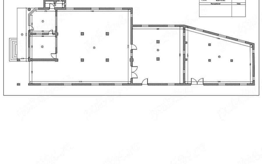
OCAZIE UNICA BAICOI: CLADIRE 1048 MP LA PRE? DE APARTAMENT! Vand regim de URGEN?A cladire de birouri spa?iu comercial situata in Baicoi, str. Republicii, la doar 2 minute de DN1 ?i 300 m de centru. PRE? IMBATABIL: 160.000 EURO (doar 136 mp!) Aceasta este cea mai ieftina proprietate comerciala de mari dimensiuni din zona, oferind un raport suprafa?a pre? de neegalat. DETALII TEHNICE: Suprafa?a construita: 1048 mp (P+1 Etaj). Suprafa?a teren: 1400 mp (curte generoasa). Parcare: Posibilitate amenajare 15 locuri de parcare private. Compartimentare: 8 camere + 4 spa?ii open-space imense (pot fi adaptate pentru orice destina?ie). Utilita?i complete: Apa,gaze, canalizare, CURENT TRIFAZIC (ideal pentru produc?ie). POTEN?IAL DE INVESTI?IE (RANDAMENT 11% pe an): Se poate inchiria imediat pentru 1500 Euro luna. Amortizarea investi?iei in aproximativ 9 ani. Ideala pentru: Clinica medicala, Sediu firma, Produc?ie u?oara, Depozitare, Centru logistic. Loca?ie strategica: Acces facil catre Ploie?ti Bra?ov via DN1. CONTACT PROPRIETAR: Acte la zi. Se vinde imediat! ID anun? : 1693236291
Citește mai mult Citește mai puțin

Detalii casă

Actualizat în: 26 Martie 2026 ID anunț: 362003
Nr. camere: 6
Suprafață utilă: 1.174 mp
Suprafață utilă totală: 1.174 mp
Suprafață teren: 1.400 mp
An construcție: 2000

Istoric preț

Facilități

Utilități
Gaze

Proprietăți similare

Casă cu 8 camere cu Teren 1476 Mp în Central
167.000 €
Județul Prahova, Băicoi
8 camere
1.048 mp
1.476 mp teren
Casă cu 6 camere cu Teren 3163 Mp în Central
160.500 €
Județul Prahova, Băicoi
6 camere
154 mp
3.163 mp teren
Casă cu 5 camere cu Teren 287 Mp în Central
158.800 €
Județul Prahova, Băicoi
5 camere
175 mp
287 mp teren
Casă cu 5 camere cu Teren 400 Mp în Central
150.000 €
Județul Prahova, Băicoi
5 camere
124 mp
400 mp teren
Casă cu 4 camere cu Teren 272 Mp în Central
160.000 €
Județul Prahova, Băicoi
4 camere
150 mp
272 mp teren
Casă cu Teren 1500 Mp în Central
150.000 €
Județul Prahova, Băicoi
1.200 mp
1.500 mp teren
Casă cu 5 camere cu Canalizare în Central
160.000 €
Județul Prahova, Băicoi
5 camere
135 mp
492 mp teren
Casă cu 5 camere cu Canalizare în Central
149.000 €
Județul Prahova, Băicoi
5 camere
208 mp
1.354 mp teren
Casă cu 3 camere cu Canalizare în Central
160.000 €
Județul Prahova, Băicoi
3 camere
115,6 mp
300 mp teren

Abonează-te la newsletter să fii primul care primește cele mai noi recomandări de proprietăți și sfaturi de la experți.