Casa P+M, 5 camere, Baicoi

160.000 €

Băicoi, Judeţul Prahova

Nr. camere:
5
Suprafață utilă:
135 mp
Suprafață teren:
492 mp

Descriere casă

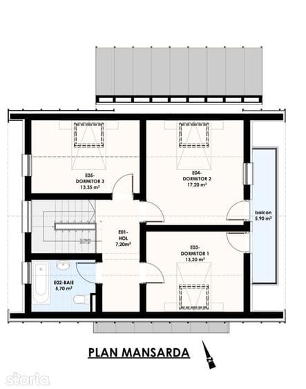
Vanzare casa P+M, situata in Baicoi, la mai putin de un km distanta de centru, construita in anul 2023. Aceasta are suprafata construita a parterului de 91,7m2 si suprafata construita a mansardei de 76,8m2, cu suprafata desfasurata de 168,58 m2 , cu dimensiunile generale in plan: 9,20 m X 8,35 m . Suprafata terenului este de 492 mpImobilul dispune de urmatoarea compartimentare: MANSARDA :Dormitor 1 = 13,35 m2Dormitor 2 = 17,2 m2Dormitor 3 = 13,2 m2Baie = 5,7 m2Hol = 7,2 m2Balcon = 5,55 m2 PARTER :Bucatarie = 11,25 m2Camera de zi = 18,4m2Birou = 9m2Baie = 5,7 m2Hol si casa scarii = 15,25m2Terasa acoperita = 13,9m2Casa este construita din caramida porotherm, cu fundatia hidro si termoizolata, peretii exteriori izolati cu vata bazaltica cu grosimea de 10 cm, sarpanta lemn, invelitoare tabla zincata lisa- gri; tamplarie PVC (gri) profil salamander - geam termoizolant tripan.Peste mansarda aceasta are placa betonata care contribuie la cresterea gradului de rezistenta. Aceasta este prevazuta cu centrala termica de 24 kW.Sistemul de canalizare este compus din fosa septica dar este executata si infrastructura de legare la reteaua de canalizare a orasului care va fi disponibila in perioada urmatoare.Instalatia electrica este proiectata pentru o putere instalata de 6,3 KWh si executata pe conductori de cupru izolati si protejati in COPEX, conform standardelor de siguranta in vigoare. Aceasta dispune si de instalatie de curenti slabi ( TV, internet ) cu punct de conectare la reteua externa aflat in camera tehnica.
Citește mai mult Citește mai puțin

Detalii casă

ID anunț: 388831 Actualizat în: 26 Aprilie 2026
Nr. camere: 5
Suprafață utilă: 135 mp
Suprafață utilă totală: 135 mp
Suprafață teren: 492 mp
An construcție: 2023

Istoric preț

Puncte de interes

Școală
education
Gradinita
Învățământ aprox. 619 m
education
Scoala generala cu clasele 1-8
Învățământ aprox. 705 m
education
Eden gradinita si scoala primara
Învățământ aprox. 1997 m
Recreere
restaurants
la Buceanu
Restaurante aprox. 587 m
parks
Parc
Recreere aprox. 842 m
shopping
Penny Market
Supermarket/Mall aprox. 904 m

Proprietăți similare

Casă cu Teren 1500 Mp în Central
150.000 €
Județul Prahova, Băicoi
1.200 mp
1.500 mp teren
Casă cu 8 camere cu Teren 1476 Mp în Central
167.000 €
Județul Prahova, Băicoi
8 camere
1.048 mp
1.476 mp teren
Casă cu 4 camere cu Teren 272 Mp în Central
160.000 €
Județul Prahova, Băicoi
4 camere
150 mp
272 mp teren
Casă cu 5 camere cu Canalizare în Central
149.000 €
Județul Prahova, Băicoi
5 camere
208 mp
1.354 mp teren
Casă cu 3 camere cu Canalizare în Central
160.000 €
Județul Prahova, Băicoi
3 camere
115,6 mp
300 mp teren
Casă cu 5 camere cu Teren 400 Mp în Central
150.000 €
Județul Prahova, Băicoi
5 camere
124 mp
400 mp teren
Casă cu 4 camere în Central
159.000 €
Județul Prahova, Băicoi
4 camere
261 mp
Casă cu 6 camere cu Teren 1400 Mp în Băicoi
160.000 €
Județul Prahova, Băicoi
6 camere
1.174 mp
1.400 mp teren
Casă cu 3 camere în Central
165.000 €
Județul Prahova, Sinaia
3 camere
67 mp

Abonează-te la newsletter să fii primul care primește cele mai noi recomandări de proprietăți și sfaturi de la experți.