Vanzare cladire de birouri Ultracentral-Universitate

€ 3.200.000

Universitate, Bucureşti

Suprafață utilă totală:
3.500 mp
Nr. niveluri:
6
An construcție:
1963

Descriere

Raportează anunț

Vanzare cladire de birouri Ultracentral-Universitate

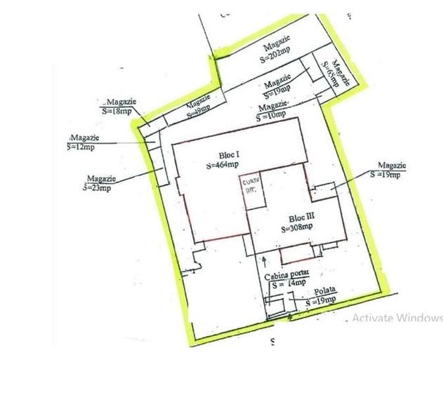
ID intern: 363651 Spații de birouri amplasate în două corpuri de clădiri de birouri: bloc I, cu regim de înălțime S+P+6E+7Eteh, cu suprafață utilă de 2.702,65 mp și bloc III, cu regim de înălțime S+P+2E, cu suprafață utilă de 955,74 mp Anul construcției: 1963 Regim de înălțime: S+P+6E +7Etehn Lift: 1 Structura: cadre din beton armat, planșee din beton armat Acoperiș: terasă Aspect interior: bun Aspect exterior: mediu Funcțiunile clădirii: etaje – birouri, ateliere de proiectare, recepții, spații pentru întâlniri, subsol: spații depozitare, centrala termică, hidrofor Tipul construcției: clădire de birouri Anul construcției: 1940 modernizată și întreținută succesiv Regim de înălțime: S+P+2E Lift: - Structura: cadre din beton armat, planșee din beton armat Acoperiș: șarpantă cu învelitoare din tablă   Spatiu de birouri in de vanzare in zona Universitate - Bucuresti, este construit in anul 1963, renovat , Vizionarea acestui imobil se face doar în baza semnării unui acord de vizionare conform codului civil, art 2.096-2.102 . Se percepe comision 3%. Politica agentiei este de a optimiza negocierea pretului in raport cu comisionul. ID intern: 363651 Spații de birouri amplasate în două corpuri de clădiri de birouri: bloc I, cu regim de înălțime S+P+6E+7Eteh, cu suprafață utilă de 2.702,65 mp și bloc III, cu regim de înălțime S+P+2E, cu suprafață utilă de 955,74 mp Anul construcției: 1963 Regim de înălțime: S+P+6E +7Etehn Lift: 1 Structura: cadre din beton armat, planșee din beton armat Acoperiș: terasă Aspect interior: bun Aspect exterior: mediu Funcțiunile clădirii: etaje – birouri, ateliere de proiectare, recepții, spații pentru întâlniri, subsol: spații depozitare, centrala termică, hidrofor Tipul construcției: clădire de birouri Anul construcției: 1940 modernizată și întreținută succesiv Regim de înălțime: S+P+2E Lift: - Structura: cadre din beton armat, planșee din beton armat Acoperiș: șarpantă cu învelitoare din tablă   Spatiu de birouri in de vanzare in zona Universitate - Bucuresti, este construit in anul 1963, renovat , Vizionarea acestui imobil se face doar în baza semnării unui acord de vizionare conform codului civil, art 2.096-2.102 . Se percepe comision 3%. Politica agentiei este de a optimiza negocierea pretului in raport cu comisionul. Nr terase: 0 Nr grupuri sanitare: 10 Suprafata construita: 3658 mp Suprafata terase: 0 mp Suprafata curte: 0 mp Nr garaje: 0 Vicii cunoscute: Nr incaperi: 20 pretvanzare: 3200000 monedavanzare: EUR pretvanzaremp: 914.28571428571 monedavanzaremp: EUR Disponibilitate proprietate: imediat
Citește mai mult Citește mai puțin
ID anunț: 3147792 Actualizat în: 20 Ianuarie 2026
Suprafață utilă: 3.500 mp
Suprafață utilă totală: 3.500 mp
Regim înălțime: P+6E
An construcție: 1963

Istoric preț

Proprietăți similare

Birou, de 3,560 mp, în Universitate
€ 3.200.000
București, Universitate
3.560 mp utili
6E
1940
Birou, de 3,700 mp, în Central
€ 3.200.000
București, Central
3.700 mp utili
6E
1963
Spațiu comercial, de 2,500 mp, în Cișmigiu
€ 3.000.000
București, Cișmigiu
2.500 mp utili
1.100 mp teren
2E
Birou, de 2,930 mp, în Victoriei
€ 3.180.000
București, Victoriei
2.930 mp utili
7E
2001
Spațiu comercial, de 2,180 mp, în Centrul Istoric
€ 2.900.000
București, Centrul Istoric
2.180 mp utili
Birou, de 1,500 mp, în Romană
€ 3.300.000
București, Romană
1.500 mp utili
5E
2014
Spațiu comercial, de 2,200 mp, în Central
€ 3.200.000
București, Central
2.200 mp utili
Birou, de 2,530 mp, în P-ța Victoriei
€ 3.190.000
București, P-ța Victoriei
2.530 mp utili
7E
2001
Spațiu industrial, de 5,000 mp, în Theodor Pallady
€ 3.500.000
București, Theodor Pallady
5.000 mp utili
9.100 mp teren
2010

Abonează-te la newsletter să fii primul care primește cele mai noi recomandări de proprietăți și sfaturi de la experți.