Spatiu de vanzare ultracentral Tulcea

500.000 €
1,562.50 € / mp

Ultracentral, Tulcea

Suprafață utilă totală:
320 mp
An construcție:
1985

Descriere spațiu comercial

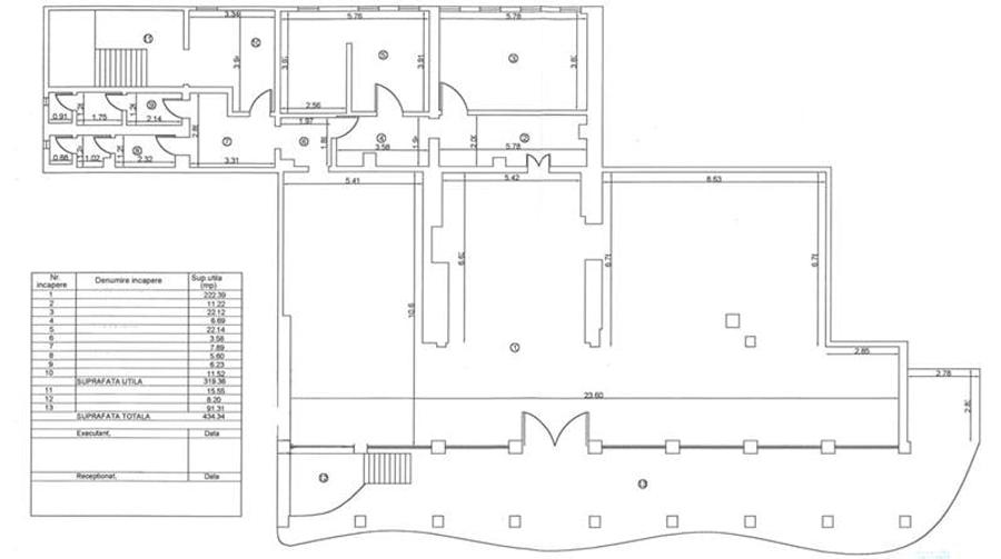
EUROPA IMOBILIARE ofera spre vânzare un spatiu situat în zona ultracentrala a municipiului Tulcea, o locatie premium, ideala atât pentru desfasurarea activitatilor comerciale, cât si pentru conversia în apartamente de lux. - Suprafata generoasa (434 m.p. din care terasa 114 m.p.) ce permite recompartimentarea în functie de necesitati. - Pozitie strategica, într-o zona cu trafic intens si acces facil; - Potrivit pentru diverse utilizari – birouri, showroom, clinici, spatii comerciale sau locuinte exclusiviste; Spatiul ofera flexibilitate maxima pentru orice tip de proiect imobiliar, beneficiind de vizibilitate excelenta si acces la toate utilitatile necesare. Intrarea in imobil se face din strada Babadag prin 2 scari in ambele laturi care sunt cu acces exclusiv la acest imobil, facilitand varianta de a transforma spatiul in doua apartemente generoase fiecare cu intrare separata, in centrul orasului, la etajul 1 si cu terasa catre strada Babadag. Pretul de vanzare este 500.000 euro Pentru mai multe informatii si vizionari nu ezitati sa ne contactati sau va asteptam la sediul agentiei din str. Babadag nr. 12, bl.6, parter (vis-a-vis de CEC BANK). Agentia imobiliara Europa este o agentie de consultanta imobiliara profesionista, care lucreaza pentru tine si cu tine pentru a obtine cea mai buna tranzactie in favoarea ta! Nu conteaza daca esti proprietar sau esti un client in cautarea unei proprietati, noi suntem aici pentru a facilita totul, astfel incat lucrurile sa decurga perfect! ID intern: 4634
Citește mai mult Citește mai puțin

Detalii spațiu comercial

ID anunț: 191367 Actualizat în: 06 Martie 2026
Suprafață utilă: 320 mp
Suprafață utilă totală: 320 mp
An construcție: 1985

Istoric preț

Facilități

Utilități
Curent Gaze Canalizare

Puncte de interes

Mijloace transport
transport
Hotel Delta
Mijloace transport aprox. 143 m
transport
Autogara
Mijloace transport aprox. 978 m
transport
Tulcea Oras
Mijloace transport aprox. 1126 m
Școală
education
Liceul de Arta George Georgescu
Învățământ aprox. 815 m
education
Scoala Generala nr. 10
Învățământ aprox. 1344 m
education
Liceul Teoretic GRIGORE MOISIL
Învățământ aprox. 1519 m
education
Scoala generala nr.4
Învățământ aprox. 1603 m
Recreere
parks
Parc
Recreere aprox. 237 m
restaurants
Restaurant Faleza
Restaurante aprox. 295 m
shopping
Winmarkt
Supermarket/Mall aprox. 316 m
shopping
Fraher
Supermarket/Mall aprox. 1430 m

Proprietăți similare

Spațiu comercial, de 320 mp, în Central
500.000 €
Tulcea, Central
320 mp utili
Spațiu industrial, în Ceamurlia de Jos
510.000 €
Județul Tulcea, Ceamurlia de Jos
1970
Hotel/Pensiune, de 1,500 mp, în Mila 23
550.000 €
Județul Tulcea, Mila 23
1.500 mp utili
5.000 mp teren
2E

Abonează-te la newsletter să fii primul care primește cele mai noi recomandări de proprietăți și sfaturi de la experți.