Calea Calarasilor, Hala Traian, Vanzare Birouri, S+1+2+T, 353mp, comision 0

667.000 €
1,889.52 € / mp

Calea Călăraşilor, Bucureşti

Suprafață utilă totală:
353 mp
Nr. niveluri:
2
An construcție:
2004

Descriere spațiu comercial

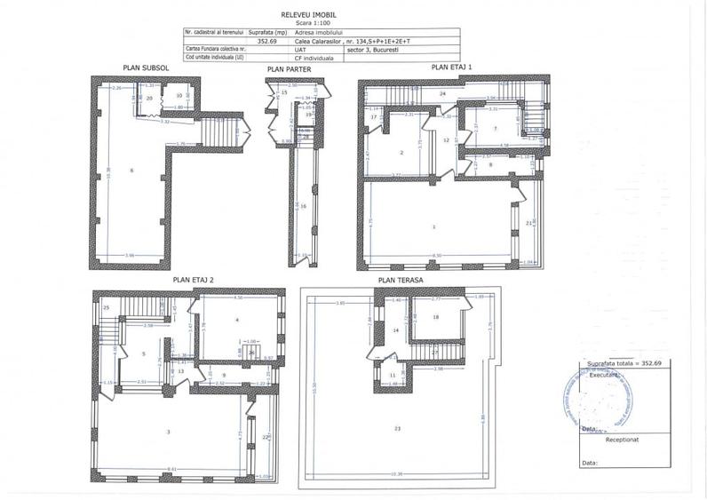
Zona Calea Calarasilor, Hala Traian. Cladire numai pentru birouri. Spatiu birou, dispus pe demisol, et 1, etaj 2, terasa din S+P+1+2+T, format din 7 camere, din care, 2 camere open space, subsol - 45mp, open space, 2 bucatarii, 4 bai, hol, 2 balcoane. An constructie 2004, suprafata utila totala 352.69mp. Teren 103.48 mp. Et. 1 - 3 camere, baie, bucatarie, balcon. Et 2 - 4 camere, baie bucatarie, balcon si iesire pe terasa care are 86mp plus un spatiu de depozitare. Subsol- open space, baie. Finisaje: gresie, faianta, termopan, parchet, mocheta, interfon, terasa circulabila refacuta 2025, garantie,. Dotat cu aer conditionat, centrala termica proprie, pe fiecare etaj, contorizat separat pe fiecare etaj. Spatiul se vinde nemobilat, bucataria este mobilata, daca se doreste si mobila de birou se poate discuta. Este stradal, usor de gasit. Proprietar persoana fizica. Colaboram cu agenti care au client pentru aceasta oferta. Certificat energetic clasa A Consumul anual specific de energie (KWH/mp/an) - 127.64 Indicele de emisie echivalent CO2 (KgCO2/Mp/an) - 18.37 Consum anual specific de energie din surse regenrabile (KWH/mp/an) - 0.
Citește mai mult Citește mai puțin
Nemobilat Aer condiționat Calorifere Centrală proprie Bine întreținut (Bună)

Detalii spațiu comercial

ID anunț: 3198004 Actualizat în: 03 Martie 2026
Suprafață utilă: 353 mp
Suprafață utilă totală: 353 mp
Etaj: Etaj 1 / 2
Regim înălțime: P+2E
An construcție: 2004

Istoric preț

Facilități

Utilități
Curent Apă Canalizare Gaze
Climatizare
Aer condiționat

Puncte de interes

Mijloace transport
transport
Hala Traian
Mijloace transport aprox. 416 m
transport
Statia Hala Traian; Liniile: 14, 40, 55, 56
Mijloace transport aprox. 431 m
transport
Statia Sf. Stefan; Liniile: 14, 40, 55, 56
Mijloace transport aprox. 432 m
transport
Piata Sfantul Stefan
Mijloace transport aprox. 436 m
Școală
education
Colegiul National "Matei Basarab"
Învățământ aprox. 415 m
education
Scoala cu clasele I-VIII, Nr. 73 Barbu Stefanescu Delavrancea
Învățământ aprox. 529 m
education
Şcoala Specială nr. 5
Învățământ aprox. 545 m
education
Scoala Speciala nr. 5
Învățământ aprox. 545 m
Recreere
shopping
Magazin Mixt
Supermarket/Mall aprox. 87 m
restaurants
Presto Pizza
Restaurante aprox. 112 m
shopping
Shop & Go
Supermarket/Mall aprox. 177 m
parks
Gradinita numarul 138
Recreere aprox. 311 m

Proprietăți similare

Spațiu comercial, de 200 mp, în Nicolae Grigorescu
649.999 €
București, Nicolae Grigorescu
200 mp utili
4E
1980
Spațiu industrial, în Industriilor
650.000 €
București, Industriilor
2008
Spațiu comercial, de 244 mp, în 1 Decembrie 1918
690.000 €
București, 1 Decembrie 1918
244 mp utili
Spațiu comercial, de 295 mp, în Titan
650.000 €
București, Titan
295 mp utili
1E
Spațiu comercial, de 200 mp, în Camil Ressu
705.000 €
București, Camil Ressu
200 mp utili
Spațiu comercial, de 100 mp, în Camil Ressu
660.000 €
București, Camil Ressu
100 mp utili
Spațiu comercial, de 120 mp, în Decebal
700.000 €
București, Decebal
120 mp utili
Spațiu industrial, de 1,200 mp, în Titan
670.000 €
București, Titan
1.200 mp utili
Spațiu comercial, de 100 mp, în Dristor
700.000 €
București, Dristor
100 mp utili

Abonează-te la newsletter să fii primul care primește cele mai noi recomandări de proprietăți și sfaturi de la experți.