Zero comision, 360mp birou cladire premium, Piata Muncii, 8 minute [M]

4.680 € / lună
13 € / mp / lună

Muncii, Bucureşti

Suprafață utilă totală:
360 mp
Nr. niveluri:
5

Descriere spațiu comercial

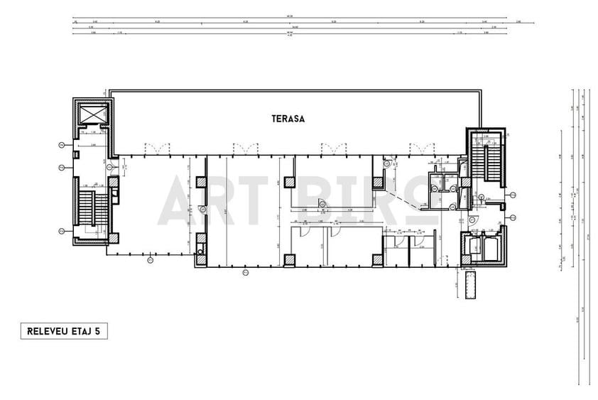
Imobil modern cu functiune birouri, inaugurat in anul 2017 la standarde clasa A si amplasat in proximitatea Piatei Muncii, ofera conditii optime de acomodare companiilor ce vizeaza zona central estica a orasului, un spatiu luminos si gata pentru preluare imediata. Spatiile disponibile: etaj 5 - 360mp plus terasa, iar formatul (conform releveu anexat) - zona receptie, 7 partitii cu suprafete de 77, 70, 32, 24, 11, 6, 6mp, bucatarie, camera server racita, 2 toalete exclusive. Partitiile de sticla fac parte din oferta. Spatiul se preda igienizat. Suplimentar: etaj 1 (585mp). Pretul chiriei este de 13 eur/mp, iar costuri administrative in valoare de 3.5 eur/mp. Parcare 100 eur/ unitate subterana, se pot aloca pana la 5 unitati. Se adauga TVA Cladirea dispune de climatizare (ventiloconvectoare cu aport aer proaspat), geamuri care se deschid, generator sisteme vitale, serviciu receptie, paza permanenta si administrare, monitorizare, senzori detectie, acces securizat, 3 lifturi, parcare proprie subterana/ supraterana. Accesul catre servicii transport se face rapid (distanta mers statie STB/ Metrou: 4/ 8' ([M] Piata Muncii) Utilitati contorizate separat/ pro-rata, costurile fiind disponibile pentru evaluare. Consultanta oferita pe intregul parcurs al procesului de relocare/ acomodare birou (analiza comparativa oferte, vizionari, clauze contractuale, servicii suport) este gratuita.
Citește mai mult Citește mai puțin

Detalii spațiu comercial

ID anunț: 273488 Actualizat în: 10 Februarie 2026
Suprafață utilă: 360 mp
Suprafață utilă totală: 360 mp
Etaj: Etaj 5 / 5
Regim înălțime: P+5E

Istoric preț

Facilități

Utilități
Curent Apă Canalizare

Puncte de interes

Mijloace transport
transport
Statia Agricultorilor linia 90, 86
Mijloace transport aprox. 280 m
transport
Mieilor
Mijloace transport aprox. 397 m
transport
Delea Veche
Mijloace transport aprox. 407 m
transport
Statia Calea Calarasilor / Delea Veche; Linia: 40, 56
Mijloace transport aprox. 411 m
Școală
education
Montessori Kindergarden of Bucharest
Învățământ aprox. 269 m
education
Asociatia Culturala Bravissimo
Învățământ aprox. 302 m
education
Universitatea Nationala de Arta Teatrala si Cinematografica
Învățământ aprox. 362 m
education
Scoala Nr. 85 Vasile Bunescu (en)
Învățământ aprox. 457 m
Recreere
restaurants
Trattoria Pascu
Restaurante aprox. 199 m
parks
Parc
Recreere aprox. 206 m
shopping
Mega Image
Supermarket/Mall aprox. 360 m
shopping
Supermarket Altra
Supermarket/Mall aprox. 424 m

Proprietăți similare

Birou, de 308 mp, în Muncii
4.620 € / lună
București, Muncii
308 mp utili
11E
2009
Birou, de 350 mp, în Muncii
4.550 € / lună
București, Muncii
350 mp utili
4E
2017
Birou, de 360 mp, în Muncii
4.680 € / lună
București, Muncii
360 mp utili
5E
2016
Birou, de 308 mp, în Muncii
4.620 € / lună
București, Muncii
308 mp utili
11E
2009
Birou, de 178 mp, în Moșilor
4.499 € / lună
București, Moșilor
178 mp utili
Birou, de 2,000 mp, în Barbu Văcărescu
4.250 € / lună
București, Barbu Văcărescu
2.000 mp utili
18E
2010
Birou, de 210 mp, în Dacia
4.807 € / lună
București, Dacia
210 mp utili
1939
Birou, de 515 mp, în Iancului
4.635 € / lună
București, Iancului
515 mp utili
3E
1980
Birou, de 24,000 mp, în Barbu Văcărescu
4.800 € / lună
București, Barbu Văcărescu
24.000 mp utili
20E
2010

Abonează-te la newsletter să fii primul care primește cele mai noi recomandări de proprietăți și sfaturi de la experți.