Tomis III , spatii IDEAL BIROURI, 2 camere, curte, constructie 2023

700 € / lună
9.72 € / mp / lună

Tomis III, Constanţa

Suprafață utilă totală:
72 mp
An construcție:
2023

Descriere spațiu comercial

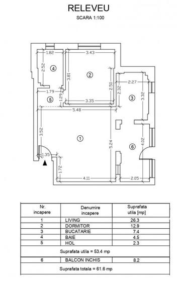
Agentia Zig-Zag va ofera sper inchiriere spatii de birouri pozitionate in zona DACIA-TOMIS III , amplasate in imobil constructie 2023 cu destinatie mixta (biroui/rezidential) ce reprezintă confort, design și inovație, po Imobilul cuprinde spatii de birouri cu comparitmentări generoase, camere înalte și suprafețe vitrate mari. Alegerea unui spatiu implică un grad sporit de confort și siguranță. Datorită amplasării oferă acces facil către: City Park Mall, Parcul Tăbăcăriei, Piața Tomis III, instituții bancare, mijloace de transport în comun, magazine, etc. Spatiile disponibile variaza intre 2 - 4 camere si suprafete intre 67 - 150 mp. Spatiul in cauza are o suprafata utila de 62 mp. , dispune de curte proprie de 15 mp. accesibila din spatiu , bucatarie/oficiu mobilata si 1 LOC DE PARCARE SUPRATERAN. Deasemeni , spatiile beneficiaza de contorizare proprie (apa, curent gaz ) pentru eficientizarea costurilor utilitatilor. Fiind finalizat in 2023, dispune de e dotări și finisaje noi si de calitate: tâmplărie PVC Salamander Bluevolution 82, geam tripan Low-E, culoare gri antracit, ușă metalică antiefracție, bine antifonată, tocuri îmbrăcate în lemn, centrală Vaillant 28KW, încălzire în pardoseală cu distribuitoare pentru fiecare cameră, baie și hol, distribuitoare pentru apă caldă și rece, separat pentru fiecare baie și bucătărie, parchet Egger – special pentru încălzire în pardoseală, gresie, faianță – Marazzi, uși de interior din MDF vopsit – Pinum / Porta Doors, băi hidroizolate cu bandă Mapei, dotate cu obiecte sanitare: bazin incastrat Grohe, cadă, set WC și obiecte sanitare Roca, rigolă de duș din aluminiu, instalația electrică cu doze modulare Gewiss, terase cu parapeți din alubond și sticlă securizată, casa scării dotată cu: marmură (plăci mari), balustradă din lemn și fier, sistem de iluminat, lift Schindler, spațiu de recreere în aer liber, dotat cu elemente de peisagistică. Proprietar persoana juridica (pret +TVA).
Citește mai mult Citește mai puțin
Zonă de litoral

Detalii spațiu comercial

ID anunț: 3823012 Actualizat în: 23 Martie 2026
Suprafață utilă: 72 mp
Suprafață utilă totală: 72 mp
Etaj: Parter
An construcție: 2023

Istoric preț

Facilități

Utilități
Curent Apă Canalizare

Puncte de interes

Mijloace transport
transport
Statia Trocadero; Linia 100, 100C
Mijloace transport aprox. 162 m
transport
Trocadero [100
Mijloace transport aprox. 317 m
transport
Dacia [100
Mijloace transport aprox. 437 m
transport
Statia Liceul 4; Linia 42
Mijloace transport aprox. 476 m
Școală
education
School No. 27 (en)
Învățământ aprox. 102 m
education
Scoala Spectrum
Învățământ aprox. 109 m
education
Gradinita nr. 58 romano-turca Constanta
Învățământ aprox. 363 m
education
Gradinita Nr.58
Învățământ aprox. 417 m
Recreere
restaurants
Grapefruit Pizza&Catering (en)
Restaurante aprox. 356 m
shopping
Perla
Supermarket/Mall aprox. 432 m
shopping
Carrefour Market
Supermarket/Mall aprox. 445 m
parks
Dacia Fountain (en)
Recreere aprox. 663 m

Proprietăți similare

Birou, de 36 mp, în Delfinariu
641 € / lună
Constanța, Delfinariu
36 mp utili
5E
2015
Birou, de 60 mp, în Capitol
750 € / lună
Constanța, Capitol
60 mp utili
Birou, de 36 mp, în Delfinariu
640 € / lună
Constanța, Delfinariu
36 mp utili
Birou, de 75 mp, în Tomis Nord
700 € / lună
Constanța, Tomis Nord
75 mp utili
2022
Birou, de 87 mp, în Central
700 € / lună
Constanța, Central
87 mp utili
1E
1960
Birou, de 70 mp, în Central
700 € / lună
Constanța, Central
70 mp utili
1E
1980
Birou, de 120 mp, în Universitate
649 € + TVA / lună
Constanța, Universitate
120 mp utili
Birou, de 80 mp, în Central
640 € / lună
Constanța, Central
80 mp utili
2E
Birou, de 100 mp, în Ultracentral
750 € / lună
Constanța, Ultracentral
100 mp utili
3E
2022

Abonează-te la newsletter să fii primul care primește cele mai noi recomandări de proprietăți și sfaturi de la experți.