Spatiu pentru birouri situat in Centru-Str. Stefan Mihaileanu

700 € / lună
8.05 € / mp / lună

Central, Constanţa

Suprafață utilă totală:
87 mp
Nr. niveluri:
1
An construcție:
1960

Descriere spațiu comercial

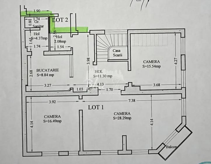
La etajul 1 al unei cladiri situate chiar in centrul orasului, pe Strada Ștefan Mihaileanu, este disponibil un spatiu de birouri pregatit pentru activitate imediata. Interiorul este compartimentat practic in 3 birouri, completat de grup sanitar si bucatarie, asigurand toate facilitatile necesare pentru un mediu de lucru organizat. Spatiul poate fi inchiriat atat mobilat, cat si nemobilat, oferind flexibilitate in functie de nevoile viitorului chirias. Disponibilitatea imediata face ca acest birou sa fie alegerea potrivita pentru cei care isi doresc o relocare rapida in zona centrala. Nr grupuri sanitare: 1 Suprafata construita: 100 mp Nr incaperi: 3 Utilitati - Sistem incalzire (Centrala proprie,Calorifere); Climatizare (Aer conditionat); Utilitati generale (Curent,Apa,Canalizare,Gaz,Telefon) Finisaje - Izolatii termice (Exterior); Podele (Gresie,Parchet); Ferestre cu geam termopan (PVC) Dotari - Contorizare (Apometre,Contor gaz) pret inchiriere: 700 moneda inchiriere: EUR Disponibilitate proprietate: imediat
Citește mai mult Citește mai puțin
Mobilat Aer condiționat Calorifere Centrală proprie Zonă de litoral

Detalii spațiu comercial

ID anunț: 1871491 Actualizat în: 23 Martie 2026
Suprafață utilă: 87 mp
Suprafață utilă totală: 87 mp
Etaj: Etaj 1 / 1
Regim înălțime: P+1E
An construcție: 1960

Istoric preț

Facilități

Contorizare
Apometre Contor gaz
Mobilat
Mobilat
Utilități
Curent Apă Canalizare Gaze
Sistem încălzire
Centrală proprie Calorifere
Climatizare
Aer condiționat
Podele
Parchet Gresie
Izolații termice
Exterior
Ferestre cu geam termopan
PVC

Puncte de interes

Mijloace transport
transport
Magazinul Tomis [42
Mijloace transport aprox. 284 m
transport
Republica [40C
Mijloace transport aprox. 331 m
transport
Magazinul Tomis [42
Mijloace transport aprox. 332 m
transport
Statia republica; Linia 2,40C
Mijloace transport aprox. 338 m
Școală
education
Grădiniţa cu Program Normal Nr.3
Învățământ aprox. 141 m
education
Facultatea de Medicina Dentara
Învățământ aprox. 250 m
education
Liceul I.N. Roman
Învățământ aprox. 312 m
education
Liceul Ioan.N.Roman
Învățământ aprox. 312 m
Recreere
shopping
Tomis Mall
Supermarket/Mall aprox. 359 m
restaurants
Restaurant Albatros
Restaurante aprox. 437 m
parks
Teren sportiv
Recreere aprox. 491 m
shopping
Carrefour Market
Supermarket/Mall aprox. 521 m

Proprietăți similare

Birou, de 70 mp, în Central
700 € / lună
Constanța, Central
70 mp utili
1E
1980
Birou, de 80 mp, în Central
640 € / lună
Constanța, Central
80 mp utili
2E
Birou, de 60 mp, în Capitol
750 € / lună
Constanța, Capitol
60 mp utili
Birou, de 36 mp, în Delfinariu
640 € / lună
Constanța, Delfinariu
36 mp utili
Birou, de 100 mp, în Ultracentral
750 € / lună
Constanța, Ultracentral
100 mp utili
3E
2022
Birou, de 72 mp, în Tomis III
700 € / lună
Constanța, Tomis III
72 mp utili
2023
Birou, de 36 mp, în Delfinariu
641 € / lună
Constanța, Delfinariu
36 mp utili
5E
2015
Birou, de 120 mp, în Universitate
649 € + TVA / lună
Constanța, Universitate
120 mp utili
Birou, de 75 mp, în Tomis Nord
700 € / lună
Constanța, Tomis Nord
75 mp utili
2022

Abonează-te la newsletter să fii primul care primește cele mai noi recomandări de proprietăți și sfaturi de la experți.