0% COMISION! Spatiu modern de birour,i 220mp, parcari, Calea Turzii

2.200 € / lună
10 € / mp / lună

Europa, Cluj-Napoca

Suprafață utilă totală:
220 mp
Nr. niveluri:
6
An construcție:
2019

Descriere spațiu comercial

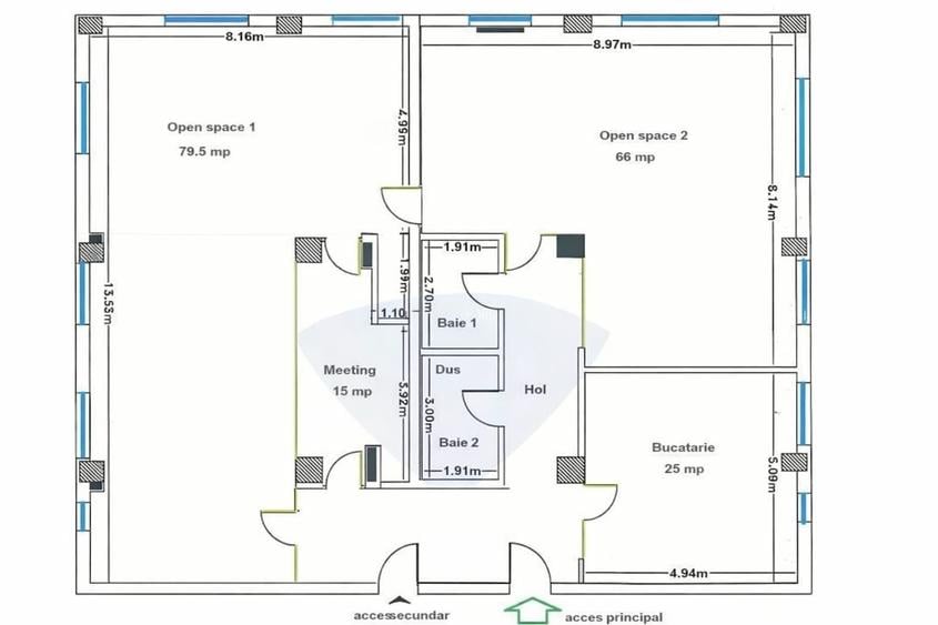
0% COMISION! Spatiu de birouri modern 220 mp | Zona Calea Turzii – OMV | 3 parcari incluse Va propunem spre inchiriere un spatiu de birouri modern, cu suprafata utila de 220 mp, situat la parterul unei cladiri construite in 2019, in zona Europa – Calea Turzii (reper OMV), Cluj-Napoca. Spatiul este ideal pentru firme de IT, contabilitate, arhitectura, consultanta sau alte activitati de birou care necesita un mediu profesional, luminos si eficient compartimentat. Compartimentare 2 birouri open space generoase 1 meeting room 2 bai complet amenajate zona de relaxare bucatarie complet utilata 2 holuri de acces Dotari si beneficii Bucatarie mobilata si utilata (frigider incorporat, espressor, cuptor microunde, fierbator) Birouri mobilate (birouri, scaune, dulap depozitare, ecran proiectie, flipchart) Meeting room mobilat (masa si scaune) 2 centrale Ariston in condensatie Consum redus pentru incalzire Ferestre tripan cu rulouri Aer conditionat Pardoseala mocheta Acces facil inclusiv cu rampa 3 locuri de parcare private incluse Localizare si acces Zona ofera acces rapid catre mijloace de transport in comun (liniile 21, 43B, 45), magazine (Carrefour, Mega Image, Profi, Moldovan, Remedium), sala de fitness 18Gym, restaurant in cladirea Hexagon si statie OMV. Spatiul este disponibil imediat.
Citește mai mult Citește mai puțin

Detalii spațiu comercial

ID anunț: 3696026 Actualizat în: 03 Martie 2026
Suprafață utilă: 220 mp
Suprafață utilă totală: 220 mp
Etaj: Parter / 6
Regim înălțime: P+6E
An construcție: 2019

Istoric preț

Facilități

Utilități
Curent Apă Canalizare

Puncte de interes

Mijloace transport
transport
L. Matis
Mijloace transport aprox. 338 m
transport
N. Steinhardt
Mijloace transport aprox. 391 m
transport
L.Matis
Mijloace transport aprox. 407 m
transport
N. Steinhardt
Mijloace transport aprox. 432 m
Școală
education
Gradinita Liceului Waldorf
Învățământ aprox. 604 m
education
Liceul Waldorf
Învățământ aprox. 618 m
education
Helen
Învățământ aprox. 888 m
education
Scoala Generala nr. 10 / Şcoala Radu Stanca
Învățământ aprox. 1285 m
Recreere
shopping
Lidl
Supermarket/Mall aprox. 624 m
parks
Parc
Recreere aprox. 790 m
shopping
Baumax
Supermarket/Mall aprox. 837 m
restaurants
G94
Restaurante aprox. 848 m

Proprietăți similare

Birou, de 350 mp, în Europa
2.000 € / lună
Cluj-Napoca, Europa
350 mp utili
1E
Birou, de 220 mp, în Europa
2.200 € / lună
Cluj-Napoca, Europa
220 mp utili
Birou, de 220 mp, în Europa
2.200 € / lună
Cluj-Napoca, Europa
220 mp utili
Birou, de 212 mp, în Europa
2.101 € / lună
Cluj-Napoca, Europa
212 mp utili
3E
Birou, de 220 mp, în Calea Turzii
2.200 € / lună
Cluj-Napoca, Calea Turzii
220 mp utili
2020
Birou, de 155 mp, în Someșeni
2.200 € / lună
Cluj-Napoca, Someșeni
155 mp utili
Birou, de 220 mp, în Calea Turzii
2.100 € / lună
Cluj-Napoca, Calea Turzii
220 mp utili
6E
2018
Birou, de 160 mp, în Central
2.080 € / lună
Cluj-Napoca, Central
160 mp utili
8E
2009
Birou, de 230 mp, în Central
2.300 € / lună
Cluj-Napoca, Central
230 mp utili
8E
2006

Abonează-te la newsletter să fii primul care primește cele mai noi recomandări de proprietăți și sfaturi de la experți.