Spatiu de birouri modern|4 încăperi|Calea Turzii/Hexagon

2.100 € / lună
9.55 € / mp / lună

Calea Turzii, Cluj-Napoca

Suprafață utilă totală:
220 mp
Nr. niveluri:
6
An construcție:
2018

Descriere spațiu comercial

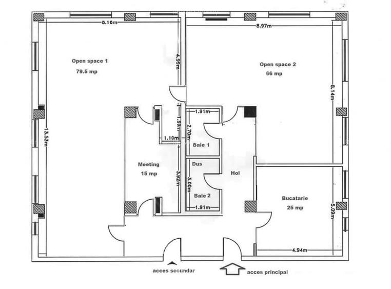
Dacă deții o firmă de IT și îți dorești să închiriezi un spațiu de birou situat lângă clădirea Hexagon/Calea Turzii, acest spațiu de birouri reprezintă oportunitatea ideală de închiriere. Vă propunem un spațiu de 220 m2, fiind compartimentat în: • două spații open space: unul de 79.5 m2 și celălalt de 66 m2; • o zona de meeting de 15 m2; • o bucătărie modernă de tip lounge; • două băi; • un hol spațios; Exista două uși de acces diferite, spațiile fiind cu legătură între unul și celălalt. Datorita compartimentarii, spatiul poate fi utilizat si de doua m firme, partajand zonele comune (hol, bai, loc de luat masa, meeting room). In apropiere: Exista statii de autobuz (21, 43B - la 5 minute pe jos), 45 (pe Buna Ziua, la 10 minute pe jos), Diverse magazine: Carrefour (1 minut), Mega Image-Profi-Moldovan-Remedium (5 minute), OMV (2 minute) Săli de fitness: 18gym - 2 minute pe jos - restaurantul din cladirea Hexagon (2 minute pe jos). Vă propunem acest spațiu pentru propria firmă de IT sau orice altă activitate de birou care implică dorința de a închiria un spațiu spațios, modern și utilat cu toate cele necesare. Așadar, vă invităm călduroși să vizionați aceste spații de birouri ideale pentru activitatea realizată.
Citește mai mult Citește mai puțin
Calorifere Centrală proprie

Detalii spațiu comercial

ID anunț: 3662268 Actualizat în: 27 Martie 2026
Suprafață utilă: 220 mp
Suprafață utilă totală: 220 mp
Etaj: Parter / 6
Regim înălțime: P+6E
An construcție: 2018

Istoric preț

Facilități

Utilități
Curent

Puncte de interes

Mijloace transport
transport
Alsifcom
Mijloace transport aprox. 386 m
transport
Statia Alsifcom, Linia 40
Mijloace transport aprox. 388 m
transport
Dacia Service
Mijloace transport aprox. 405 m
transport
Statia Dacia Service, Linia 40
Mijloace transport aprox. 433 m
Școală
education
Liceul de Informatica Tiberiu Popoviciu
Învățământ aprox. 1249 m
education
Liceul de Informatica "Tiberiu Popoviciu"
Învățământ aprox. 1272 m
education
Facultatea Arte Plastice, Sectia Foto-Video
Învățământ aprox. 1433 m
education
Helen
Învățământ aprox. 1568 m
Recreere
shopping
Baumax
Supermarket/Mall aprox. 624 m
restaurants
Greenbox Pizza
Restaurante aprox. 655 m
parks
Parc
Recreere aprox. 671 m
shopping
Lidl
Supermarket/Mall aprox. 1120 m

Proprietăți similare

Birou, de 212 mp, în Calea Turzii
1.900 € / lună
Cluj-Napoca, Calea Turzii
212 mp utili
2E
Birou, de 150 mp, în Calea Turzii
1.950 € / lună
Cluj-Napoca, Calea Turzii
150 mp utili
4E
Birou, de 220 mp, în Calea Turzii
2.200 € / lună
Cluj-Napoca, Calea Turzii
220 mp utili
2020
Birou, de 220 mp, în Europa
2.200 € / lună
Cluj-Napoca, Europa
220 mp utili
6E
2019
Birou, de 205.47999572754 mp, în Semicentral
2.261 € / lună
Cluj-Napoca, Semicentral
205,48 mp utili
2010
Birou, de 3,853 mp, în Semicentral
2.268 € / lună
Cluj-Napoca, Semicentral
3.853 mp utili
6E
Birou, de 245 mp, în Dâmbul Rotund
2.205 € / lună
Cluj-Napoca, Dâmbul Rotund
245 mp utili
8E
Birou, de 160 mp, în Central
2.080 € / lună
Cluj-Napoca, Central
160 mp utili
8E
2009
Birou, de 230 mp, în Ultracentral
1.900 € / lună
Cluj-Napoca, Ultracentral
230 mp utili
2E
1893

Abonează-te la newsletter să fii primul care primește cele mai noi recomandări de proprietăți și sfaturi de la experți.