2 camere cu terasa de 32 mp si parcare - Ultracentral - Unirii | Cal Calarasi

243.000 €

Ultracentral, Bucureşti

Nr. camere:
2
Suprafață utilă:
45 mp
Etaj:
1 / 5
An construcție:
2015
Nr. niveluri:
5

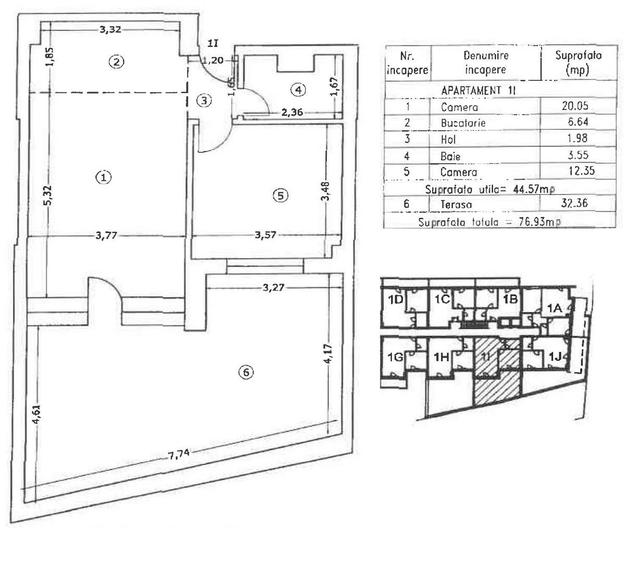
Descriere apartament

Descoperă un apartament de 2 camere într-o zonă ultracentrală a Bucureștiului, cu un atu rar în centrul orașului: o terasă spectaculoasă de 32 mp, perfectă pentru relaxare sau socializare. Situat la etajul 1 din 5, într-un bloc modern, construit în 2015, bine întreținut, apartamentul de 45 mp utili este luminos, aerisit și extrem de confortabil. Legătura dintre zona de zi și terasă creează un spațiu cu adevărat special, greu de găsit în centrul orașului. Se vinde mobilat și utilat, gata de mutare. În plus, locul de parcare inclus în preț elimină grija parcării – un avantaj rar pentru o proprietate centrală. Zona oferă acces rapid la Piața Unirii, bulevarde principale, mijloace de transport în comun, restaurante, cafenele și centre de business – toate la câțiva pași. Aceasta este o proprietate unică pe piață: bloc nou, terasă generoasă, parcare inclusă și poziționare ultracentrală. Ideală atât pentru locuit, cât și pentru investiție. Va stau la dispozitie pentru vizionare!
Citește mai mult Citește mai puțin
Confort 1 Semidecomandat Mobilat Aer condiționat Calorifere Centrală proprie

Detalii apartament

ID anunț: 3203698 Actualizat în: 20 Martie 2026
Nr. camere: 2
Suprafață utilă: 45 mp
Suprafață utilă totală: 45 mp
Compartimentare: Semidecomandat
Confort: 1
Etaj: Etaj 1 / 5
Nr. băi: 1
An construcție: 2015
Regim înălțime: P+5E

Istoric preț

Facilități

Pereți
Vopsea lavabilă
Podele
Gresie Parchet
Ușă intrare
Parchet Metal PVC
Izolații termice
Exterior
Ferestre cu geam termopan
PVC
Utilități
Curent Apă Canalizare Gaze Cablu Aragaz / Plită Frigider Supraveghere video
Sistem încălzire
Calorifere Centrală proprie
Internet
Cablu Wireless
Climatizare
Aer condiționat
Bucătărie
Mobilată Utilată
Mobilat
Mobilat
Electrocasnice
Aragaz Frigider Hotă
Diverse
Telecomandă poartă acces auto Telecomandă poartă garaj
Alte spații utile
Terasă
Facilități imobil
Interfon Lift
Amenajare străzi
Iluminat stradal Mijloace de transport în comun Asfaltate
Servicii imobil
Supraveghere video

Puncte de interes

Mijloace transport
transport
Piata Sfantul Stefan
Mijloace transport aprox. 76 m
transport
Statia Sf. Stefan; Liniile: 14, 40, 55, 56
Mijloace transport aprox. 83 m
transport
Alexandru Sihleanu
Mijloace transport aprox. 143 m
transport
Statia Piata Corneliu Coposu; Liniile: 14, 40, 55, 56
Mijloace transport aprox. 387 m
Școală
education
Grupul Scolar Industrial Unirea (en)
Învățământ aprox. 361 m
education
Grupul Scolar Industrial Unirea
Învățământ aprox. 363 m
education
Colegiul National "Matei Basarab"
Învățământ aprox. 365 m
education
Scoala cu clasele I-VIII, Nr. 73 Barbu Stefanescu Delavrancea
Învățământ aprox. 403 m
Recreere
restaurants
Hotel-Restaurant Vilo's 4*
Restaurante aprox. 82 m
parks
Parcul Sf. Stefan
Recreere aprox. 142 m
shopping
Mega Image - Hala Traian
Supermarket/Mall aprox. 399 m
shopping
Supermarket
Supermarket/Mall aprox. 436 m

Proprietăți similare

Apartament cu 3 camere în Ultracentral
239.000 €
București, Ultracentral
3 camere
75 mp
Etaj 8 / 9
Apartament cu 4 camere semidecomandat, mobilat în Ultracentral
248.000 €
București, Ultracentral
4 camere
76,99 mp
Etaj 7 / 8
Apartament cu 2 camere decomandat în Ultracentral
235.000 € + TVA
București, Ultracentral
2 camere
68 mp
Etaj 5 / 6
Apartament cu 3 camere circular, mobilat în Ultracentral
224.900 €
București, Ultracentral
3 camere
94 mp
Etaj 5
Apartament cu 3 camere semidecomandat, mobilat în P-ța Romană
259.000 €
București, P-ța Romană
3 camere
83,08 mp
Etaj 3 / 3
Apartament cu 5 camere decomandat, mobilat în Magheru
250.000 €
București, Magheru
5 camere
100 mp
Etaj 2
Apartament cu 4 camere decomandat în Calea Victoriei
259.000 €
București, Calea Victoriei
4 camere
95 mp
Etaj 3
Apartament cu 3 camere semidecomandat în Calea Victoriei
235.000 €
București, Calea Victoriei
3 camere
78 mp
Parter / 4
Apartament cu 2 camere circular, mobilat în Universitate
220.000 €
București, Universitate
2 camere
53 mp
Etaj 1 / 1

Abonează-te la newsletter să fii primul care primește cele mai noi recomandări de proprietăți și sfaturi de la experți.