1

Vanzare apartament 4 camere | Unirii Fântâni | 105mp utili | etaj 1|8

388.900 €

Central, Bucureşti

Nr. camere:
4
Suprafață utilă:
105 mp
Etaj:
1 / 8
An construcție:
1991
Nr. niveluri:
8

Descriere apartament

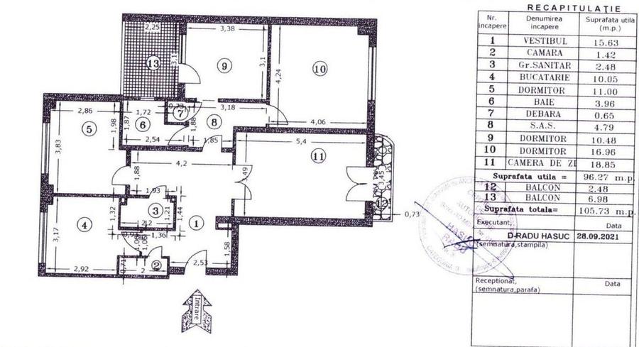
Agentia REfinder va propune spre vanzare un apartament 4 camere, in Piata Unirii, pozitionat cu vedere la Fântâni, bloc 1991, etajul 1 8 , decomandat. Apartamentul se remarca atat prin poziționare, compartimentare, suprafață, cât si prin renovarea modernă, fiind refacut in anul 2023 cu toate instalațiile si finisajele premium. Living generos cu balcon , cu vedere directa spre fântânile mari de la Unirii, oferind in orice timp si anotimp o vedere spectaculoasă. Dormitor matrimonial de 18 mp. Al doilea bacon , situat pe spate, este mare, inchis si încălzit, devenind a 5a camera funcțională. O oază de liniște in mijlocul orașului. Baie cu cadă si baie cu duș. Bucătăria este complet mobilată si utilată ( mobilier pe comandă). Blocul are o scară elegantă, vecini deosebiți si pază permanentă, denotă siguranță si liniște. Am atașat fotografii iar releveul apartamentului vi l oferim la cererea dumneavoastră. Apartamentul este liber, disponibil pentru mutare imediată. Proprietar persoană fizică. Preț vânzare: 387900E Agentia REfinder percepe un comision standard din pretul de vanzare cumparare.
Citește mai mult Citește mai puțin
Confort 1 Decomandat Nemobilat Aer condiționat Termoficare

Detalii apartament

ID anunț: 2575373 Actualizat în: 19 Martie 2026
Nr. camere: 4
Suprafață utilă: 105 mp
Suprafață utilă totală: 105 mp
Compartimentare: Decomandat
Confort: 1
Etaj: Etaj 1 / 8
Nr. băi: 2
An construcție: 1991
Regim înălțime: P+8E

Istoric preț

Facilități

Sistem încălzire
Termoficare
Bucătărie
Utilată Mobilată
Facilități imobil
Lift Interfon

Puncte de interes

Mijloace transport
transport
Capat Piata Unirii 2 linii : 783 (express).
Mijloace transport aprox. 234 m
transport
Bd. Dimitrie Cantemir
Mijloace transport aprox. 300 m
transport
Bd. Dimitrie Cantemir / Bd. Marasesti, Liniile 312, 313, 381, N105, N106, N112, 116, 23, 27
Mijloace transport aprox. 301 m
transport
Statie RATB
Mijloace transport aprox. 318 m
Școală
education
Cresa Micii Poznasi
Învățământ aprox. 129 m
education
Academia de Studii Economice
Învățământ aprox. 139 m
education
Academia de Studii Economice: Facultatea de Management - Administratie Publica
Învățământ aprox. 147 m
education
Liceul Teoretic "Ion Creanga" (en)
Învățământ aprox. 163 m
Recreere
parks
Parc
Recreere aprox. 93 m
restaurants
Restaurantul Horoscop
Restaurante aprox. 140 m
shopping
ClicMarket
Supermarket/Mall aprox. 414 m
shopping
Mega Image (en)
Supermarket/Mall aprox. 421 m

Proprietăți similare

Apartament cu 7 camere decomandat în Central
390.000 €
București, Central
7 camere
171 mp
Etaj 1 / 1
Apartament cu 2 camere semidecomandat în Central
385.990 €
București, Central
2 camere
98 mp
Parter
Apartament cu 2 camere decomandat în Central
390.000 €
București, Central
2 camere
102 mp
Etaj 1
Apartament cu 5 camere circular în Central
377.000 €
București, Central
5 camere
133 mp
Etaj 1
Apartament cu 3 camere decomandat în Central
375.000 €
București, Central
3 camere
80 mp
Etaj 1
Apartament cu 3 camere decomandat, mobilat în Central
420.000 €
București, Central
3 camere
78 mp
Etaj 1
Apartament cu 6 camere decomandat în Calea Plevnei
364.900 €
București, Calea Plevnei
6 camere
176,8 mp
Parter / 1
Apartament cu 3 camere decomandat în Ultracentral
365.000 €
București, Ultracentral
3 camere
80 mp
Etaj 1
Apartament cu 3 camere semidecomandat în Știrbei Vodă
400.000 € + TVA
București, Știrbei Vodă
3 camere
88 mp
Parter

Abonează-te la newsletter să fii primul care primește cele mai noi recomandări de proprietăți și sfaturi de la experți.