Apartament 2 camere de vânzare Gorjului

138.999 €

Gorjului, Bucureşti

Nr. camere:
2
Suprafață utilă:
53 mp
Etaj:
Parter / 4
An construcție:
1986
Nr. niveluri:
4

Descriere apartament

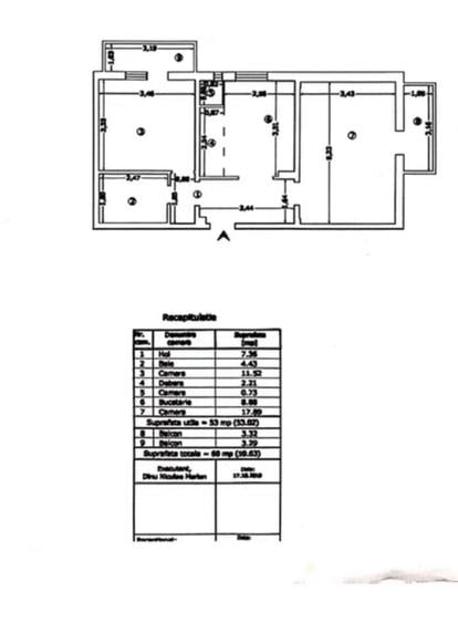
Va propunem spre vânzare un apartament finisat format din 2 camere, compartimentarea fiind decomandat, situat la parter din 4, cu o suprafata totala de 60 mp din care cea utila este de 53 mp, confortul termic este realizat prin centrala proprie, se vinde mobilat și utilat anul construcției 1986, renovat complet in anul 2023, apartamentul este izolat atât pe interior cat si pe exterior, in proximitate se regasesc următoarele: puncte farmaceutice, medicale, comerciale, educaționale, bancare, parcuri, metrou, piețe. Imobilul se află str Grintiesului, la doar 7 minute până la metrou Gorjului. Comision agenție 3%, ușor discutabil
Citește mai mult Citește mai puțin
Confort 1 Decomandat Mobilat Aer condiționat Centrală imobil Renovat Bine întreținut (Bună)

Detalii apartament

ID anunț: 4033171 Actualizat în: 01 Aprilie 2026
Nr. camere: 2
Suprafață utilă: 53 mp
Suprafață utilă totală: 53 mp
Compartimentare: Decomandat
Confort: 1
Etaj: Parter / 4
Nr. băi: 1
An construcție: 1986
Regim înălțime: P+4E

Istoric preț

Facilități

Pereți
Faianță Vopsea lavabilă
Podele
Gresie Parchet
Ușă intrare
Parchet Metal Lemn PVC
Uși interior
Lemn PVC
Stare interior
Stare bună Renovat
Izolații termice
Interior Exterior
Ferestre cu geam termopan
Lemn PVC
Utilități
Gaze Apă Curent Mașină de spălat rufe Frigider Aragaz / Plită Supraveghere video
Sistem încălzire
Centrală imobil
Climatizare
Aer condiționat
Bucătărie
Mobilată Utilată
Mobilat
Mobilat
Electrocasnice
Mașină de spălat Frigider Aragaz Hotă
Facilități imobil
Interfon
Amenajare străzi
Asfaltate
Servicii imobil
Administrare Supraveghere video

Puncte de interes

Mijloace transport
transport
statia Roşia Montană (106, 178*) (en)
Mijloace transport aprox. 263 m
transport
Statia Rosia Montana, linia 106
Mijloace transport aprox. 270 m
transport
Statia Ghirlandei, linia 106
Mijloace transport aprox. 382 m
transport
Statia Dezrobirii, linia 178,106
Mijloace transport aprox. 409 m
Școală
education
Cresa Militari
Învățământ aprox. 28 m
education
Scoala Nr. 310 Regele Mihai I
Învățământ aprox. 216 m
education
Scoala generala nr.310
Învățământ aprox. 216 m
education
Şcoala Generală nr. 174 "Constantin Brâncuşi"
Învățământ aprox. 224 m
Recreere
shopping
magazin universal Profi
Supermarket/Mall aprox. 182 m
shopping
Profi
Supermarket/Mall aprox. 182 m
restaurants
Jerry's Pizza - Militari
Restaurante aprox. 270 m
parks
Apusului
Recreere aprox. 569 m

Proprietăți similare

Apartament cu 3 camere semidecomandat, mobilat în Gorjului
130.000 €
București, Gorjului
3 camere
62 mp
Etaj 2
Apartament cu 2 camere decomandat în Gorjului
140.000 €
București, Gorjului
2 camere
52 mp
Etaj 3
Apartament cu 3 camere decomandat în Gorjului
150.000 €
București, Gorjului
3 camere
73 mp
Etaj 1
Apartament cu 3 camere decomandat, mobilat în Gorjului
145.000 €
București, Gorjului
3 camere
62,5 mp
Etaj 4
Apartament cu 3 camere decomandat, mobilat în Gorjului
148.000 €
București, Gorjului
3 camere
72 mp
Etaj 4
Apartament cu 3 camere decomandat, mobilat în Gorjului
145.000 €
București, Gorjului
3 camere
73 mp
Etaj 1
Apartament cu 4 camere decomandat în Gorjului
149.750 €
București, Gorjului
4 camere
84 mp
Etaj 3 / 4
Apartament cu 3 camere semidecomandat, mobilat în Gorjului
137.000 €
București, Gorjului
3 camere
66 mp
Parter
Apartament cu 3 camere decomandat în Gorjului
149.999 €
București, Gorjului
3 camere
73 mp
Etaj 1

Abonează-te la newsletter să fii primul care primește cele mai noi recomandări de proprietăți și sfaturi de la experți.