Militari (intre Gorjului si Pacii)

149.750 €

Gorjului, Bucureşti

Nr. camere:
4
Suprafață utilă:
84 mp
Etaj:
3 / 4
An construcție:
1976
Nr. niveluri:
4

Descriere apartament

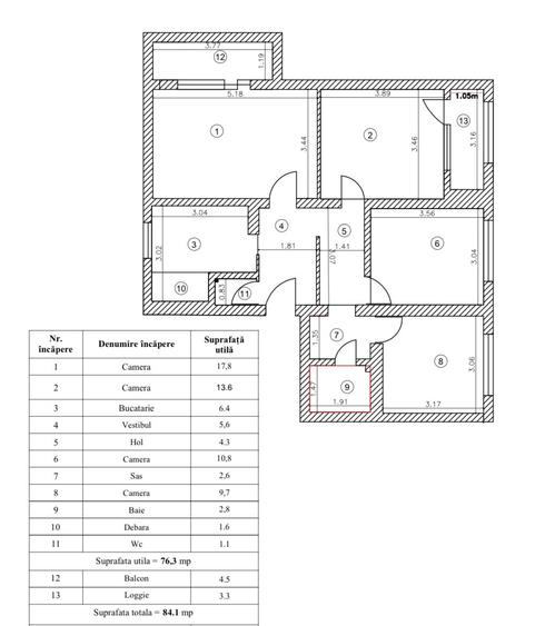
oferta 4 camere, confort 1, Decomandat, etaj 3 din 4, supraf. 84 mp, constructie 1976, are 2 bai, si 2 balcoane, renovat recent, cu toate imbunatatirile, bloc anvelopat termic, liber-nelocuit, este la 2-3 Gradinita Prichindel nr. 195, la 4-5 min. de Scoala Generala nr. 157, intre Gorjului si Pacii, la 8-10 minute de mers pana la metrou Pacii, si 12-15 minute de mers pana la metrou Gorjului,
Citește mai mult Citește mai puțin
Confort 1 Decomandat Nemobilat Aer condiționat Calorifere Termoficare

Detalii apartament

ID anunț: 824407 Actualizat în: 28 Martie 2026
Nr. camere: 4
Suprafață utilă: 84 mp
Suprafață utilă totală: 84 mp
Compartimentare: Decomandat
Confort: 1
Etaj: Etaj 3 / 4
An construcție: 1976
Regim înălțime: P+4E

Istoric preț

Facilități

Pereți
Vopsea lavabilă Faianță
Podele
Parchet Gresie
Rulouri/Obloane
Lemn
Ușă intrare
Parchet Metal Lemn
Uși interior
Lemn
Izolații termice
Exterior
Ferestre cu geam termopan
Lemn
Contorizare
Apometre Contor căldură
Mobilat
Nemobilat
Alte spații utile
WC Serviciu
Facilități imobil
Interfon
Sistem încălzire
Termoficare Calorifere
Climatizare
Aer condiționat
Amenajare străzi
Asfaltate

Proprietăți similare

Apartament cu 3 camere decomandat, mobilat în Gorjului
148.000 €
București, Gorjului
3 camere
72 mp
Etaj 4 / 10
Apartament cu 2 camere decomandat în Gorjului
140.000 €
București, Gorjului
2 camere
52 mp
Etaj 3
Apartament cu 3 camere semidecomandat, mobilat în Gorjului
137.000 €
București, Gorjului
3 camere
66 mp
Parter
Apartament cu 3 camere decomandat, mobilat în Gorjului
157.900 €
București, Gorjului
3 camere
73 mp
Etaj 8
Apartament cu 2 camere circular, mobilat în Gorjului
135.000 €
București, Gorjului
2 camere
48 mp
Etaj 8
Apartament cu 3 camere decomandat, mobilat în Gorjului
149.000 €
București, Gorjului
3 camere
63 mp
Etaj 4 / 10
Apartament cu 2 camere decomandat, mobilat în Gorjului
140.000 €
București, Gorjului
2 camere
50 mp
Etaj 8 / 10
Apartament cu 3 camere decomandat în Gorjului
149.999 €
București, Gorjului
3 camere
73 mp
Etaj 1 / 10
Apartament cu 3 camere decomandat, mobilat în Gorjului
159.000 €
București, Gorjului
3 camere
71 mp
Etaj 2 / 10

Abonează-te la newsletter să fii primul care primește cele mai noi recomandări de proprietăți și sfaturi de la experți.