Tineretului Park Residence 2 - ap 3 camere SUT 86,40 MP - Parcul Tineretului

297.000 €

Tineretului, Bucureşti

Nr. camere:
3
Suprafață utilă:
87 mp
Etaj:
11 / 12
An construcție:
2024
Nr. niveluri:
12

Descriere apartament

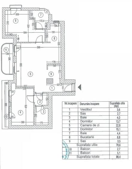
COMISION 0 VIB IMOBILIARE va prezinta spre vanzare un apartament cu 3 camere, situat la etajul 11 al unui imobil cu 12 etaje dat in folosinta  in anul  2024. Imobilul face parte din Ansamblul Tineretului Park, ansamblu format din 3 imobile care beneficiaza de curte imprejmuita, de acces cu bariere, de camere de luat vederi si de o comunitate de locatari tanara, civilizata. Imobilul din care face parte apartamentul dat spre vanzare este construit in stil Art Deco, are spatii comune moderne, spatiu larg modern amenajat la intrarea in casa scarii, beneficiaza de 2 lifturi cu acces din subsol. Imobilul este construit pe structura de rezistenta pe piloni, diafragme, stalpi, grinzi, si inchideri perimetrale cu caramida. Apartamentul din prezentare este confort 1, semidecomandat,  are o suprafata totala utila de 86,40 mp, din care 2 balcoane cu suprafete de 2,7 mp si 5,1 mp. Este finisat cu finisaje categoria premium, sunt dotate cu centrala proprie si incalzire in pardoseala. Se preda doar cu chitul de montaj aparat de aer conditionat. Suprafata utila totala este echilibrat impartita pe camere, permite creerea de spatii pentru depozitare, este foarte luminos, are un view spectaculos asupra parcului. Zona este speciala luand in calcul amplasarea imobiluli in parc. Ai la dispozitie in imediata vecinatate infrastructura oferita de Parcul Tineretului, cu alei luminate, spatii verzi amenajate peisagistic, strand, locuri pentru sport, restaurante, cafenele, etc.  
Citește mai mult Citește mai puțin
Confort 1 Semidecomandat Nemobilat Curte comună Centrală proprie

Detalii apartament

ID anunț: 3495729 Actualizat în: 27 Februarie 2026
Nr. camere: 3
Suprafață utilă: 87 mp
Suprafață utilă totală: 87 mp
Compartimentare: Semidecomandat
Confort: 1
Etaj: Etaj 11 / 12
Nr. băi: 2
An construcție: 2024
Regim înălțime: P+12E

Istoric preț

Facilități

Pereți
Vopsea lavabilă Faianță
Ușă intrare
Lemn Metal PVC
Uși interior
Lemn PVC
Ferestre cu geam termopan
Lemn PVC
Contorizare
Apometre Contor gaz
Mobilat
Nemobilat
Diverse
Senzor de fum
Alte spații utile
WC Serviciu
Facilități imobil
Curte comună Interfon Lift
Utilități
Gaze Curent Apă Canalizare Cablu Supraveghere video
Sistem încălzire
Centrală proprie
Internet
Cablu
Servicii imobil
Administrare Supraveghere video

Puncte de interes

Mijloace transport
transport
Bd. Constantin Brancoveanu
Mijloace transport aprox. 436 m
transport
Tramvai 11
Mijloace transport aprox. 443 m
transport
Constantin Brancoveanu (M2)
Mijloace transport aprox. 458 m
transport
Bd. Constantin Brancoveanu
Mijloace transport aprox. 466 m
Școală
education
Kids Palace
Învățământ aprox. 338 m
education
Gradinita Kogaion
Învățământ aprox. 390 m
education
Scoala 120, "Martisor"
Învățământ aprox. 408 m
education
Scoala nr.120 - Martisor
Învățământ aprox. 418 m
Recreere
parks
Teren sportiv
Recreere aprox. 194 m
restaurants
Hanul Haiducilor
Restaurante aprox. 239 m
shopping
Supermarket nonstop
Supermarket/Mall aprox. 507 m
shopping
B&A Comercial Trade
Supermarket/Mall aprox. 518 m

Proprietăți similare

Apartament cu 2 camere decomandat în Tineretului
285.500 € + TVA
București, Tineretului
2 camere
80 mp
Etaj 1
Apartament cu 3 camere decomandat în Tineretului
295.000 €
București, Tineretului
3 camere
107 mp
Etaj 2 / 17
Apartament cu 2 camere decomandat în Tineretului
285.500 € + TVA
București, Tineretului
2 camere
80 mp
Etaj 1 / 3
Apartament cu 3 camere în Tineretului
322.000 € + TVA
București, Tineretului
3 camere
138 mp
Etaj 3 / 7
Apartament cu 3 camere semidecomandat în Tineretului
322.000 € + TVA
București, Tineretului
3 camere
79 mp
Etaj 1 / 3
Apartament cu 3 camere decomandat în Tineretului
322.000 €
București, Tineretului
3 camere
137 mp
Etaj 2
Apartament cu 3 camere semidecomandat, mobilat în Tineretului
315.000 €
București, Tineretului
3 camere
84,2 mp
Etaj 3 / 11
Apartament cu 2 camere semidecomandat în Tineretului
285.500 € + TVA
București, Tineretului
2 camere
61,85 mp
Etaj 1
Apartament cu 2 camere semidecomandat în Tineretului
285.000 € + TVA
București, Tineretului
2 camere
80 mp
Etaj 1 / 3

Abonează-te la newsletter să fii primul care primește cele mai noi recomandări de proprietăți și sfaturi de la experți.