FINALIZAT |Pompa caldura | Panouri fotovoltaice| 72mp terasa

€ 147.000

Titan, Bucureşti

Nr. camere:
2
Suprafață utilă:
130,62 mp
Etaj:
2 / 3
An construcție:
2025
Nr. niveluri:
3

Descriere

Raportează anunț

FINALIZAT |Pompa caldura | Panouri fotovoltaice| 72mp terasa

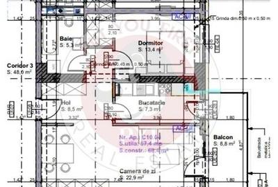
COMISION 0% (zero) *Pentru aceasta proprietate nu se percepe comision din partea cumparatorului. GATA PENTRU MUTARE! Apartament 2 camere, avand urmatoarele caracteristici: - suprafata totala de 130.62 mp - suprafata utila de 58.17 mp - terasa de 72.45 mp * Va rugam sa ne contactati pentru a afla disponibilitatea unitatilor locative de acest tip! * Oricare dintre cele 4 tipuri de unitati locative prezentate in oferta, are acelasi pret mentionat in acest anunt. Preturi loc parcare: Subteran: 15.000 euro (TVA inclus) Teran: 8.000 euro (TVA inclus) Proiect inovator format din 10 imobile cu regim de inaltime S+P+2E+3R, fiecare cu 16 apartamente spatioase de 2, 3 si 4 camere, proiectate pentru a oferi confort maxim, eficienta energetica si un design modern inspirat din stilul mediteranean. Situat in cartierul Titan, zona Pallady, ansamblul beneficiaza de o pozitionare excelenta: * Aproape de statii de metrou Nicolae Teclu si mijloace de transport in comun; * La cateva minute de centre comerciale, parcuri, scoli si gradinite; * Acces rapid catre marile artere ale orasului. Locuinte inteligente si eficiente - Panouri fotovoltaice individuale pentru fiecare apartament locuintele devin autonome energetic si pot genera suficienta energie electrica pentru consumul propriu, mai ales in sezonul cald. In sezonul rece, costurile se reduc semnificativ, platindu-se doar transportul energiei (aprox. 40% din costul unui kWh). - Statut de prosumator proprietarii pot livra surplusul de energie in retea si beneficiaza astfel de compensari financiare. - Pompe de caldura Samsung pentru fiecare unitate locativa sistem de incalzire si racire eficient, alimentat din energia solara. - Ventilatie cu recuperare de caldura (NovingAIR) sistem inteligent de aerisire, care mentine calitatea aerului fara pierderi de energie, reducand semnificativ costurile de incalzire/racire. Proiectul a fost conceput pentru a respecta cele mai noi standarde europene privind cladirile cu consum aproape zero de energie (nZEB), printr-o combinatie de solutii tehnice performante: - Izolatie exterioara din vata bazaltica de 15 cm eficienta termica si protectie fonica superioara. - Tamplarie termoizolanta Deceuninck eficienta energetica crescuta si confort termic constant. - Incalzire in pardoseala solutie moderna care reduce consumul de energie si creste confortul interior. Fiecare apartament dispune de terasa generoasa, dotata cu balustrade glisante din sticla securizata, ce permit inchiderea partiala sau totala. Astfel, terasa poate deveni o incapere suplimentara pe timpul iernii sau in zilele ploioase, oferind un spatiu versatil de relaxare. Pentru proprietarii de vehicule electrice, ansamblul prevede statii de incarcare individuale, amplasate la intrarea fiecarui bloc. Acestea pot fi conectate direct la sistemul de panouri solare al apartamentului, oferind o solutie de incarcare rapida, sigura si fara costuri suplimentare. De ce sa alegi acest proiect ? Locuinte moderne, eficiente energetic; ? Costuri lunare minime pentru intretinere; ? Independenta energetica cu ajutorul panourilor solare; ? Design unic in stil mediteranean; ? Locatie ideala pentru familii active. ID anun? : 1748437372
Citește mai mult Citește mai puțin
ID anunț: 730413 Actualizat în: 24 Decembrie 2025
Nr. camere: 2
Suprafață utilă: 130,62 mp
Suprafață utilă totală: 130,62 mp
Compartimentare: Decomandat
Etaj: Etaj 2 / 3
Nr. băi: 1
An construcție: 2025
Regim înălțime: P+3E

Istoric preț

Utilități

Utilități
Apă Climă

Proprietăți similare

Apartament cu 2 camere decomandat, mobilat în Titan
€ 138.000
București, Titan
2 camere
49 mp
Parter
Apartament cu 3 camere decomandat, mobilat în Titan
€ 147.000
București, Titan
3 camere
51 mp
Etaj 5
Apartament cu 3 camere în Titan
€ 145.000 + TVA
București, Titan
3 camere
150 mp
Parter / 3
Apartament cu 4 camere decomandat în Titan
€ 150.000
București, Titan
4 camere
77 mp
Etaj 2
Apartament cu 3 camere semidecomandat, mobilat în Titan
€ 139.000
București, Titan
3 camere
65 mp
Etaj 3
Apartament cu 3 camere decomandat în Titan
€ 154.000 + TVA
București, Titan
3 camere
88,2 mp
Etaj 9 / 11
Apartament cu 3 camere semidecomandat, mobilat în Titan
€ 138.000
București, Titan
3 camere
60 mp
Etaj 2
Apartament cu 3 camere decomandat în Titan
€ 155.000
București, Titan
3 camere
64 mp
Etaj 6
Apartament cu 3 camere semidecomandat, mobilat în Titan
€ 156.000
București, Titan
3 camere
58,3 mp
Etaj 2 / 4

Abonează-te la newsletter să fii primul care primește cele mai noi recomandări de proprietăți și sfaturi de la experți.