Apartament 4 camere,decomandat – Titan/Nicolae Grigorescu – 5min. IOR

143.000 €

Titan, Bucureşti

Nr. camere:
4
Suprafață utilă:
77 mp
Etaj:
2
An construcție:
1967

Descriere apartament

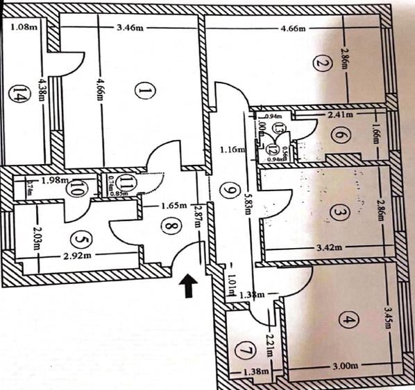
Apartament cu potențial excelent, ideal pentru amenajare după propriul gust. Situat chiar la Bulevardul Nicolae Grigorescu, cu stație STB în fața scării, la 5 minute de mers pe jos de Parcul IOR și Policlinica Titan. • Suprafață utilă: 77,29 mp • Suprafață totală: 82,02 mp • Etaj: 2 din 4 • Bloc solid din cărămidă (1967), reabilitat termic • FĂRĂ risc seismic • Certificat energetic clasa A • 2 băi, bucătărie generoasă, balcon tip loggie • Compartimentare decomandată, 3 apartamente pe palier Apartamentul necesită renovare interioară completă, oferind libertate totală de reconfigurare și finisare după propriul gust. Acte la zi: cadastru + intabulare. Se pretează atât pentru locuire, cât și pentru investiție. Preț: 143.000 € – negociabil (negociere discutată doar după vizionare)
Citește mai mult Citește mai puțin
Decomandat

Detalii apartament

ID anunț: Actualizat în: 07 Februarie 2026
Nr. camere: 4
Suprafață utilă: 77 mp
Compartimentare: Decomandat
Etaj: Etaj 2
An construcție: 1967

Facilități

Comision
0%

Puncte de interes

Mijloace transport
transport
Piata Titan
Mijloace transport aprox. 547 m
transport
Nicolae Grigorescu 2
Mijloace transport aprox. 553 m
transport
Piata Titan
Mijloace transport aprox. 554 m
transport
Statia Piata Titan, Liniile N111, N103, 102, 23, 27
Mijloace transport aprox. 555 m
Școală
education
Gradinita de copii nr.241 "Pestisorul de aur"
Învățământ aprox. 377 m
education
Gradinita nr. 240
Învățământ aprox. 389 m
education
Scoala Generala nr 112
Învățământ aprox. 424 m
education
School 195, new building (en)
Învățământ aprox. 436 m
Recreere
parks
Parc
Recreere aprox. 152 m
restaurants
Terasa Cara
Restaurante aprox. 230 m
shopping
Shop&Go Nicolae Grigorescu 20
Supermarket/Mall aprox. 409 m
shopping
BILLA - Titan
Supermarket/Mall aprox. 481 m

Proprietăți similare

Apartament cu 2 camere decomandat în Titan
130.000 €
București, Titan
2 camere
47 mp
Etaj 3 / 4
Apartament cu 3 camere decomandat în Titan
149.500 €
București, Titan
3 camere
72 mp
Etaj 3 / 4
Apartament cu 2 camere, mobilat în Titan
129.900 €
București, Titan
2 camere
56 mp
Etaj 3 / 4
Apartament cu 4 camere decomandat în Titan
146.000 €
București, Titan
4 camere
128 mp
Etaj 3 / 3
Apartament cu 3 camere semidecomandat în Titan
137.000 €
București, Titan
3 camere
65 mp
Etaj 2 / 4
Apartament cu 2 camere decomandat în Titan
135.000 €
București, Titan
2 camere
55 mp
Etaj 5
Apartament cu 3 camere semidecomandat în Titan
150.000 €
București, Titan
3 camere
66 mp
Etaj 1 / 4
Apartament cu 4 camere decomandat în Titan
146.000 €
București, Titan
4 camere
77 mp
Etaj 2
Apartament cu 3 camere în Titan
131.660 €
București, Titan
3 camere
83 mp
Etaj 2

Abonează-te la newsletter să fii primul care primește cele mai noi recomandări de proprietăți și sfaturi de la experți.