Apartament - 2 camere - decomandat - Obor

220.000 €

Obor, Bucureşti

Nr. camere:
2
Suprafață utilă:
79 mp
Etaj:
Parter / 5
An construcție:
2020
Nr. niveluri:
5

Descriere apartament

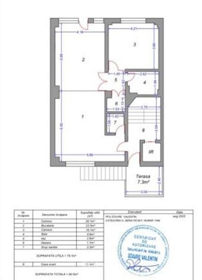
COD PROPRIETATE: P1385 Agentia imobiliara ERezidential va ofera de vanzare, o proprietate tip apartament, cu 2 camere, decomandat, situata in Bucuresti, zona Obor, intr-un imobil tip bloc, construit in anul 2020, la etajul P/ 5. Dispune de o suprafata totala de 90 mp. Alcatuit din: camere -2, bucatarie- 1, bai- 1, balcon- Caracteristici: -Pereti: vopsea lavabila, faianta -Podele: parchet, gresie -Ferestre: termopan -Contorizare: apometre, contor gaz, contor curent electric -Imobil: interfon, videointerfon, supraveghere video, lift -Parcare: -Utilitati generale: curent electric, apa, canalizare, gaz -Sistem incalzire: centrala imobil Vecinatati (puncte de reper): Metrou Obor,Piata Obor,Mall Veranda In imediata apropiere intalnim: spatii comerciale, financiare, educationale, medicale, de relaxare etc. Acces facil la mijloacele de transport in comun. Se percepe comision standard!
Citește mai mult Citește mai puțin
Confort 1 Decomandat Mobilat Mobilat Aer condiționat Centrală imobil

Detalii apartament

ID anunț: 2798269 Actualizat în: 24 Februarie 2026
Nr. camere: 2
Suprafață utilă: 79 mp
Suprafață utilă totală: 79 mp
Compartimentare: Decomandat
Confort: 1
Etaj: Parter / 5
Nr. băi: 1
An construcție: 2020
Regim înălțime: P+5E

Istoric preț

Facilități

Pereți
Vopsea lavabilă Faianță
Podele
Parchet Gresie
Ușă intrare
Parchet Metal Lemn
Uși interior
Celulare Lemn
Izolații termice
Exterior
Contorizare
Apometre Contor gaz
Bucătărie
Mobilată Utilată
Mobilat
Mobilat
Electrocasnice
Mașină de spălat Frigider TV Hotă
Facilități imobil
Interfon Videointerfon Lift
Utilități
Curent Apă Canalizare Gaze Mașină de spălat rufe Frigider TV
Sistem încălzire
Centrală imobil
Climatizare
Aer condiționat
Amenajare străzi
Asfaltate Iluminat stradal

Puncte de interes

Mijloace transport
transport
Statia Bucur Obor; Liniile: 1, 21, 46
Mijloace transport aprox. 143 m
transport
Bucur Obor
Mijloace transport aprox. 162 m
transport
Statia Soseaua Colentina; Linia:36
Mijloace transport aprox. 187 m
transport
Halele Obor
Mijloace transport aprox. 209 m
Școală
education
Universitatea Spiru Haret - Facultatea de Medicina veterinara
Învățământ aprox. 378 m
education
Gradinita nr. 135
Învățământ aprox. 541 m
education
Gradinita numarul 135
Învățământ aprox. 541 m
education
Scoala generala nr. 27
Învățământ aprox. 607 m
Recreere
parks
PARC
Recreere aprox. 51 m
shopping
Bucur Obor
Supermarket/Mall aprox. 74 m
shopping
Mega Image
Supermarket/Mall aprox. 136 m
restaurants
Damak
Restaurante aprox. 146 m

Proprietăți similare

Apartament cu 9 camere semidecomandat în Obor
210.000 €
București, Obor
9 camere
195 mp
Parter
Apartament cu 3 camere semidecomandat în Obor
228.850 € + TVA
București, Obor
3 camere
80,26 mp
Etaj 1 / 5
Apartament cu 3 camere semidecomandat în Obor
214.800 € + TVA
București, Obor
3 camere
61,04 mp
Etaj 2 / 5
Apartament cu 3 camere decomandat în Obor
230.200 € + TVA
București, Obor
3 camere
78 mp
Etaj 2 / 3
Apartament cu 4 camere decomandat în Obor
212.500 €
București, Obor
4 camere
85 mp
Etaj 8
Apartament cu 4 camere decomandat în Obor
234.900 €
București, Obor
4 camere
82 mp
Etaj 4 / 10
Apartament cu 3 camere decomandat în Obor
220.200 € + TVA
București, Obor
3 camere
85 mp
Etaj 8 / 17
Apartament cu 4 camere decomandat, mobilat în Obor
212.500 €
București, Obor
4 camere
85 mp
Etaj 8 / 10
Apartament cu 4 camere semidecomandat, mobilat în Obor
212.500 €
București, Obor
4 camere
84 mp
Etaj 8 / 10

Abonează-te la newsletter să fii primul care primește cele mai noi recomandări de proprietăți și sfaturi de la experți.