1

Apartament 3 cam de vanzare, loc de parcare inclus, cartier Aviatiei

250.000 €

Herăstrău, Bucureşti

Nr. camere:
3
Suprafață utilă:
80 mp
Etaj:
2 / 3
An construcție:
1989
Nr. niveluri:
3

Descriere apartament

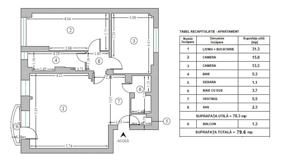
De vanzare apartament de 3 camere in zona de nord a capitalei, cartier Aviatiei, direct de la proprietar. Adresa: Strada Cpt. Alexandru Serbanescu, nr. 46, BL. 19G, SC. 2 Se afla la 10 min de mers pe jos de metro Aurel Vlaicu sau de mall Promenada. Blocul este de 3 etaje, izolat termic iar anul de constructie este 1989. Apartamentul se afla la etajul 2 din 3. Apartamentul este renovat modern, are centrala proprie si incalzire prin calorifere. Apartamentul are un loc de parcare de la ADP Sector 1. Locul de parcare se afla in curtea interioara cu gradina a blocului. Apartamentul include: - un open-space (hol + living + bucatarie) - 2 dormitoare - 2 bai: 1 baie cu cada, 1 baie cu cabina de dus - o debara - un hol - un balcon inchis cu geamuri termopan Apartamentul contine: - centrala pe gaz proprie - masina de spalat rufe - masina de spalat vase - filtru de apa cu osmoza inversa la bucatarie. Filtrele au fost proaspat schimbate. - geamuri termopan - plita pe gaz - cuptor electric - cuptor cu microunde - TV - frigider - aspirator - fier si masa de calcat - canapea extensibila - internet prin fibra optica de la RDS YouTube: youtube[.]com/watch?v=z5x36QN6XCM
Citește mai mult Citește mai puțin
Confort 2 Decomandat

Detalii apartament

ID anunț: 3487959 Actualizat în: 04 Martie 2026
Nr. camere: 3
Suprafață utilă: 80 mp
Suprafață utilă totală: 80 mp
Compartimentare: Decomandat
Confort: 2
Etaj: Etaj 2 / 3
Nr. băi: 2
An construcție: 1989
Regim înălțime: P+3E

Istoric preț

Facilități

Utilități
Gaze Canalizare Apă Supraveghere video
Servicii imobil
Administrare Menaj Supraveghere video

Puncte de interes

Mijloace transport
transport
Pasaj Baneasa statie 605, 5
Mijloace transport aprox. 42 m
transport
Maguricea
Mijloace transport aprox. 241 m
transport
Maguricea
Mijloace transport aprox. 248 m
transport
Maguricea statie 605, 5
Mijloace transport aprox. 304 m
Școală
education
Scoala primara si gimnaziala MEA
Învățământ aprox. 419 m
education
Gradinita Miniterra
Învățământ aprox. 469 m
education
Grădiniţa Mary Poppins
Învățământ aprox. 515 m
education
Scoala cu clasele I-VIII nr.12 "Herastrau"
Învățământ aprox. 627 m
Recreere
parks
Parc
Recreere aprox. 87 m
shopping
Mega Image
Supermarket/Mall aprox. 177 m
shopping
Lidl
Supermarket/Mall aprox. 206 m
restaurants
Le Club
Restaurante aprox. 564 m

Proprietăți similare

Apartament cu 2 camere decomandat, mobilat în Herăstrău
250.000 €
București, Herăstrău
2 camere
52,39 mp
Etaj 7
Apartament cu 2 camere decomandat, mobilat în Herăstrău
233.000 €
București, Herăstrău
2 camere
57 mp
Etaj 2
Apartament cu 2 camere decomandat, mobilat în Herăstrău
265.000 €
București, Herăstrău
2 camere
63 mp
Etaj 4 / 6
Apartament cu 3 camere decomandat, mobilat în Herăstrău
255.000 €
București, Herăstrău
3 camere
70 mp
Etaj 5
Apartament cu 2 camere semidecomandat, mobilat în Herăstrău
260.000 €
București, Herăstrău
2 camere
58 mp
Etaj 3 / 12
Apartament cu 2 camere decomandat, mobilat în Herăstrău
248.000 €
București, Herăstrău
2 camere
76 mp
Etaj 3
Apartament cu 2 camere decomandat, mobilat în Herăstrău
260.000 € + TVA
București, Herăstrău
2 camere
58 mp
Parter / 7
Apartament cu 2 camere în Herăstrău
265.650 € + TVA
București, Herăstrău
2 camere
93 mp
Etaj 7
Apartament cu 2 camere decomandat, mobilat în Herăstrău
260.000 €
București, Herăstrău
2 camere
65 mp
Etaj 2 / 5

Abonează-te la newsletter să fii primul care primește cele mai noi recomandări de proprietăți și sfaturi de la experți.