De vânzare: ap. 3 cam UP-site Floreasca (îți spun și ce nu-i bine)

396.000 € + TVA

Floreasca, Bucureşti

Nr. camere:
3
Suprafață utilă:
68 mp
Etaj:
8 / 12
An construcție:
2025
Nr. niveluri:
12

Descriere

De vânzare: ap. 3 cam UP-site Floreasca (îți spun și ce nu-i bine)

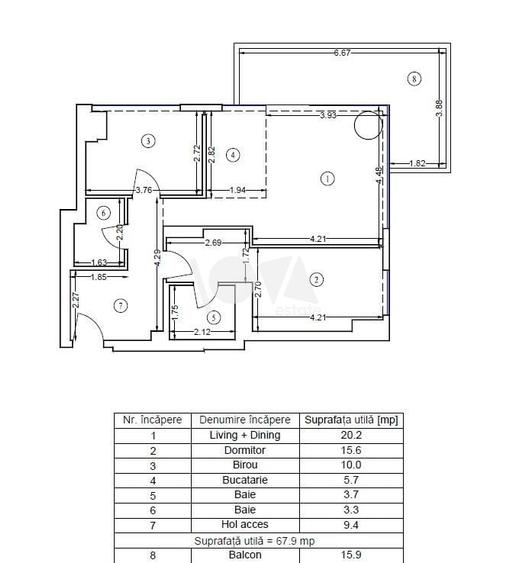
Știi acel moment când intri într-un spațiu și simți că "da, ăsta e"? Aici e exact așa. Proporțiile, lumina și calitatea construcției vorbesc de la sine. SPAȚIU CARE RESPIRĂ 67,9 mp utili + balcon de 15,9 mp – practic ai un balcon cât o cameră întreagă. Cafea de dimineață, prânz cu prietenii, plante care chiar au loc să crească. Tavane de 2,70 m –schimbă total percepția spațiului. TEHNOLOGIE CARE FUNCȚIONEAZĂ Ferestre de la podea la tavan – fațadă cortină completă, nu găuri în perete. Lumină naturală fără curent iarna sau căldură sufocantă vara. Brise-soleil cu clapete de aluminiu – umbră inteligentă. Vara blochează soarele, iarna îl lasă să intre. Încălzire în pardoseală + ventilație cu aer filtrat – temperatură uniformă, fără calorifere pe pereți, fără zone reci. Structură antisismică cu disipatori Poziționare fără haosul din trafic - Calea Floreasca 167B - 6 min pe jos → metrou Aurel Vlaicu - Promenada Mall vizavi - 38% spații verzi în ansamblu - Parcare cu stații de încărcare FACILITĂȚI REALE Piscină & SPA privat | Concierge | Sală sport | Smart Home | Finisaje premium: Porcelanosa, Cerim, Duravit, Grohe CE E IMPORTANT SĂ ȘTII • Dezvoltator: ATENOR – belgienii care au făcut proiecte mari în Brussels, Luxembourg, Paris. Prima lor dezvoltare de lux în România • Finisaje: Porcelanosa, Cerim, Duravit, Grohe – branduri pe care le recomandă arhitecții • Lift Kone/Schindler – 13 persoane, 2,5 m/s (nu-ți petreci viața așteptând liftul) • Gata construit – te muți când vrei, nu peste doi ani "poate" Pentru că nu-ți vând un apartament, ci te ajut să înțelegi dacă e potrivit pentru tine. Ca arhitect, intru în detalii pe care alți agenți nici nu le observă: • Îți explic cum funcționează spațiul cu planurile tale de mobilare • Îți traduc specificațiile tehnice în viață reală P.S. – Ca arhitect, pot să-ți explic fiecare detaliu tehnic și de ce contează. Ca om care înțelege cum se trăiește într-un apartament, pot să-ți spun dacă e potrivit pentru tine. Hai să vorbim.
Citește mai mult Citește mai puțin
ID anunț: 2977482 Actualizat în: 18 Decembrie 2025
Nr. camere: 3
Suprafață utilă: 68 mp
Suprafață utilă totală: 68 mp
Compartimentare: Decomandat
Etaj: Etaj 8 / 12
Nr. băi: 2
An construcție: 2025
Regim înălțime: P+12E

Istoric preț

Utilități

Utilități
Curent Apă Canalizare Gaze Cablu
Facilități
Lift Balcon

Proprietăți similare

Apartament cu 3 camere decomandat în Floreasca
390.000 €
București, Floreasca
3 camere
79 mp
Etaj 4 / 5
Apartament cu 3 camere decomandat, mobilat în Floreasca
420.000 € + TVA
București, Floreasca
3 camere
95 mp
Etaj 1 / 5
Apartament cu 2 camere semidecomandat în Floreasca
404.000 € + TVA
București, Floreasca
2 camere
74 mp
Etaj 1 / 5
Apartament cu 2 camere decomandat în Floreasca
413.000 € + TVA
București, Floreasca
2 camere
80 mp
Etaj 1 / 5
Apartament cu 4 camere decomandat în Floreasca
385.000 € + TVA
București, Floreasca
4 camere
95 mp
Etaj 2 / 4
Apartament cu 4 camere semidecomandat în Floreasca
410.800 € + TVA
București, Floreasca
4 camere
122,8 mp
Etaj 1 / 7
Apartament cu 3 camere semidecomandat, mobilat în Floreasca
370.000 € + TVA
București, Floreasca
3 camere
75,3 mp
Etaj 1 / 20
Apartament cu 3 camere decomandat, mobilat în Floreasca
388.900 €
București, Floreasca
3 camere
125 mp
Etaj 8 / 16
Apartament cu 3 camere decomandat în Floreasca
359.000 € + TVA
București, Floreasca
3 camere
68,45 mp
Etaj 5 / 25

Abonează-te la newsletter să fii primul care primește cele mai noi recomandări de proprietăți și sfaturi de la experți.