Apartament 2 camere BR Mazepa 1, ideal renovare

70.000 €

Mazepa 1, Galaţi

Nr. camere:
2
Suprafață utilă:
61 mp
Etaj:
3

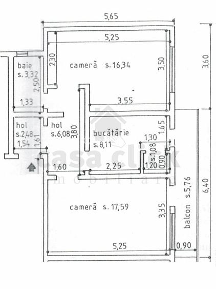
Descriere apartament

In Mazepa 1, una dintre cele mai apreciate zone centrale din Galati, acest apartament cu 2 camere iti ofera oportunitatea de a crea un spatiu exact asa cum iti doresti.Amplasat la etajul 3, intr-un imobil curat din blocurile BR recunoscute pentru constructia solida, calitatea executiei si vecinatatea deosebita apartamentul beneficiaza de o pozitionare rar intalnita.Locuinta este simpla si necesita renovare, insa tocmai acest lucru reprezinta un avantaj major. Ai libertatea de a-l transforma complet, fara compromisuri, adaptand fiecare detaliu propriului stil.Zona este principalul punct forte:centrala, dar linistita aproape de scoli de renume acces rapid catre magazine si marketuri mijloace de transport la indemana la cateva minute de Faleza Dunarii O proprietate cu potential real, intr-o zona in care apartamentele apar rar la vanzare.
Citește mai mult Citește mai puțin

Detalii apartament

ID anunț: 4126407 Actualizat în: 10 Aprilie 2026
Nr. camere: 2
Suprafață utilă: 61 mp
Suprafață utilă totală: 61 mp
Etaj: Etaj 3

Istoric preț

Puncte de interes

Mijloace transport
transport
Trei Star
Mijloace transport aprox. 23 m
transport
Agentia de Voiaj CFR
Mijloace transport aprox. 63 m
transport
Potcoava de Aur
Mijloace transport aprox. 412 m
transport
Romtelecom
Mijloace transport aprox. 485 m
Școală
education
Club Alice
Învățământ aprox. 395 m
education
Scoala Generala nr. 2
Învățământ aprox. 973 m
education
Scoala Generala nr. 24
Învățământ aprox. 1022 m
education
Gradinita nr. 9 Sf. Nicolae
Învățământ aprox. 1024 m
Recreere
parks
Parc Mazepa La Ceas
Recreere aprox. 33 m
restaurants
Orizont
Restaurante aprox. 103 m
shopping
Profi
Supermarket/Mall aprox. 285 m
shopping
Magazinul cu de toate
Supermarket/Mall aprox. 445 m

Proprietăți similare

Apartament cu 2 camere decomandat în Mazepa 1
75.000 €
Galați, Mazepa 1
2 camere
52 mp
Etaj 5
Apartament cu 2 camere în Mazepa 1
70.000 €
Galați, Mazepa 1
2 camere
61 mp
1982
Apartament cu 2 camere decomandat în Mazepa 1
70.000 €
Galați, Mazepa 1
2 camere
55 mp
Etaj 3
Apartament cu 2 camere decomandat în Mazepa 1
73.000 €
Galați, Mazepa 1
2 camere
52 mp
Etaj 2
Apartament cu 2 camere semidecomandat în Mazepa 1
65.000 €
Galați, Mazepa 1
2 camere
Etaj 1
4E
Apartament cu 2 camere decomandat, mobilat în Mazepa 1
74.500 €
Galați, Mazepa 1
2 camere
46 mp
Etaj 2
Apartament cu 3 camere decomandat, mobilat în Mazepa 1
70.500 €
Galați, Mazepa 1
3 camere
67 mp
Etaj 4
Apartament cu 2 camere semidecomandat, mobilat în Mazepa 1
64.000 €
Galați, Mazepa 1
2 camere
43 mp
Etaj 3
Apartament cu 3 camere decomandat în Mazepa 1
70.000 €
Galați, Mazepa 1
3 camere
65 mp
Etaj 4

Abonează-te la newsletter să fii primul care primește cele mai noi recomandări de proprietăți și sfaturi de la experți.