Apartament 2 camere BR Mazepa 1, ideal renovare

70.000 €

Mazepa 1, Galaţi

Nr. camere:
2
Suprafață utilă:
55 mp
Etaj:
3 / 11
An construcție:
1982
Nr. niveluri:
11

Descriere apartament

În Mazepa 1, una dintre cele mai apreciate zone centrale din Galați, acest apartament cu 2 camere îți oferă oportunitatea de a crea un spațiu exact așa cum îți dorești. Amplasat la etajul 3, într-un imobil curat din blocurile BR – recunoscute pentru construcția solidă, calitatea execuției și vecinătatea deosebită – apartamentul beneficiază de o poziționare rar întâlnită. Locuința este simplă și necesită renovare, însă tocmai acest lucru reprezintă un avantaj major. Ai libertatea de a-l transforma complet, fără compromisuri, adaptând fiecare detaliu propriului stil. Zona este principalul punct forte: • centrală, dar liniștită • aproape de școli de renume • acces rapid către magazine și marketuri • mijloace de transport la îndemână • la câteva minute de Faleza Dunării O proprietate cu potențial real, într-o zonă în care apartamentele apar rar la vânzare.
Citește mai mult Citește mai puțin
Decomandat Necesită renovare

Detalii apartament

ID anunț: 4126395 Actualizat în: 10 Aprilie 2026
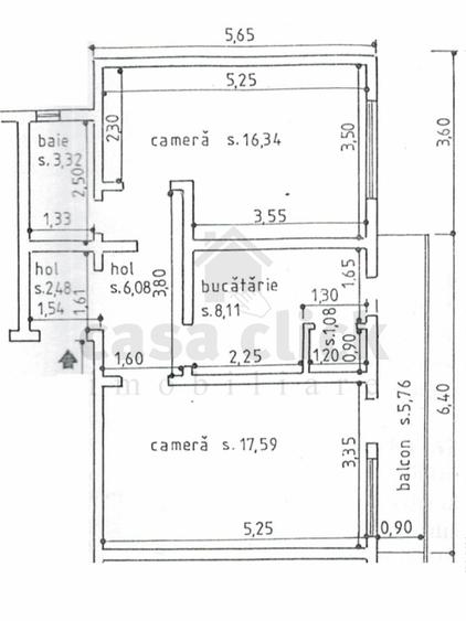
Nr. camere: 2
Suprafață utilă: 55 mp
Suprafață utilă totală: 55 mp
Compartimentare: Decomandat
Etaj: Etaj 3 / 11
An construcție: 1982
Regim înălțime: P+11E

Istoric preț

Facilități

Alte spații utile
Debara
Facilități imobil
Interfon Lift
Stare interior
Necesită renovare
Amenajare străzi
Asfaltate Iluminat stradal Mijloace de transport în comun

Puncte de interes

Mijloace transport
transport
Agentia de Voiaj CFR
Mijloace transport aprox. 99 m
transport
Trei Star
Mijloace transport aprox. 181 m
transport
Potcoava de Aur
Mijloace transport aprox. 254 m
transport
Centru
Mijloace transport aprox. 574 m
Școală
education
Club Alice
Învățământ aprox. 554 m
education
Scoala Generala nr. 24
Învățământ aprox. 873 m
education
Scoala Generala nr. 24 Sf. Arhangheli Mihail si Gavril
Învățământ aprox. 888 m
education
Universitatea Dunarea de Jos
Învățământ aprox. 1031 m
Recreere
parks
Parc
Recreere aprox. 95 m
restaurants
Orizont
Restaurante aprox. 252 m
shopping
Magazinul cu de toate
Supermarket/Mall aprox. 288 m
shopping
Carrefour Market
Supermarket/Mall aprox. 326 m

Proprietăți similare

Apartament cu 2 camere decomandat, mobilat în Mazepa 1
74.500 €
Galați, Mazepa 1
2 camere
46 mp
Etaj 2
Apartament cu 2 camere semidecomandat în Mazepa 1
77.000 €
Galați, Mazepa 1
2 camere
43 mp
Etaj 2
Apartament cu 2 camere decomandat în Mazepa 1
73.000 €
Galați, Mazepa 1
2 camere
52 mp
Etaj 2
Apartament cu 2 camere decomandat în Mazepa 1
75.000 €
Galați, Mazepa 1
2 camere
52 mp
Etaj 8
Apartament cu 3 camere în Mazepa 1
66.000 €
Galați, Mazepa 1
3 camere
55 mp
Etaj 3
Apartament cu 2 camere decomandat în Mazepa 1
75.000 €
Galați, Mazepa 1
2 camere
59 mp
Etaj 8
Apartament cu 2 camere semidecomandat în Mazepa 1
65.000 €
Galați, Mazepa 1
2 camere
45 mp
Parter
Apartament cu 2 camere decomandat în Mazepa 1
73.000 €
Galați, Mazepa 1
2 camere
52 mp
Etaj 2
Apartament cu 3 camere decomandat, mobilat în Mazepa 1
70.500 €
Galați, Mazepa 1
3 camere
67 mp
Etaj 4

Abonează-te la newsletter să fii primul care primește cele mai noi recomandări de proprietăți și sfaturi de la experți.