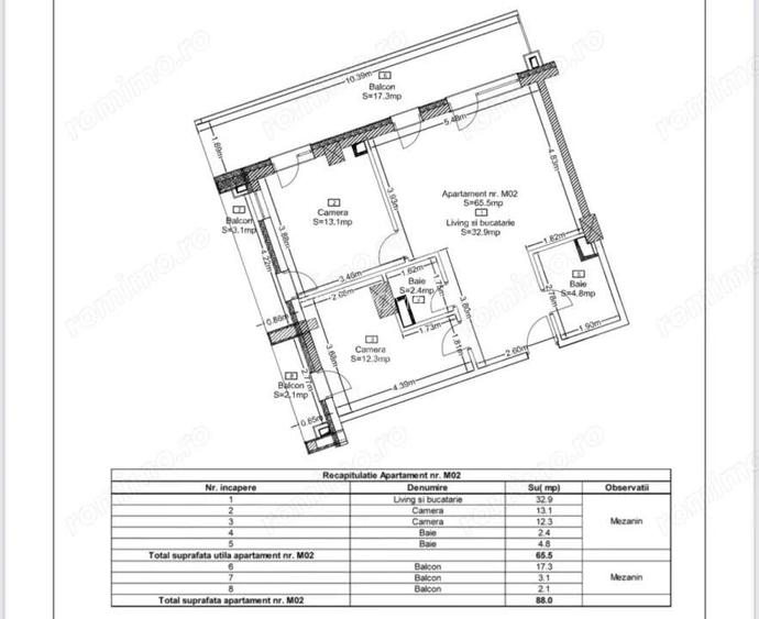
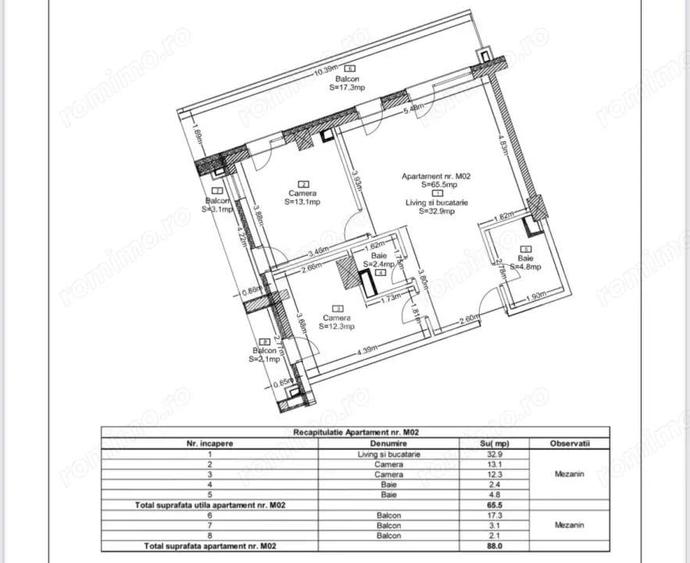
Apartament cu 3 camere, 65,5 mp, Ansamblu Rezidential, Zorilor

196.303 €

Zorilor, Cluj-Napoca

Nr. camere:
3
Suprafață utilă:
66 mp
Etaj:
1 / 14
An construcție:
2021
Nr. niveluri:
14

Descriere

Apartament cu 3 camere, 65,5 mp, Ansamblu Rezidential, Zorilor

Apartament semifinisat cu 3 camere, in ansamblu reziden?ial nou Zorilor, mezanin Va propunem spre vanzare un apartament spa?ios, situat intr-un ansamblu reziden?ial nou din cartierul Zorilor, una dintre cele mai cautate zone ale ora?ului. Suprafa?a utila generoasa Apartamentul este pozi?ionat la mezanin ?i este compartimentat eficient, ideal pentru o familie sau pentru investi?ie. Acesta este semifinisat, oferindu-va libertatea de a-l amenaja dupa gustul propriu. Compartimentare: Living cu bucatarie open space zona de zi luminoasa ?i aerisita 2 dormitoare confortabile 2 bai 3 balcoane accesibile din camere diferite, perfecte pentru relaxare Stadiu de predare: Semifinisat: pere?i tencui?i ?i gletui?i, sapa turnata, centrala termica proprie, instala?ii trase pe pozi?ii, u?i la intrare montate ? Ansamblu modern: Imobilul face parte dintr-un complex reziden?ial modern, cu acces securizat, spa?ii verzi amenajate ?i locuri de parcare disponibile. Loca?ie excelenta Zona Zorilor ofera acces rapid catre centrul ora?ului, spitale, universita?i, magazine ?i mijloace de transport in comun. Cod oferta / ID BLITZ: P146427
Citește mai mult Citește mai puțin
ID anunț: 106702 Actualizat în: 19 Decembrie 2025
Nr. camere: 3
Suprafață utilă: 66 mp
Suprafață utilă totală: 66 mp
Compartimentare: Decomandat
Etaj: Etaj 1 / 14
Nr. băi: 2
An construcție: 2021
Regim înălțime: P+14E

Istoric preț

Utilități

Utilități
Apă

Proprietăți similare

Apartament cu 2 camere semidecomandat, mobilat în Zorilor
210.000 €
Cluj-Napoca, Zorilor
2 camere
53 mp
Etaj 1
Apartament cu 2 camere decomandat, mobilat în Zorilor
194.000 €
Cluj-Napoca, Zorilor
2 camere
53 mp
Etaj 3
Apartament cu 3 camere semidecomandat în Zorilor
211.189 €
Cluj-Napoca, Zorilor
3 camere
70 mp
Etaj 2 / 14
Apartament cu 3 camere decomandat în Zorilor
209.000 €
Cluj-Napoca, Zorilor
3 camere
65 mp
Parter
Apartament cu 3 camere semidecomandat, mobilat în Zorilor
198.000 €
Cluj-Napoca, Zorilor
3 camere
108 mp
2012
Apartament cu 3 camere decomandat în Zorilor
203.000 €
Cluj-Napoca, Zorilor
3 camere
65 mp
Parter
Apartament cu 3 camere decomandat, mobilat în Zorilor
189.900 €
Cluj-Napoca, Zorilor
3 camere
65 mp
Parter
Apartament cu 3 camere decomandat, mobilat în Zorilor
194.500 €
Cluj-Napoca, Zorilor
3 camere
61 mp
Etaj 3 / 3
Apartament cu 2 camere decomandat în Zorilor
185.000 €
Cluj-Napoca, Zorilor
2 camere
57 mp
Etaj 4

Abonează-te la newsletter să fii primul care primește cele mai noi recomandări de proprietăți și sfaturi de la experți.