Apartament cu 3 camere , 71 mp , Ansamblu Rezidential, Zoril

€ 211.189

Zorilor, Cluj-Napoca

Nr. camere:
3
Suprafață utilă:
70 mp
Etaj:
2 / 14
Nr. niveluri:
14

Descriere

Raportează anunț

Apartament cu 3 camere , 71 mp , Ansamblu Rezidential, Zoril

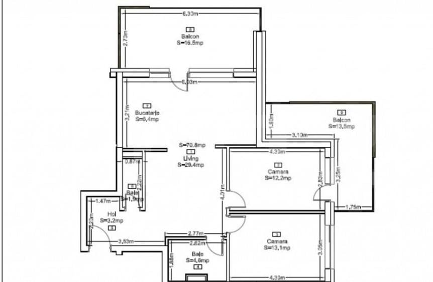
Blitz va prezinta un apartament spatios cu 3 camere, situat intr-un ansamblu rezidential nou, modern, amplasat in cartierul Zorilor una dintre cele mai cautate zone ale Clujului. Cu o suprafata utila de 70,8 mp , un balcon de 16,5 mp si celalalt de 13,5 mp acest apartament ofera un confort sporit si o compartimentare inteligenta, ideala pentru o viata urbana echilibrata. Compartimentare: Living + bucatarie : 29,4 mp un spatiu generos, luminos, ideal pentru relaxare si socializare Dormitor 1 : 13,1 mp Dormitor 2 , 12,2 mp , confortabil, cu posibilitate de amenajare personalizata Baie 1: 4,6 mp, , Baie 2 - 2 mp Detalii tehnice: Apartament semifinisat Centrala termica individuala Tamplarie PVC cu geam termopan Avantaje locatie: Pozitionare excelenta in zona Zorilor, aproape de transport in comun, centre medicale, universitati si magazine Ansamblu cu acces securizat, spatii verzi, locuri de joaca si infrastructura noua Ideal pentru locuinta personala sau investitie Pentru mai multe detalii sau pentru a programa o vizionare, nu ezitati sa ne contactati! Cod oferta / ID BLITZ: P162180 Id intern: P162180 Confort: 1 Tip imobil: Bloc de apartamente Numar Bai: 2 Publicat prin HomeZZ.ro, vezi anuntul complet aici.
Citește mai mult Citește mai puțin
ID anunț: 3267894 Actualizat în: 23 Ianuarie 2026
Nr. camere: 3
Suprafață utilă: 70 mp
Suprafață utilă totală: 70 mp
Compartimentare: Semidecomandat
Etaj: Etaj 2 / 14
Regim înălțime: P+14E

Istoric preț

Proprietăți similare

Apartament cu 3 camere semidecomandat, mobilat în Zorilor
€ 215.000
Cluj-Napoca, Zorilor
3 camere
55 mp
Etaj 5
Apartament cu 2 camere decomandat, mobilat în Zorilor
€ 195.000
Cluj-Napoca, Zorilor
2 camere
53 mp
Etaj 3
Apartament cu 2 camere decomandat în Zorilor
€ 210.000
Cluj-Napoca, Zorilor
2 camere
68 mp
Etaj 2
Apartament cu 3 camere decomandat, mobilat în Zorilor
€ 226.000
Cluj-Napoca, Zorilor
3 camere
64 mp
Etaj 1 / 4
Apartament cu 3 camere decomandat, mobilat în Zorilor
€ 218.999
Cluj-Napoca, Zorilor
3 camere
62,14 mp
Etaj 1
Apartament cu 3 camere semidecomandat, mobilat în Zorilor
€ 225.000
Cluj-Napoca, Zorilor
3 camere
59 mp
Etaj 6
Apartament cu 3 camere decomandat, mobilat în Zorilor
€ 229.000
Cluj-Napoca, Zorilor
3 camere
64 mp
Etaj 1 / 4
Apartament cu 2 camere semidecomandat, mobilat în Zorilor
€ 210.000
Cluj-Napoca, Zorilor
2 camere
53 mp
Etaj 1 / 3
Apartament cu 3 camere decomandat în Zorilor
€ 219.000
Cluj-Napoca, Zorilor
3 camere
63 mp
Etaj 1

Abonează-te la newsletter să fii primul care primește cele mai noi recomandări de proprietăți și sfaturi de la experți.