Apartament cu 4 camere decomandat, mobilat în Florilor

145.000 €

Florilor, Braşov

Nr. camere:
4
Suprafață utilă:
79,6 mp
Etaj:
Parter / 8
Nr. niveluri:
8

Descriere apartament

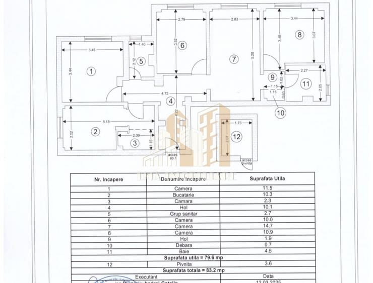
LMA Imobiliare va propune apartament cu 4 camere, cu o suprafață utilă de 79.6 mp situata in cartier Florilor-Craiter, Brasov Strada Harmanului la parterul unui imobil cu regim de inaltime S+P+8 Apartamentul este, ideal pentru familie cu asemenea e practic pentru cabinet medical,birou notarial sau alta activitate de birou. Apartamentul este renovat intr-o nota moderna, mobilat și utilat. Imobilul are urmatoarea decomandare: Hol de acces si decomandare Bucatarie cu camara Grup sanitar cu dus Walk in 3 dormitoare Debara Baie principala cu cada Boxa la subsol 3.6 mp Dispune și de 2 locuri de parcare (abonament primărie), aproape de intrările în bloc și cu vizibilitate către ele din apartament. Proprietatea ofera acces facil catre multe puncte de interes ale orasului Brasov,are in apropiere centre comerciale,gara,scoli,gradinite. Daca acest imobil prezinta interes pentru dumneavoastra va asteptam la vizionare. Comision cumparator 2%. LMA Imobiliare: "Transformam visurile in adrese"
Citește mai mult Citește mai puțin
Confort 1 Decomandat Mobilat Calorifere Centrală proprie Beci Renovat

Detalii apartament

ID anunț: 2877989 Actualizat în: 07 Aprilie 2026
Nr. camere: 4
Suprafață utilă: 79,6 mp
Suprafață utilă totală: 79,6 mp
Compartimentare: Decomandat
Confort: 1
Etaj: Parter / 8
Nr. băi: 2
Regim înălțime: P+8E

Istoric preț

Facilități

Pereți
Vopsea lavabilă Faianță
Podele
Parchet Gresie
Ușă intrare
Parchet Lemn PVC
Uși interior
Lemn Celulare PVC
Stare interior
Renovat
Ferestre cu geam termopan
Lemn PVC
Contorizare
Apometre Contor gaz
Bucătărie
Mobilată Utilată
Mobilat
Mobilat
Electrocasnice
Mașină de spălat Frigider Aragaz TV
Alte spații utile
Boxă la subsol
Facilități imobil
Interfon
Utilități
Curent Apă Canalizare Gaze Mașină de spălat rufe Frigider Aragaz / Plită TV
Sistem încălzire
Centrală proprie Calorifere
Internet
Fibră optică
Amenajare străzi
Asfaltate Iluminat stradal Mijloace de transport în comun

Puncte de interes

Mijloace transport
transport
Vlahuta
Mijloace transport aprox. 146 m
transport
Statia "Sala Sporturilor", linia 42,23barat,10,1,21,37
Mijloace transport aprox. 149 m
transport
Statia "Sala Sporturilor", linia 37,45,23,(40),8,23barat,42
Mijloace transport aprox. 176 m
transport
Sala Sporturilor
Mijloace transport aprox. 196 m
Școală
education
Gradinita 28
Învățământ aprox. 319 m
education
Gradinita 28
Învățământ aprox. 319 m
education
Facultatea de Constructii - Universitatea Transilvania - Corpul J
Învățământ aprox. 339 m
education
Facultatea de Constructii
Învățământ aprox. 348 m
Recreere
shopping
Rapid Garii
Supermarket/Mall aprox. 242 m
parks
Loc de Joaca
Recreere aprox. 272 m
restaurants
Kronwell
Restaurante aprox. 611 m
shopping
Profi
Supermarket/Mall aprox. 681 m

Proprietăți similare

Apartament cu 3 camere decomandat în Florilor
135.000 €
Brașov, Florilor
3 camere
68 mp
Etaj 3 / 4
Apartament cu 4 camere semidecomandat în Florilor
145.000 €
Brașov, Florilor
4 camere
85 mp
Parter
Apartament cu 3 camere decomandat în Florilor
149.000 €
Brașov, Florilor
3 camere
85,8 mp
Etaj 8 / 9
Apartament cu 3 camere decomandat în Astra
135.000 €
Brașov, Astra
3 camere
70 mp
Etaj 9 / 10
Apartament cu 3 camere decomandat în Noua
159.042 € + TVA
Brașov, Noua
3 camere
76,86 mp
Etaj 1
Apartament cu 2 camere decomandat în Griviței
140.000 €
Brașov, Griviței
2 camere
58 mp
Etaj 1 / 3
Apartament cu 4 camere decomandat în Astra
149.000 €
Brașov, Astra
4 camere
77 mp
Etaj 1
Apartament cu 3 camere decomandat în Tractorul
145.000 € + TVA
Brașov, Tractorul
3 camere
83,68 mp
Etaj 3 / 3
Apartament cu 2 camere semidecomandat, mobilat în Ultracentral
139.000 €
Brașov, Ultracentral
2 camere
50 mp
Etaj 4 / 4

Abonează-te la newsletter să fii primul care primește cele mai noi recomandări de proprietăți și sfaturi de la experți.