1

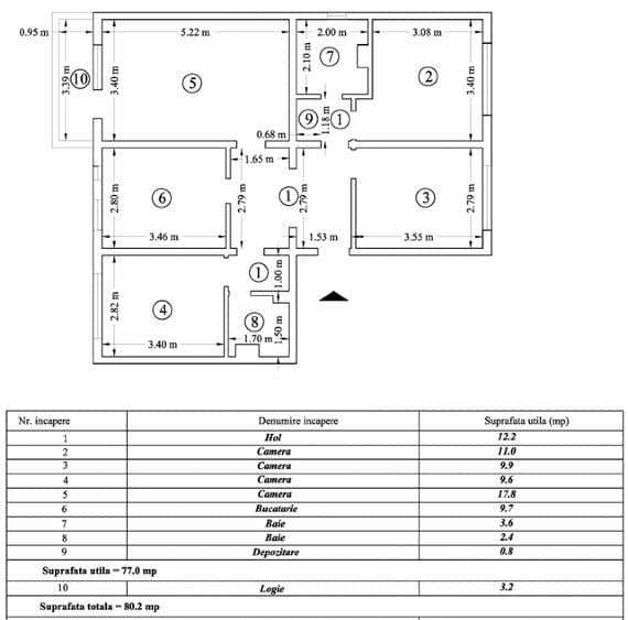
4 camere, decomandat, etaj 1/(P+4), 77 mp, cartier Astra, Brasov

150.000 €

Astra, Braşov

Nr. camere:
4
Suprafață utilă:
77 mp
Etaj:
1
An construcție:
1978

Descriere apartament

* Poziționare, zonă și accesibilitate Situat într-o zonă liniștită. Iluminare naturală foarte bună, apartamentul beneficiind de soare pe parcursul unei mari părți a zilei. Poziționarea la etajul 1 îl face potrivit atât pentru locuit, cât și pentru activități de birou sau cabinete. Acces facil la puncte de interes: școală, grădiniță; Lidl; stație de autobuz; complex Ardealul (Profi, Easybox); complex Micsunica (Lidl, Carrefour); biserică; farmacie; Piața Astra. Aproape de strada Minerva și calea ferată, ceea ce reduce șansele de construcții noi în apropiere. Parcari in fata si in spatele blocului. * Structură Bloc P+4, 10 apartamente pe scară. Decomandat. Compartimentare practică, cu hol principal larg și două holuri secundare ce permit amenajarea de spații de depozitare / debara. 2 bai. Baia mare are geam spre exterior. Pereții de rezistență ai apartamentului nu au fost modificați, demolați sau afectați structural. * Îmbunătățiri Centrală termică de apartament. Ferestre cu geam termopan. Termoizolație exterioară cu polistiren. Balcon tip logie, închis. Usa metalica. * Detalii suplimentare Apartament nerenovat, permițând cumpărătorului identificarea facilă a eventualelor probleme și amenajarea după propriile preferințe. Nu au existat intrări prin efracție în apartament și nu sunt cunoscute incidente similare pe scară. Asigurare obligatorie PAD existentă. Automat de iluminat pe casa scării. Verificările centralei termice și ale instalației de gaz sunt la zi. Primul proprietar. Liber la vânzare, disponibil imediat.
Citește mai mult Citește mai puțin
Decomandat

Detalii apartament

ID anunț: Actualizat în: 21 Februarie 2026
Nr. camere: 4
Suprafață utilă: 77 mp
Compartimentare: Decomandat
Etaj: Etaj 1
An construcție: 1978

Facilități

Comision
0%

Puncte de interes

Mijloace transport
transport
Cometei
Mijloace transport aprox. 339 m
transport
Neptun
Mijloace transport aprox. 393 m
transport
Cometei
Mijloace transport aprox. 414 m
transport
Neptun
Mijloace transport aprox. 469 m
Școală
education
Grădinita nr. 25
Învățământ aprox. 126 m
education
Gradinita 25 - Lumea Copiilor
Învățământ aprox. 133 m
education
Liceul Silvic
Învățământ aprox. 197 m
education
Scoala Generala Nr. 3 (en)
Învățământ aprox. 210 m
Recreere
parks
Parc
Recreere aprox. 118 m
shopping
Lidl
Supermarket/Mall aprox. 285 m
restaurants
Viena
Restaurante aprox. 343 m
shopping
Carrefour
Supermarket/Mall aprox. 827 m

Proprietăți similare

Apartament cu 3 camere decomandat în Astra
150.000 €
Brașov, Astra
3 camere
65 mp
Etaj 3 / 4
Apartament cu 2 camere decomandat, mobilat în Astra
165.000 € + TVA
Brașov, Astra
2 camere
58 mp
Parter / 10
Apartament cu 2 camere decomandat, mobilat în Astra
165.000 €
Brașov, Astra
2 camere
53 mp
Etaj 1 / 10
Apartament cu 2 camere decomandat, mobilat în Astra
160.000 €
Brașov, Astra
2 camere
51 mp
Etaj 1
Apartament cu 3 camere semidecomandat în Astra
139.000 €
Brașov, Astra
3 camere
65 mp
Etaj 2
Apartament cu 3 camere decomandat, mobilat în Astra
154.900 €
Brașov, Astra
3 camere
63 mp
Etaj 1 / 4
Apartament cu 2 camere decomandat în Astra
155.000 € + TVA
Brașov, Astra
2 camere
51 mp
Etaj 8 / 8
Apartament cu 2 camere decomandat în Astra
150.000 €
Brașov, Astra
2 camere
57 mp
Etaj 1
Apartament cu 3 camere decomandat în Astra
140.000 €
Brașov, Astra
3 camere
68 mp
Etaj 2

Abonează-te la newsletter să fii primul care primește cele mai noi recomandări de proprietăți și sfaturi de la experți.