În acest moment, nu se primesc cereri pentru această proprietate. Vă sugerăm să verificați alte oferte similare disponibile.
Vezi anunțuri
2 luni în urmă
Apartament 3 camere de inchiriat NorthSide Park, Baneasa - Sisesti
1.250 €
/ lună
Străuleşti, Bucureşti
Descriere apartament
Sesizează o problemă
Vă propunem spre închiriere un apartament modern de 3 camere, situat în zona Sisești, în cadrul apreciatului complex rezidențial NorthSide Park, ansamblu nou, finalizat în 2022, ce îmbină confortul urban cu liniștea unei zone verzi.
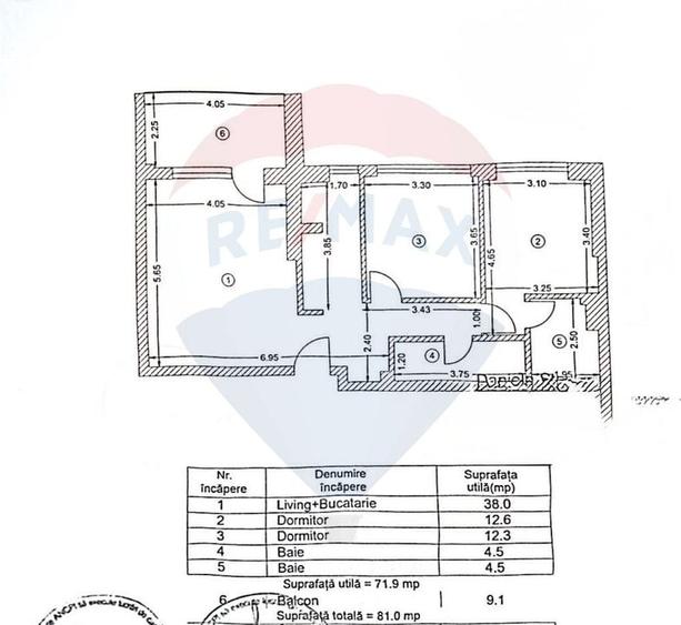
Apartamentul este decomandat, orientat catre vest, având o suprafață utilă de 71 mp și fiind disponibil imediat. Compartimentarea este practică și bine gândită: living spațios, două dormitoare, bucătărie separată, două băi și un balcon. Un aspect important este faptul că una dintre băi este situată în dormitorul matrimonial, oferind intimitate și un plus de confort.
Un alt avantaj major îl reprezintă localizarea excelentă, la doar 5 minute de mers pe jos până la stația de metrou Sisești, precum și accesul rapid către mijloacele de transport în comun. În imediata apropiere se află parc amenajat cu vedere la lac, ideal pentru relaxare și activități în aer liber. Apartamentul dispune de un loc de parcare, inclus în ofertă.
Complexul NorthSide Park oferă un nivel ridicat de siguranță și confort, cu pază permanentă, supraveghere video, videointerfon, interfon, senzori de fum, lift și acces auto cu telecomandă. Zona este complet amenajată, cu străzi asfaltate și iluminat stradal.
Această proprietate este alegerea ideală pentru cei care își doresc un apartament modern, luminos și bine poziționat, într-un complex nou, cu acces facil la metrou și zone de recreere.
Va invitam la colaborare!
Citește mai mult
Citește mai puțin
Decomandat
Lux
Detalii apartament
ID anunț: 3120981
Actualizat în: 07 Martie 2026
Nr. camere:
3
Suprafață utilă:
71 mp
Suprafață utilă totală:
71 mp
Compartimentare:
Decomandat
Etaj:
Etaj 1 / 7
Nr. băi:
2
An construcție:
2022
Regim înălțime:
P+7E
Istoric preț
Facilități
Pereți
Faianță
Vopsea lavabilă
Podele
Gresie
Parchet
Ușă intrare
Parchet
Metal
Lemn
Uși interior
Lemn
Bucătărie
Mobilată
Utilată
Mobilat
Lux
Electrocasnice
Hotă
Facilități imobil
Interfon
Videointerfon
Internet
Wireless
Amenajare străzi
Iluminat stradal
Puncte de interes
Mijloace transport
Statia Doi Cocosi linia 304
Mijloace transport
aprox.
139
m
Straulesti
Mijloace transport
aprox.
432
m
Statia Cimitirul Straulesti, linia N117, 304,97
Mijloace transport
aprox.
561
m
statia Piscul Scoartei, linia 205
Mijloace transport
aprox.
761
m
Școală
Scoala Generala Nr. 13
Învățământ
aprox.
1037
m
Scoala 13
Învățământ
aprox.
1043
m
Camin Scoala Generala Nr. 181
Învățământ
aprox.
1261
m
Scoala 181
Învățământ
aprox.
1296
m
Recreere
La Doi Cocoşi - Restaurant, Club
Restaurante
aprox.
81
m
Parc
Recreere
aprox.
351
m
Mega Image
Supermarket/Mall
aprox.
803
m
Profi
Supermarket/Mall
aprox.
1561
m
Abonează-te la newsletter să fii primul care primește cele mai noi recomandări de proprietăți și sfaturi de la experți.
Căutări similare
- Apartamente de închiriat în Străulești
- Apartamente de închiriat în Sector 1
- Apartamente de închiriat în Pipera
- Apartamente de închiriat în Herăstrău
- Apartamente de închiriat în Floreasca
- Apartamente de închiriat în Aviației
- Apartamente de închiriat în Băneasa
- Apartamente de închiriat în Iancu Nicolae
- Apartamente de închiriat în Dorobanți
- Apartamente de închiriat în Primăverii
- Apartamente de închiriat în Domenii
- Apartamente de închiriat în Bucureștii Noi