Rahmaninov one bedroom at Verdi Park

2.700 € / lună

Floreasca, Bucureşti

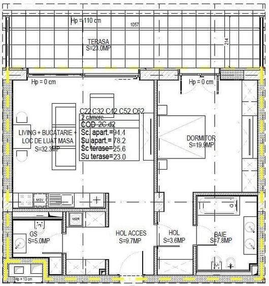
Nr. camere:
2
Suprafață utilă:
80 mp
Etaj:
4 / 6
An construcție:
2021
Nr. niveluri:
6

Descriere apartament

The attention to details and elegance are two concepts strongly desired by Rahmaninov Residence, and for us as well, who have chosen to invest in this exclusive project. We thought about the possible needs of our best customers, and for this reason, the proximity to the lake and above all, the view to Verdi Park, in a period like this, convinced us that this is the best option we can offer! Built to achieve the highest standards of comfort and luxury in Bucharest, the One Rahmaninov project offers you not only a place to live but also an experience, made possible by a 24/7 concierge service in a luxurious welcoming lobby where you will always be greeted by someone ready to take care of you. The apartment is divided in such a way to be dynamic, bright, spacious and carefully organized. Key features: - Park view with private terrace of 24 sqm and lots of natural light - Ceiling height of 3 m - Filomuro interior doors - REHAU floor heating system - REHAU built in ceiling cooling system - Fully equipped kitchen - Fully furnished - 2 bathrooms - 1 underground parking place
Citește mai mult Citește mai puțin
Decomandat

Detalii apartament

ID anunț: 17732 Actualizat în: 22 Martie 2026
Nr. camere: 2
Suprafață utilă: 80 mp
Suprafață utilă totală: 80 mp
Compartimentare: Decomandat
Etaj: Etaj 4 / 6
An construcție: 2021
Regim înălțime: P+6E

Istoric preț

Facilități

Utilități
Curent Apă Canalizare

Puncte de interes

Mijloace transport
transport
Statia Calea Floreasca / Ceaikovski / Mircea Eliade, linia 135, 182, 282, N119, N123
Mijloace transport aprox. 211 m
transport
Statia Ancuta Baneasa, linia 135, N119
Mijloace transport aprox. 271 m
transport
Ceaikovski
Mijloace transport aprox. 526 m
transport
Ceaikovski
Mijloace transport aprox. 564 m
Școală
education
LICEUL TEORETIC "C.A. ROSETTI"
Învățământ aprox. 276 m
education
Liceul C.A. Rosetti
Învățământ aprox. 276 m
education
ŞCOALA CU CLASELE I-VIII NR. 10
Învățământ aprox. 397 m
education
Maria Rosetti
Învățământ aprox. 397 m
Recreere
restaurants
Restaurant Diesel
Restaurante aprox. 144 m
parks
Parcul Floreasca(1963)
Recreere aprox. 336 m
shopping
BILLA - B. Vacarescu
Supermarket/Mall aprox. 691 m
shopping
Kaufland Barbu Vacarescu
Supermarket/Mall aprox. 753 m

Proprietăți similare

Apartament cu 3 camere decomandat, mobilat în Floreasca
2.500 € / lună
București, Floreasca
3 camere
92 mp
Etaj 6
Apartament cu 3 camere decomandat, mobilat în Floreasca
2.700 € / lună
București, Floreasca
3 camere
92 mp
Etaj 6
Apartament cu 4 camere decomandat în Floreasca
2.650 € / lună
București, Floreasca
4 camere
200 mp
Etaj 4
Apartament cu 3 camere decomandat în Floreasca
2.500 € / lună
București, Floreasca
3 camere
92 mp
Etaj 6
Apartament cu 3 camere semidecomandat, mobilat în Floreasca
2.500 € + TVA / lună
București, Floreasca
3 camere
106 mp
Etaj 1
Apartament cu 2 camere decomandat, mobilat în Floreasca
2.700 € / lună
București, Floreasca
2 camere
79 mp
Etaj 5
Apartament cu 4 camere decomandat, mobilat în Floreasca
2.900 € + TVA / lună
București, Floreasca
4 camere
111 mp
0
Apartament cu 3 camere decomandat, mobilat în Floreasca
2.500 € / lună
București, Floreasca
3 camere
92 mp
Etaj 6
Apartament cu 3 camere semidecomandat în Floreasca
2.500 € / lună
București, Floreasca
3 camere
70 mp
Etaj 4

Abonează-te la newsletter să fii primul care primește cele mai noi recomandări de proprietăți și sfaturi de la experți.