Apartament trei camere strada Cozia

400 € / lună

Boul Roşu, Arad

Nr. camere:
3
Suprafață utilă:
83 mp
Etaj:
Demisol / 1
Nr. niveluri:
1

Descriere apartament

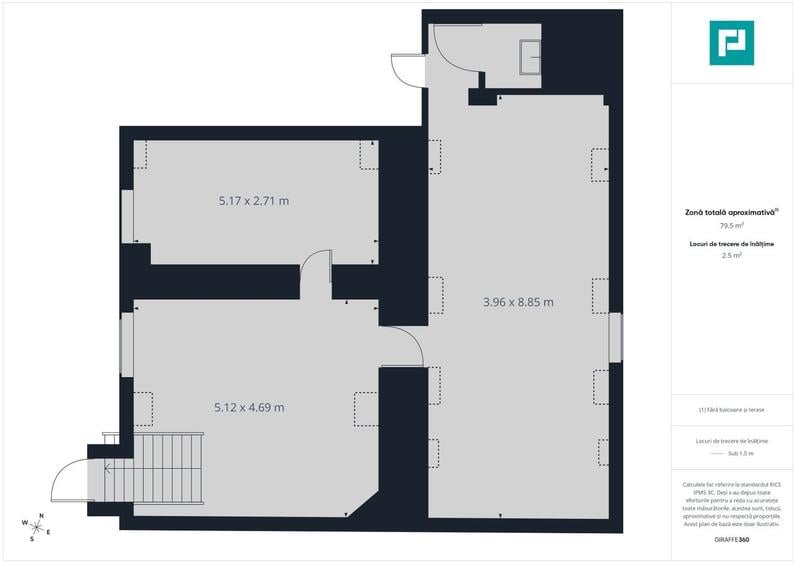
Se oferă spre închiriere apartament cu trei camere, situat la demisolul unei clădiri istorice cu regim de înălțime P+1, pe Str. Cozia nr. 18, Arad. Suprafață utilă: 83,3 mp. Suprafață construită: 136 mp. Compartimentare: - Trei camere spațioase - Două grupuri sanitare - Spații auxiliare Spațiul este potrivit atât pentru locuință, cât și pentru birou, cabinet, salon sau alte activități profesionale. Dotări și utilități: - Centrală proprie pe gaz. - Contorizare electrică separată. - Racordat la toate utilitățile. - Curte comună. Localizare excelentă: - Stație de tramvai în apropiere. - Magazine. - Școală. - Acces rapid către zona centrală. Clădirea păstrează farmecul arhitecturii istorice, oferind un ambient aparte. Pentru mai multe detalii și programarea unei vizionări, mă puteți contacta: Agent Imobiliar: Alexandru Ștefănescu Email: Tel: Apartament trei camere strada Cozia. CP2915825
Citește mai mult Citește mai puțin
Semidecomandat Nemobilat Curte comună Calorifere Centrală proprie Renovat

Detalii apartament

ID anunț: 3657174 Actualizat în: 14 Martie 2026
Nr. camere: 3
Suprafață utilă: 83 mp
Suprafață utilă totală: 83 mp
Compartimentare: Semidecomandat
Etaj: Demisol / 1
Nr. băi: 2
Regim înălțime: P+1E

Istoric preț

Facilități

Pereți
Faianță Vopsea lavabilă
Podele
Gresie
Uși interior
Lemn PVC Sticlă
Stare interior
Renovat
Contorizare
Apometre Contor gaz
Mobilat
Nemobilat
Facilități imobil
Curte comună
Utilități
Curent Apă Canalizare Gaze
Sistem încălzire
Calorifere Centrală proprie
Amenajare străzi
Iluminat stradal Mijloace de transport în comun Asfaltate

Puncte de interes

Mijloace transport
transport
Renasterii
Mijloace transport aprox. 597 m
transport
Renasterii
Mijloace transport aprox. 597 m
transport
Renasterii
Mijloace transport aprox. 708 m
transport
Renasterii
Mijloace transport aprox. 710 m
Școală
education
Gradinita Casuta Piticilor
Învățământ aprox. 644 m
education
Scoala Gimnaziala nr. 12 Regina Maria
Învățământ aprox. 732 m
education
Gradinita PN 18
Învățământ aprox. 1144 m
education
Universitatea de Vest Aurel Vlaicu
Învățământ aprox. 1231 m
Recreere
restaurants
Ale Caffe
Restaurante aprox. 538 m
shopping
Lidl
Supermarket/Mall aprox. 575 m
shopping
Profi City
Supermarket/Mall aprox. 998 m
parks
Parc
Recreere aprox. 1145 m

Proprietăți similare

Apartament cu 2 camere semidecomandat în Boul Roșu
400 € / lună
Arad, Boul Roșu
2 camere
93 mp
Demisol
Apartament cu 3 camere semidecomandat în Boul Roșu
400 € / lună
Arad, Boul Roșu
3 camere
70 mp
Parter
Apartament cu 3 camere semidecomandat în Boul Roșu
390 € / lună
Arad, Boul Roșu
3 camere
100 mp
Apartament cu 3 camere decomandat, mobilat în Boul Roșu
400 € / lună
Arad, Boul Roșu
3 camere
70 mp
Parter
Apartament cu 2 camere semidecomandat în Boul Roșu
380 € / lună
Arad, Boul Roșu
2 camere
44 mp
Etaj 3
Apartament cu 3 camere semidecomandat, mobilat în UTA
425 € / lună
Arad, UTA
3 camere
65 mp
Etaj 6
Apartament cu 3 camere decomandat, mobilat în Aradul Nou
370 € / lună
Arad, Aradul Nou
3 camere
80 mp
Etaj 4 / 4
Apartament cu 3 camere decomandat în Micălaca
380 € / lună
Arad, Micălaca
3 camere
92 mp
Parter
Apartament cu 3 camere decomandat, mobilat în Alfa
380 € / lună
Arad, Alfa
3 camere
80 mp
Etaj 3 / 4

Abonează-te la newsletter să fii primul care primește cele mai noi recomandări de proprietăți și sfaturi de la experți.