Apartament două camere strada Cozia

400 € / lună

Boul Roşu, Arad

Nr. camere:
2
Suprafață utilă:
93 mp
Etaj:
Demisol / 1
Nr. niveluri:
1

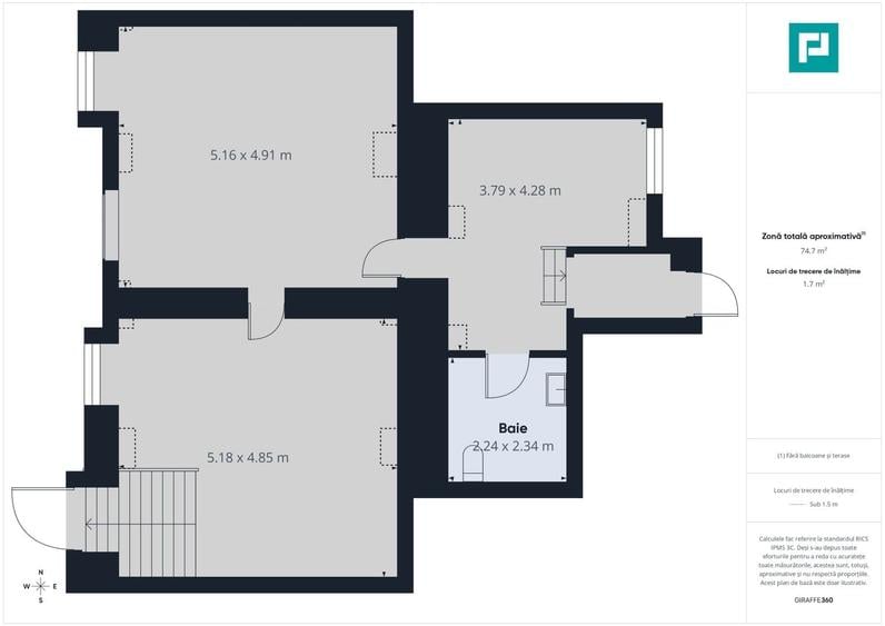
Descriere apartament

Vă propunem spre închiriere un apartament situat pe strada Cozia nr. 18, amplasat la demisolul unei clădiri istorice cu un etaj, ce oferă un cadru aparte și un plus de caracter pentru orice tip de activitate. Detalii spațiu: Suprafață totală: 132 mp. Suprafață utilă: 93 mp. Compartimentare eficientă: Două camere mari și spațioase. O bucatărie. Un grup sanitar. Contorizare electrică separată. Centrală proprie pe gaz. Localizare avantajoasă: În apropiere de școală. Stație de tramvai la câțiva pași. Magazine și alte facilități în zonă. Spațiul este ideal pentru desfășurarea unei activități comerciale, birouri, cabinet, salon sau alte tipuri de afaceri care necesită un spațiu bine compartimentat și accesibil. Pentru mai multe detalii și programarea unei vizionări, mă puteți contacta: Agent Imobiliar: Alexandru Ștefănescu Email: Tel: Apartament de inchiriat str. Cozia. CP2963547
Citește mai mult Citește mai puțin
Semidecomandat Nemobilat Curte comună Calorifere Centrală proprie Renovat

Detalii apartament

ID anunț: 3686671 Actualizat în: 14 Martie 2026
Nr. camere: 2
Suprafață utilă: 93 mp
Suprafață utilă totală: 93 mp
Compartimentare: Semidecomandat
Etaj: Demisol / 1
Nr. băi: 1
Regim înălțime: P+1E

Istoric preț

Facilități

Pereți
Faianță Vopsea lavabilă
Podele
Gresie
Uși interior
Lemn
Stare interior
Renovat
Contorizare
Apometre Contor gaz
Mobilat
Nemobilat
Facilități imobil
Curte comună
Utilități
Curent Apă Canalizare Gaze
Sistem încălzire
Calorifere Centrală proprie
Amenajare străzi
Iluminat stradal Mijloace de transport în comun Asfaltate

Proprietăți similare

Apartament cu 3 camere semidecomandat în Boul Roșu
390 € / lună
Arad, Boul Roșu
3 camere
100 mp
Apartament cu 3 camere semidecomandat în Boul Roșu
400 € / lună
Arad, Boul Roșu
3 camere
70 mp
Parter
Apartament cu 2 camere semidecomandat în Boul Roșu
380 € / lună
Arad, Boul Roșu
2 camere
44 mp
Etaj 3
Apartament cu 3 camere decomandat, mobilat în Boul Roșu
400 € / lună
Arad, Boul Roșu
3 camere
70 mp
Parter
Apartament cu 3 camere semidecomandat în Boul Roșu
400 € / lună
Arad, Boul Roșu
3 camere
83 mp
Demisol / 1
Apartament cu 2 camere decomandat, mobilat în Intim
390 € / lună
Arad, Intim
2 camere
72 mp
Etaj 8
Apartament cu 3 camere decomandat, mobilat în Aradul Nou
370 € / lună
Arad, Aradul Nou
3 camere
80 mp
Etaj 4 / 4
Apartament cu 3 camere decomandat, mobilat în Central
400 € / lună
Arad, Central
3 camere
55 mp
Etaj 4
Apartament cu 2 camere decomandat, mobilat în Micălaca
400 € / lună
Arad, Micălaca
2 camere
53 mp
Etaj 1

Abonează-te la newsletter să fii primul care primește cele mai noi recomandări de proprietăți și sfaturi de la experți.