Filtrare proprietăți
        
    
    
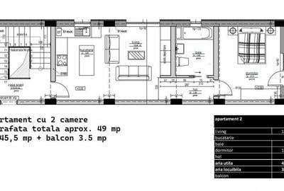
    Apartamente noi de vânzare în zona Victoriei, Ultracentral
                        Apartamente noi de vânzare în zona Victoriei, Ultracentral
                    
                                            
    
        1 - 5 din 5 anunțuri
    
            
            ( filtre aplicate: 3)
        
    
                        
            
                Proprietăți unice:
                5
            
        
        
        
            
                Proprietari:
                0
            
        
    
                    Agenție
                
            
                                
                    3 săptămâni în urmă                
                    
                                17
            
            
                    Agenție
                
            
                            
                    Comision 0%
                
                                
                    4 luni în urmă                
                    
                                15
            
            Activează notificările pentru a fi la curent cu cele mai noi anunțuri imobiliare.
                    Agenție
                
            
                                
                    7 luni în urmă                
                    
                                15
            
            
                    Agenție
                
            
                                
                    7 luni în urmă                
                    
                                12
            
            Pe lângă rezultatele de mai sus, iată și oferte similare din împrejurimi.
                    Agenție
                
            
                                
                    1 săptămână în urmă                
                    
                                10
            
            
                    Agenție
                
            
                                
                    1 lună în urmă                
                    
                                17
            
            Activează notificările pentru a fi la curent cu cele mai noi anunțuri imobiliare.
                    Agenție
                
            
                                
                    2 luni în urmă                
                    
                                6
            
            
                    Agenție
                
            
                                
                    Ieri                
                    
                                8
            
            
                    Agenție
                
            
                                
                    1 lună în urmă                
                    
                                9
            
            
                    Agenție
                
            
                                
                    2 săptămâni în urmă                
                    
                                10
            
            
                    Agenție
                
            
                                
                    1 săptămână în urmă                
                    
                                6
            
            
                    Agenție
                
            
                                
                    3 săptămâni în urmă                
                    
                                6
            
            
                    Agenție
                
            
                                
                    1 lună în urmă                
                    
                                10
            
            
                    Agenție
                
            
                                
                    1 săptămână în urmă                
                    
                                17
            
            
                    Agenție
                
            
                                
                    1 săptămână în urmă                
                    
                                13
            
            
                    Agenție
                
            
                                
                    3 luni în urmă                
                    
                                3
            
            
                    Agenție
                
            
                            
                    Comision 0%
                
                                
                    1 lună în urmă                
                    
                                11
            
            
                    Agenție
                
            
                                
                    1 săptămână în urmă                
                    
                                19
            
            
                    Agenție
                
            
                                
                    7 luni în urmă                
                    
                                2
            
            
                    Agenție
                
            
                                
                    3 luni în urmă                
                    
                                8
            
             
                                    
                             
                                    
                             
                                    
                             
                                    
                             
                                    
                             
                                    
                             
                                    
                             
                                    
                             
                                    
                             
                                    
                             
                                    
                             
                                    
                             
                                    
                             
                                    
                             
                                    
                             
                                    
                             
                                    
                             
                                    
                             
                                    
                             
                                    
                             
                                    
                             
                                    
                             
                                    
                             
                                    
                             
                                    
                             
                                    
                             
                                    
                             
                                    
                             
                                    
                             
                                    
                             
                                    
                             
                                    
                             
                                    
                             
                                    
                             
                                    
                             
                                    
                             
                                    
                             
                                    
                             
                                    
                             
                                    
                             
                                    
                             
                                    
                             
                                    
                             
                                    
                             
                                    
                             
                                    
                             
                                    
                             
                                    
                             
                                    
                             
                                    
                             
                                    
                             
                                    
                             
                                    
                             
                                    
                             
                                    
                             
                                    
                             
                                    
                             
                                    
                             
                                    
                             
                                    
                             
                                    
                             
                                    
                             
                                    
                             
                                    
                             
                                    
                             
                                    
                             
                                    
                             
                                    
                             
                                    
                             
                                    
                             
                                    
                             
                                    
                             
                                    
                             
                                    
                             
                                    
                             
                                    
                             
                                    
                             
                                    
                             
                                    
                             
                                    
                             
                                    
                             
                                    
                             
                                    
                             
                                    
                             
                                    
                             
                                    
                             
                                    
                             
                                    
                             
                                    
                             
                                    
                             
                                    
                             
                                    
                             
                                    
                             
                                    
                             
                                    
                             
                                    
                             
                                    
                             
                                    
                             
                                    
                             
                                    
                             
                                    
                             
                                    
                             
                                    
                             
                                    
                             
                                    
                             
                                    
                             
                                    
                             
                                    
                             
                                    
                             
                                    
                             
                                    
                             
                                    
                             
                                    
                             
                                    
                             
                                    
                             
                                    
                             
                                    
                             
                                    
                             
                                    
                             
                                    
                             
                                    
                             
                                    
                             
                                    
                             
                                    
                             
                                    
                             
                                    
                             
                                    
                             
                                    
                             
                                    
                             
                                    
                             
                                    
                             
                                    
                             
                                    
                             
                                    
                             
                                    
                             
                                    
                             
                                    
                             
                                    
                             
                                    
                             
                                    
                             
                                    
                             
                                    
                             
                                    
                             
                                    
                             
                                    
                             
                                    
                             
                                    
                             
                                    
                             
                                    
                             
                                    
                             
                                    
                             
                                    
                             
                                    
                             
                                    
                             
                                    
                             
                                    
                             
                                    
                             
                                    
                             
                                    
                             
                                    
                             
                                    
                             
                                    
                             
                                    
                             
                                    
                             
                                    
                             
                                    
                             
                                    
                             
                                    
                             
                                    
                             
                                    
                             
                                    
                             
                                    
                             
                                    
                             
                                    
                             
                                    
                             
                                    
                             
                                    
                             
                                    
                             
                                    
                             
                                    
                             
                                    
                             
                                    
                             
                                    
                             
                                    
                             
                                    
                             
                                    
                             
                                    
                             
                                    
                             
                                    
                             
                                    
                             
                                    
                             
                                    
                             
                                    
                             
                                    
                             
                                    
                             
                                    
                             
                                    
                             
                                    
                             
                                    
                             
                                    
                             
                                    
                             
                                    
                             
                                    
                             
                                    
                             
                                    
                             
                                    
                             
                                    
                             
                                    
                             
                                    
                             
                                    
                             
                                    
                             
                                    
                             
                                    
                             
                                    
                             
                                    
                             
                                    
                             
                                    
                             
                                    
                             
                                    
                             
                                    
                             
                                    
                             
                                    
                             
                                    
                             
                                    
                             
                                    
                             
                                    
                             
                                    
                             
                                    
                             
                                    
                             
                                    
                             
                                    
                             
                                    
                             
                                    
                             
                                    
                             
                                    
                             
                                    
                             
                                    
                             
                                    
                             
                                    
                             
                                    
                             
                                    
                             
                                    
                             
                                    
                             
                                    
                             
                                    
                             
                                    
                             
                                    
                             
                                    
                             
                                    
                             
                                    
                             
                                    
                             
                                    
                             
                                    
                             
                                    
                             
                                    
                             
                                    
                             
                                    
                             
                                    
                             
                                    
                             
                                    
                             
                                    
                             
                                    
                             
                                    
                             
                                    
                             
                                    
                             
                                    
                             
                                    
                             
                                    
                             
                                    
                             
                                    
                             
                                    
                             
                                    
                             
                                    
                             
                                    
                             
                                    
                             
                                    
                             
                                    
                             
                                    
                             
                                    
                             
                                    
                             
                                    
                             
                                    
                             
                                    
                             
                                    
                             
                                    
                             
                                    
                             
                                    
                             
                                    
                             
                                    
                             
                                    
                             
                                    
                             
                                    
                             
                                    
                             
                                    
                             
                                    
                             
                                    
                             
                                    
                             
                                    
                             
                                    
                             
                                    
                             
                                    
                             
                                    
                             
                                    
                             
                                    
                             
                                    
                             
                                    
                             
                                    
                             
                                    
                             
                                    
                             
                                    
                             
                                    
                             
                                    
                             
                                    
                             
                                    
                             
                                    
                             
                                    
                             
                                    
                             
                                    
                             
                                    
                             
                                    
                             
                                    
                             
                                    
                             
                                    
                             
                                    
                             
                                    
                             
                                    
                             
                                    
                             
                                    
                             
                                    
                             
                                    
                             
                                    
                             
                                    
                             
                                    
                             
                                    
                             
                                    
                             
                                    
                             
                                    
                             
                                    
                             
                                    
                             
                                    
                            