Spatiu Comercial 275 mp + Teren 1310 mp | Str. Traian - zona Metro

290.000 €

Nord, Galaţi

Clasificare teren:
Intravilan

Descriere spațiu comercial

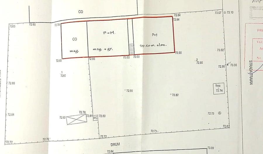
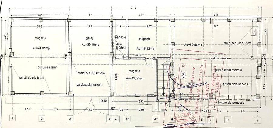
Practic Imobiliare vă propune spre vânzare o proprietate cu un potențial deosebit, ideală pentru activități comerciale, de showroom, depozitare sau producție, situată în Galați, pe str. Traian (zona Metro). Detalii principale: Suprafață teren: 1310 mp (intravilan) Suprafață construcție: 275 mp Deschidere dublă: 27 m liniari la str. Traian și 50 m liniari la drumul lateral (acces facil pentru tonaj mare). Utilități și dotări: Curent electric trifazat (380V) – ideal pentru utilaje sau echipamente industriale. Apă și canalizare racordate. Gaz disponibil la limita proprietății. Datorită poziționării strategice și a suprafeței generoase de teren, locația permite diverse reamenajări sau extinderi conform nevoilor afacerii dumneavoastră.
Citește mai mult Citește mai puțin
Apă Canalizare

Detalii spațiu comercial

Actualizat în: 06 Mai 2026 ID anunț: 1236865
Clasificare teren: Intravilan

Istoric preț

Facilități

Utilități
Canalizare Apă

Puncte de interes

Mijloace transport
transport
Strada Vanatori
Mijloace transport aprox. 1587 m
transport
Depoul nr. 2
Mijloace transport aprox. 1658 m
transport
UM 1244
Mijloace transport aprox. 1775 m
transport
Cimitir israelit
Mijloace transport aprox. 1925 m
Școală
education
Gradinita Mugurel
Învățământ aprox. 1876 m
Recreere
shopping
Metro
Supermarket/Mall aprox. 583 m
parks
Viva Club Bowling
Recreere aprox. 791 m
restaurants
Viva Club
Restaurante aprox. 805 m
parks
Parcul CFR
Recreere aprox. 1923 m

Proprietăți similare

Spațiu comercial, de 142 mp, în Central
290.000 €
Galați, Central
142 mp utili
1E
Spațiu comercial, de 230 mp, în Piața Centrală
280.000 €
Galați, Piața Centrală
230 mp utili
7E
1992
Spațiu comercial, de 230 mp, în Ultracentral
275.000 €
Galați, Ultracentral
230 mp utili
7E
1990
Spațiu comercial, de 30 mp, în Central
289.000 €
Galați, Central
30 mp utili
5E
Spațiu comercial, de 200 mp, în Exterior Vest
265.000 €
Galați, Exterior Vest
200 mp utili
Spațiu comercial, de 900 mp, în Central
295.000 €
Județul Galați, Tecuci
900 mp utili

Abonează-te la newsletter să fii primul care primește cele mai noi recomandări de proprietăți și sfaturi de la experți.