Teren parcelabil P+2 in Zamca, 400 euro/mp

760.000 €
400 € / mp

Central, Suceava

Suprafață teren:
1.900 mp

Descriere teren

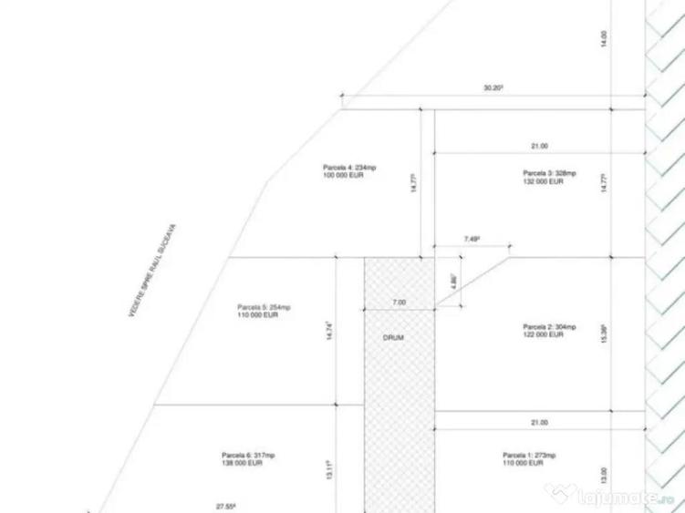
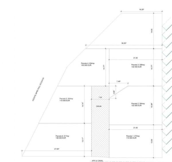
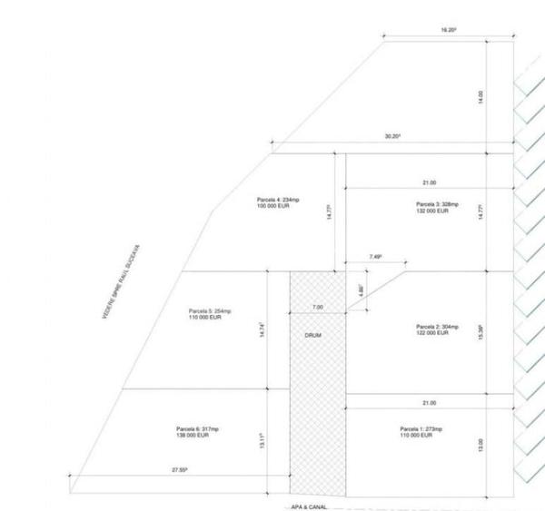
Blitz Imobiliare iti ofera un teren versatil in cartierul Zamca, Suceava, ideal pentru constructii rezidentiale. Poti construi aici atat locuinte individuale de tip P+2, cat si locuinte colective cu acelasi regim de inaltime, oferind flexibilitate maxima. Terenul este in prezent neparcelat, dar avem un plan cadastral care permite configurarea loturilor dupa cum urmeaza: 234 mp la 100.000 euro, 328 mp la 132.000 euro, 304 mp la 122.000 euro, 373 mp la 110.000 euro, 317 mp la 138.000 euro si 254 mp la 110.000 euro. Toate parcelele au utilitatile la front si sunt situate intr-o zona excelenta a Zamcai. Te asteptam sa alegi varianta care ti se potriveste cel mai bine! Cod oferta / ID BLITZ: P161946 Id intern: P161946
Citește mai mult Citește mai puțin

Detalii teren

Actualizat în: 19 Mai 2026 ID anunț: 1170680
Suprafață teren: 1.900 mp
Front stradal: 60 m

Istoric preț

Puncte de interes

Mijloace transport
transport
Suceava Burdujeni
Mijloace transport aprox. 1028 m
Recreere
parks
Parcul Copilului
Recreere aprox. 328 m
restaurants
Restaurant Calipso
Restaurante aprox. 951 m
shopping
Carrefour
Supermarket/Mall aprox. 1126 m
shopping
Shopping City Suceava
Supermarket/Mall aprox. 1159 m

Proprietăți similare

Teren de 8271 mp, în Moara
827.100 €
Județul Suceava, Moara
8.271 mp teren
Teren de 7500 mp, în Ițcani
700.000 €
Suceava, Ițcani
7.500 mp teren
Teren de 1900 mp, în Central
760.000 €
Suceava, Central
1.900 mp teren
Teren de 5116 mp, în Ipotești
767.400 €
Județul Suceava, Ipotești
5.116 mp teren
Teren de 7500 mp, în Ițcani
700.000 €
Suceava, Ițcani
7.500 mp teren
Teren de 12830 mp, în Fălticeni
736.450 €
Județul Suceava, Fălticeni
12.830 mp teren
Teren de 1900 mp, în Central
760.000 €
Suceava, Central
1.900 mp teren
Teren de 7500 mp, în Central
700.000 €
Suceava, Central
7.500 mp teren

Abonează-te la newsletter să fii primul care primește cele mai noi recomandări de proprietăți și sfaturi de la experți.