Teren Extravilan, 3.321 mp, zona Periferica

72.000 €
21.68 € / mp

Cloşca, Satu Mare

Suprafață teren:
3.321 mp

Descriere teren

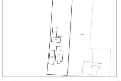
Blits va ofera spre vanzare un teren extravilan arabil, cu suprafata totala de 3.321 mp (33,21 ari), situat intr-o zona cu potential ridicat de dezvoltare zona strazii Depozitelor/Ratu Mare. Suprafata totala: 3.321 mp (33,21 ari) Doua fronturi stradale: Primul front: 33,54 m Al doilea front: 34,25 m Lungime totala: aproximativ 102 m Teren plan, usor accesibil din drum pietruit Destinatie actuala: extravilan arabil Posibilitate de parcelare si construire de hale, depozite sau alte constructii industriale/comerciale Localizare: Zona strazii Depozitelor, in apropierea zonei industriale acces facil catre principalele artere de circulatie si catre oras. Terenul este ideal pentru: -investitii imobiliare (parcelare si revanzare) -dezvoltare de hale industriale, spatii logistice sau comerciale -depozitare sau activitati agricole Pentru informatii suplimentare si vizionare, va rugam sa ma contactati! Cod oferta / ID BLITZ: P156101 Id intern: P156101
Citește mai mult Citește mai puțin

Detalii teren

ID anunț: 2466476 Actualizat în: 23 Februarie 2026
Suprafață teren: 3.321 mp
Front stradal: 33 m

Istoric preț

Puncte de interes

Mijloace transport
transport
Istvan ter
Mijloace transport aprox. 469 m
transport
Ceasul Electric
Mijloace transport aprox. 777 m
transport
Alexandru Ioan Cuza
Mijloace transport aprox. 978 m
transport
Satu Mare
Mijloace transport aprox. 1124 m
Școală
education
Liceul cu program sportiv
Învățământ aprox. 147 m
education
Grup Scolar de Industrializarea Lemnului
Învățământ aprox. 695 m
education
Colegiul National Mihai Eminescu
Învățământ aprox. 1191 m
education
Liceul Economic
Învățământ aprox. 1256 m
Recreere
parks
Parc
Recreere aprox. 27 m
shopping
Lidl
Supermarket/Mall aprox. 471 m
shopping
CBA
Supermarket/Mall aprox. 560 m
restaurants
Hotel Satu Mare City
Restaurante aprox. 591 m

Proprietăți similare

Teren de 1344 mp, în Central
75.000 €
Satu Mare, Central
1.344 mp teren
Teren de 4400 mp, în Est
66.000 €
Satu Mare, Est
4.400 mp teren
Teren de 45000 mp, în Central
65.000 €
Satu Mare, Central
45.000 mp teren
Teren de 1017 mp, în Central
69.300 €
Satu Mare, Central
1.017 mp teren
Teren de 560 mp, în 14 Mai
69.000 €
Satu Mare, 14 Mai
560 mp teren
Teren de 2000 mp, în Central
65.000 €
Satu Mare, Central
2.000 mp teren
Teren de 7200 mp, în Est
72.000 €
Satu Mare, Est
7.200 mp teren
Teren de 6223 mp, în Central
70.000 €
Satu Mare, Central
6.223 mp teren
Teren de 5000 mp, în Central
65.000 €
Satu Mare, Central
5.000 mp teren

Abonează-te la newsletter să fii primul care primește cele mai noi recomandări de proprietăți și sfaturi de la experți.