1 lună în urmă
2
- Agenție
Teren intravilan 2726 mp in Tocile pretabil casa de vacanta
169.000 €
62.00 €
/ mp
Sadu, Judeţul Sibiu
Descriere teren
Sesizează o problemă
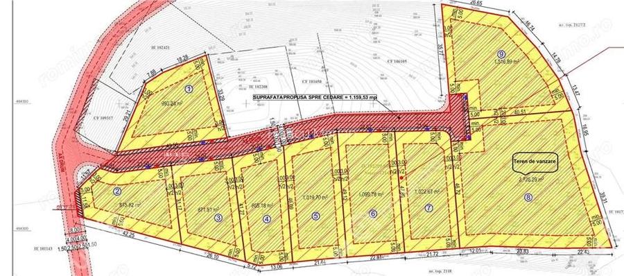
Va propun spre vanzare un teren intravilan cu o suprafata generoasa de 2726 mp, situat in localitatea Tocile, una dintre cele mai cautate locatii pentru dezvoltarea de case de vacanta si pensiuni turistice. Proprietatea este parte dintr-un ansamblu de 9 parcele, toate avand deschidere la acelasi drum de acces privat cu latimea de 8 metri, drum prevazut in documentatia PUZ aferenta zonei. Zona se remarca prin liniste, peisaje naturale si un cadru ideal pentru cei care isi doresc o locuinta intr-un mediu curat, aerisit si neaglomerat, dar totodata aflat la doar cateva minute de municipiul Sibiu. Conform Regulamentului Local de Urbanism aferent PUZ-ului se pot realiza constructii cu functiuni turistice si de recreere, precum case de vacanta, pensiuni, bungalow-uri si anexe aferente acestora, cu respectarea urmatorilor indici urbanistici si conditii tehnice: Regim de inaltime admis: P+E (inaltime maxima la coama 11 m, streasina 7 m) POT maxim: 35% CUT maxim: 0.7 Retrageri fata de limite: minim 5ndash;7 m la strada, minim 3 m lateral spate Suprafata minima a unei parcele construibile: 350 mp Utilizari admise: case de vacanta, pensiuni turistice, bungalow-uri, servicii turistice, anexe Obligativitatea amenajarii de spatii verzi minime: 30% din teren Toate locurile de parcare trebuie realizate pe parcela proprie Drumul de acces este inclus in proiectul de dezmembrare, are 8 metri latime si urmeaza sa fie notat in cartea funciara ca drum cu servitute de trecere pentru toate parcelele din ansamblu, conform cerintelor urbanistice. Utilitatile se afla la aproximativ 200 de metri de teren, putand fi extinse in mod organizat si eficient, fie individual, fie prin asociere cu ceilalti proprietari din zona. Documentatia urbanistica mentioneaza racordarea la reteaua electrica si de apa-canal existenta. Terenul are o forma regulata, este bine proportionat si ofera posibilitatea configurarii optime a unei constructii, beneficiind de o deschidere generoasa si de o pozitionare excelenta fata de drum. Zona este in plina dezvoltare, cu potential mare atat pentru investitii turistice, cat si pentru constructia unei locuinte permanente intr-o zona retrasa si ferita de trafic. Valoarea terenului est de 95.000 euro. ID anun? : 1770112806
Citește mai mult
Citește mai puțin
Detalii teren
ID anunț: 3389646
Actualizat în: 05 Februarie 2026
Suprafață teren:
2.726 mp
Istoric preț
Proprietăți similare
Abonează-te la newsletter să fii primul care primește cele mai noi recomandări de proprietăți și sfaturi de la experți.
Căutări similare
- Terenuri de vânzare în Sadu
- Terenuri de vânzare în Sibiu
- Terenuri de vânzare în Cisnădioara
- Terenuri de vânzare în Șura Mare
- Terenuri de vânzare în Avrig
- Terenuri de vânzare în Mediaș
- Terenuri de vânzare în Șelimbăr
- Terenuri de vânzare în Rășinari
- Terenuri de vânzare în Șura Mică
- Terenuri de vânzare în Cisnădie
- Terenuri de vânzare în Cristian
- Terenuri de vânzare în Ocna Sibiului