Teren intravilan de vanzare in Feleacu - 720 MP - PUZ aprobat!

112.500 €
156.25 € / mp

Feleacu, Judeţul Cluj

Suprafață teren:
720 mp
Tip teren:
Construcții

Descriere teren

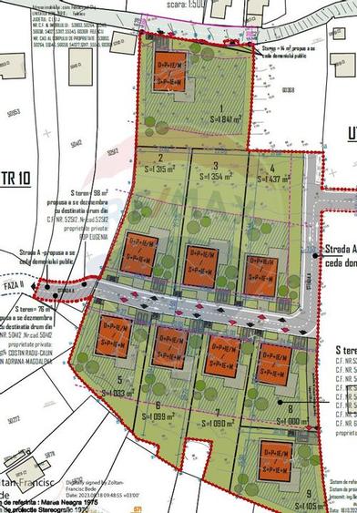
Vă propunem la vânzare în reprezentare exclusivă, un teren intravilan de 720 mp, parte dintr-un PUZ restrâns de 10 parcele, situat în comuna Feleacu — zonă liniștită, cu priveliști atractive și dezvoltare urbanistică recent aprobată. - Suprafață: 720 mp - Front: 13,5 m la drum nou (lățime drum 7,5 m) - Regim urbanistic: PUZ aprobat pentru un ansamblu restrâns de 10 parcele - Potențial: vecinătate de case cu loturi de peste 1.000 mp, potrivit pentru construcție rezidențială de calitate - Priveliște: ușoară pantă favorabilă, vedere către pădure și Cheile Turzii - Stare utilități: PUZ aprobat; în următoarele luni încep lucrările pentru amenajare drumuri și branșare utilități Avantaje: - Amplasament liniștit, ideal pentru casă familială - Investiție sigură datorită PUZ-ului aprobat - Acces rutier organizat prin drum nou în proiect Pentru informații suplimentare, vizionare și oferte, contactați-ne cu încredere!
Citește mai mult Citește mai puțin

Detalii teren

Actualizat în: 12 Mai 2026 ID anunț: 1173929
Suprafață teren: 720 mp
Tip teren: Construcții
Clasificare teren: Intravilan
Front stradal: 13.5 m

Istoric preț

Facilități

Amenajare străzi
Iluminat stradal

Puncte de interes

Mijloace transport
transport
M-DJ 71
Mijloace transport aprox. 599 m
transport
M-Post Control
Mijloace transport aprox. 617 m
transport
M-Scoala Feleacu V
Mijloace transport aprox. 917 m
transport
M-Scoala Feleacu E
Mijloace transport aprox. 928 m
Școală
education
Gradinita Feleacu
Învățământ aprox. 885 m
education
Scoala Generala Feleacu
Învățământ aprox. 912 m
Recreere
restaurants
Aroma
Restaurante aprox. 1816 m
restaurants
Restaurant Aroma
Restaurante aprox. 1834 m

Proprietăți similare

Teren de 3973 mp, în Feleacu
118.000 €
Județul Cluj, Feleacu
3.973 mp teren
Teren de 700 mp, în Feleacu
120.000 €
Județul Cluj, Feleacu
700 mp teren
Teren de 1366 mp, în Feleacu
107.900 €
Județul Cluj, Feleacu
1.366 mp teren
Teren de 1582 mp, în Feleacu
107.000 €
Județul Cluj, Feleacu
1.582 mp teren
Teren de 5200 mp, în Feleacu
104.000 €
Județul Cluj, Feleacu
5.200 mp teren
Teren de 1366 mp, în Feleacu
114.500 €
Județul Cluj, Feleacu
1.366 mp teren
Teren de 1569 mp, în Feleacu
114.962 €
Județul Cluj, Feleacu
1.569 mp teren
Teren de 1850 mp, în Feleacu
110.000 €
Județul Cluj, Feleacu
1.850 mp teren
Teren de 1582 mp, în Feleacu
107.000 €
Județul Cluj, Feleacu
1.582 mp teren

Abonează-te la newsletter să fii primul care primește cele mai noi recomandări de proprietăți și sfaturi de la experți.