Lot de casa (500 mp) pe str. Baltii - Dobroiesti. Comision 0!

100.000 €
200 € / mp

Dobroeşti, Judeţul Ilfov

Suprafață teren:
500 mp

Descriere teren

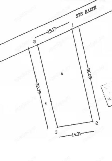
Situat in Nord-Vestul comunei Dobroiesti, comuna cea mai apropiata de centrul Bucurestiului, terenul se afla la 8km si 30 de minute de Piata Universitatii. Este ideal pentru cei care vor sa beneficieze de avantajele locuirii la curte, intr- zona rezidentiala protejata de zgomotul marilor bulevarde, fara sa renunte la oportunitatile pe care Bucurestiul le ofera. Dimensiunile si proportiile lotului sunt ideale pentru constructia unei case individuale: teren intravilan de 500 mp, cu o deschidere de 15.17 mp la str. Baltii. Utilitati (apa curenta, canalizare, electrictate, gaze) la limita proprietatii. Documentatie juridica si tehnica la zi, comision 0 pentru cumparator. ID anun? : 1771491075
Citește mai mult Citește mai puțin
Apă Gaz

Detalii teren

Actualizat în: 20 Februarie 2026 ID anunț: 1239756
Suprafață teren: 500 mp

Istoric preț

Facilități

Utilități
Gaze Apă

Proprietăți similare

Teren intravilan de 2056 mp, în Ciolpani
102.800 €
Județul Ilfov, Ciolpani
2.056 mp teren
Pășune
Teren intravilan de 545 mp, în Pantelimon
109.000 €
Județul Ilfov, Pantelimon
545 mp teren
Construcții
Teren intravilan de 500 mp, în Tâncăbești
100.000 €
Județul Ilfov, Tâncăbești
500 mp teren
Construcții
Teren de 500 mp, în Dobroești
100.000 €
Județul Ilfov, Dobroești
500 mp teren
Teren de 340 mp, în Dobroești
106.000 €
Județul Ilfov, Dobroești
340 mp teren
Teren intravilan de 4900 mp, în Ciolpani
98.000 €
Județul Ilfov, Ciolpani
4.900 mp teren
Construcții
Teren de 1345 mp, în Corbeanca
100.875 €
Județul Ilfov, Corbeanca
1.345 mp teren
Teren de 924 mp, în Berceni
101.600 €
Județul Ilfov, Berceni
924 mp teren
Teren intravilan de 400 mp, în Chiajna
100.000 €
Județul Ilfov, Chiajna
400 mp teren
Livadă

Abonează-te la newsletter să fii primul care primește cele mai noi recomandări de proprietăți și sfaturi de la experți.